Mestská vila s príchuťou štýlu Japan
„Je to taký teplý moderný funkcionalizmus,“ odpovedá architekt Pavel Kosnáč na otázku, ako by charakterizoval vlastný rodinný dom na bratislavských Kramároch. Inými slovami – čisté línie, horizontálne komponovaná tvarová skladba, citlivé osadenie do svahovitého terénu, zrozumiteľná prevádzka vyplývajúca z logiky hmôt, použitie tradičných prírodných materiálov a výrazná prítomnosť úzkeho dialógu s prírodou. To všetko vytvára z tohto rodinného domu kultivovaný typ mestskej vily, ktorá nechce byť iba vyblýskaným príkladom v trendových časopisoch, ale chce najmä esteticky slúžiť svojim užívateľom.
Tajuplné odhaľovanie
Rodinný dom má jednu zvláštnu vlastnosť. Pôsobivú tajuplnosť. Lepšie povedané, nikdy sa neodkryje celý a naraz, ale postupne, ako v dobrom trileri. Tým stupňuje divákovu zvedavosť i napätie z odhaľovania nepoznaného. Už keď sa k domu blížite, len opatrne odhaľuje svoju noblesnú tvár zo svahovitého terénu, ba ani tesná blízkosť pri ňom ešte nie je zárukou jeho úplného poznania. Slovami jeho autora – dom treba zažiť. To však znamená bývať v ňom aspoň jeden kalendárny rok. Vychutnať si jeho rafinované hry i rozmarné nálady. Racionálnu dispozíciu a pocitovú atmosféru. Treba si v ňom doslova odsledovať ročné obdobia, ktoré modelujú jeho výrazovú tvár a vytvárajú emotívny esprit. Nehovoriac o časovom oblúku bežného dňa, ktorý rozohráva strhujúci poker svetla s tieňom.

Na začiatku je model

Charakter domu pri lese umocňujú aj použité materiály. Už spomenuté drevo je doplnené výtvarne zaujímavou žulou so sľudou, transparentným sklom na oknách a tehlou, ktorá je zateplená minerálnou vlnou. Citlivá aplikácia materiálov, ale aj osadenie domu do prírodného kontextu akoby vzdialene sledovalo princípy fínskej architektúry typu Alvara Aalta, čo sám autor ochotne priznáva. „Dom je situovaný na takom mieste, že mu stačilo len trochu pomôcť, aby sme mohli uviesť do činnosti a vzájomných vzťahov okolitú prírodu,“ hovorí Pavel Kosnáč.
Hľadanie ideálu
Dispozícia v tvare L umožnila domu jasnú prevádzku, ktorá ťaží z južnej orientácie. Dom je z juhu trojpodlažný a zo severu dvojpodlažný. Výrazným motívom sú dve veľké terasy lemované antikorovým zábradlím. Na južnej strane je terasa plne využívajúca výhľad a spájajúca vstupnú časť domu s priľahlým gaštanovým lesom. Život západnej terasy sa zase začína na jar súčasne s prebúdzajúcou sa prírodou. K domu ďalej patrí bazén a ihrisko pre deti. Keď sme pri deťoch, spomeňme ich raj v miestach dreveného krovu, ktorý svojou konštrukciou zdvihol svetlú výšku stropu a umožnil veľkorysý priestor na rôzne detské hry.
V suteréne je garáž pre dva automobily a motocykel Chopper, ako aj priestory na oddych – herňa, sauna a vírivka. Na prízemí sa nachádza denná časť a na poschodí nočná časť domu. Komfort vnútornej prevádzky zvyšuje aj malý osobný výťah, ktorý dodáva vile bezbariérový ráz. Aj tento rodinný dom riadi inteligentná technológia, je však prítomná v menej nápadnej podobe nepotláčajúcej ľudský rozmer.
Rodinné domy architektov často zvádzajú svojich autorov k exhibícii, ktorou chcú upozorniť na svoju výnimočnosť. V prípade Kosnáčovej vily na Kramároch sa zvolila tá povestná zlatá stredná cesta, pri ktorej nie je nič navyše, ale ani jej nič nechýba. Ambícia po originalite sa stretáva so snahou o príjemné bývanie v rovine približujúcej sa ideálu dobrého rodinného domu. A to nie je málo.
![]() |
![]() |
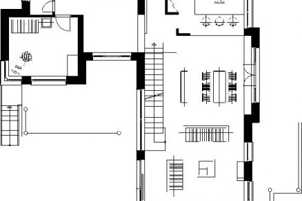
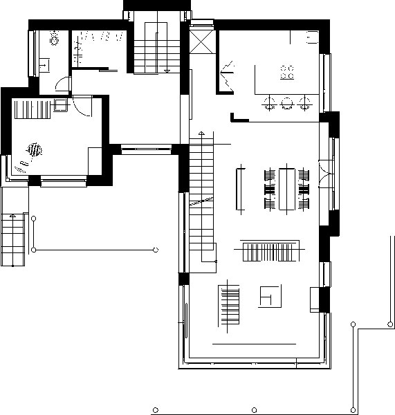
|
| Pôdorys 2. NP | Pôdorys 3. NP |

Miesto: Bratislava-Kramáre
Autor: Ing. arch. Pavel Kosnáč; Kosi, s. r. o.
Investor: súkromná osoba
Projekt: 2002
Dokončenie: 2004
Dodávatelia:
Tehla: Wienerberger
Zateplenie fasády: Rockwool, Ekomont Nitra
Okná: Alumil, Eurotechnik
Strecha: Ruukki
Krov: KONTRAKTING KROV HROU
Žalúzie: systém Warema, DOS SK Trenčín
Ľudo Petránsky
Foto: Kosi, s. r. o.













