Kníhkupectvo Alexis
Ako sa môže malé kníhkupectvo presadiť v silnej konkurencii siete predajcov kníh? Čo môže ponúknuť zákazníkovi? Čím môže zaujať? „Východisko hľadáme vo vytvorení variabilného priestoru, ktorý by mal, okrem predaja kníh, vytvoriť podmienky pre usporiadanie rôznych sprievodných podujatí,“ hovoria autori, ktorí za svoj projekt získali cenu CE-ZA-AR 2011 v kategórii interiér. „Samozrejme, je určené aj na projekcie, čítanie, malé koncerty, workshopy, atď.“
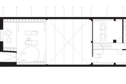
Novinky a vybrané knižné tituly sú vystavované na samostatných mobilných stojanoch na jednotlivých stupňoch kaskád. Pevná časť programu kníhkupectva – zázemie s kanceláriou, skladmi a wc – je ukrytá pod galériou a dostupná jednoramenným schodiskom na rozhraní kaskád a kaviarne.
Cez svetlík preniká do kníhkupectva príjemné rozptýlené denné svetlo (Foto: Aleš Šedivec)
Schodisko do zázemia je na rozhraní kaskád a vyvýšenej galérie (Foto: Aleš Šedivec)
Priestor kníhkupectva lemujú dva rady regálov s knihami (Foto: Martin Jančok)
Regál s knihami, detail (Foto: Martin Jančok)
Police mimo dosah nakupujúcich slúžia na uskladnenie rezervných kníh (Foto: Martin Jančok)
Stupne ponúkajú možnosť listovať knihou, oddýchnuť si (Foto: Martin Jančok)
Mobilné stojany na knižné novinky a bestsellery obsadzujú centrálny priestor (Foto: Šymon Kliman)
Malá kaviareň na galérii v zadnej časti kníhkupectva (Foto: Šymon Kliman)
Téma mesiaca marec: INTERIÉRY
Z kaviarne je výhľad cez predajňu na príležitostne využívané pódium (Foto: Šymon Kliman)
–>–>
Pohľad na vstupnú časť s pokladňou a pódiom (Foto: Tomáš Antmann)
Steny schodiskového priestoru presvetľujú zázemie (Foto: Tomáš Antmann)
Kníhkupectvo s kaviarňou
Miesto: Košická ul., Bratislava
Rok ukončenia: 2010
Autori: Martin Jančok (Plural), Aleš Šedivec (Totalstudio)
Grafický dizajn: Marcel Benčík
Klient: Ladon, s.r.o.
Statika: Geostat
Stolár: Treeman
Celková podlažná plocha: 170m2
(pet)






















