Jednoizbový byt na troch úrovniach
Zdedili ste po starých rodičoch byt, ktorý má krásne vysoké stropy, ale máte pocit, že jeho plošná výmera by stačila sotva na polovicu vášho šatníka? Prezrite si realizáciu z dielne architektonického ateliéru KIVVI architects, ktorá ponúka nový pohľad na interiér v malých priestoroch.
Obývací kút nadväzuje na „medziposchodie“, kde sa nachádza knižnica. Vedľa nej možno vytvoriť čitáreň alebo umiestniť prístelku pre hostí. Celá konštrukcia je vytvorená z pórobetónových tvaroviek a obložená laminátom v dekore dub ferrara. Priestor pod posteľou slúži ako šatník.Jednoizbový byt situovaný v Bratislave na Palárikovej ulici bol vytvorený pre single nájomníka či mladý pár, ktorý si chce vyskúšať prvé spoločné bývanie. Hoci je dispozícia na prvý pohľad jednoduchá, postupne odhaľuje svoj šarm a nápaditosť.
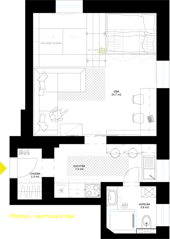
Návštevníka uvíta minimalistická predsieň, ktorá prirodzene nadväzuje na priestor prechodnej kuchyne. Rozmery tejto časti bytu pre vysoký strop pôsobili v pôvodnom stave stiesnene. Nové riešenie je funkčné a praktické. Znížený strop priestor opticky skrátil a svetlé vyhotovenie nábytku mu dodalo šírku. Z kuchyne sa dostaneme do kúpeľne a spálne. Kúpeľňa je malá, spojená s toaletou, priestorovo ju odľahčuje umiestnenie rohového sprchovacieho kúta.
Dominantným bodom projektu je riešenie centrálneho priestoru bytu. Vytvorenie troch úrovní, ktoré riešia okrem funkčných zón aj odkladacie priestory, je výborným nápadom. V jednej miestnosti nájdete obývaciu izbu, pracovňu, čitáreň i spálňu zároveň. Samotná konštrukcia jednotlivých „poschodí“ je aj premysleným úložným priestorom, ktorý tvoria skrine, police, zásuvky či dokonca tajná komora.
Známa výzva myslite pozitívne sa v tomto prípade zmenila na myslite vertikálne. Ale s pozitívnym výsledkom, čo poviete?
Pôdorys jednoizbového bytu tvorí predsieň, kuchyňa, kúpeľňa s WC a variabilná spálňa. Obytná plocha bytu je 38,3 m2.
Minimalistická predsieň rieši kompletné odkladacie priestory formou vstavanej šatníkovej skrine s bielymi pántovými dverami. Takto pôsobí vstup stále priechodne a upratane.
Prechodná kuchyňa nedovolila architektom rozmarné riešenia. Prvky interiéru tvoria v záujme funkčnosti jednu líniu. Čisto biele steny i nábytok priestor opticky zväčšujú. Príjemný kontrast vytvára tmavohnedá gresová dlažba, položená klasicky rovno.
Miesto na prípravu jedla je vytvorené z bielych drevotrieskových dosiek a pracovnej dosky s dekorom javor. Vzadu sa použila sklená stena Lacobel béžovej farby.
Jedálenský kút s drezom a barový pult sa nachádzajú na konci miestnosti. Pult s vysokým sedením stačí na rýchle raňajky. Umiestnenie drezu s príručnou skrinkou na riad pod okno je najlepším riešením danej dispozície. Farebnosť nábytku nadväzuje na ostatnú časť kuchyne, jemný kontrast vznikol vďaka žltému pásu v časti barového pultu.
Kúpeľňa spojená s toaletou je opticky predelená sklobetónovou stenou sprchovacieho kúta. Steny i podlahy sú obložené veľkoformátovým béžovým gresom, ktorý sa výborne hodí do malých členitých priestorov. V sprchovacom kúte je moderný podlahový vpust bez vaničky, vďaka tomu je podlaha kompaktnejšia.
Už pri prvom pohľade vidieť rozčlenenie miestnosti na viaceré funkčné zóny. V popredí je pracovná časť, ktorú strieda obývací kút. Zmena funkcie je zvýraznená aj striedaním farieb omietky. Laminátová podlaha má neutrálnu sivú farbu.
Pracovný stôl je navrhnutý na mieru v dekore dub ferrara ako väčšina nábytkových prvkov z tejto časti dispozície.
Premyslené umiestnenie odkladacích priestorov pri schodíkoch
Skrytý odkladací priestor pod knižnicou. Možno tu umiestniť väčšie neatraktívne spotrebiče, sezónne oblečenie či iné zariadenie.
Knižnica na celú stenu pôsobí ako zaujímavý detail a zároveň úložný priestor.
–>–>
Na najvyššej úrovni sa nachádza priestor na spanie. Od okolitej časti je oddelený len jemným závesom. Na osvetlenie s tlmeným efektom sa využilo zafrézované podsvietenie do presadenej stienky.
Autor architektonického riešenia : KIVVI architects
Text: Ing. arch. Paulína Oravcová
Autor fotodokumentácie: Tomáš Baník
Autori dokumentácie: KIVVI architects























