Interiérové riešenie krížovej dispozície podkrovia v Slovinsku
Podkrovie, ktoré bolo predmetom rekonštrukcie slovinského architektonického štúdia Arkitektura DOO, sa nachádza v starej vile v známom kúpeľnom meste Bled. Cieľom bolo vytvoriť príjemný a funkčný priestor pre rodinu, ktorý bude slúžiť ako dovolenkový apartmán.
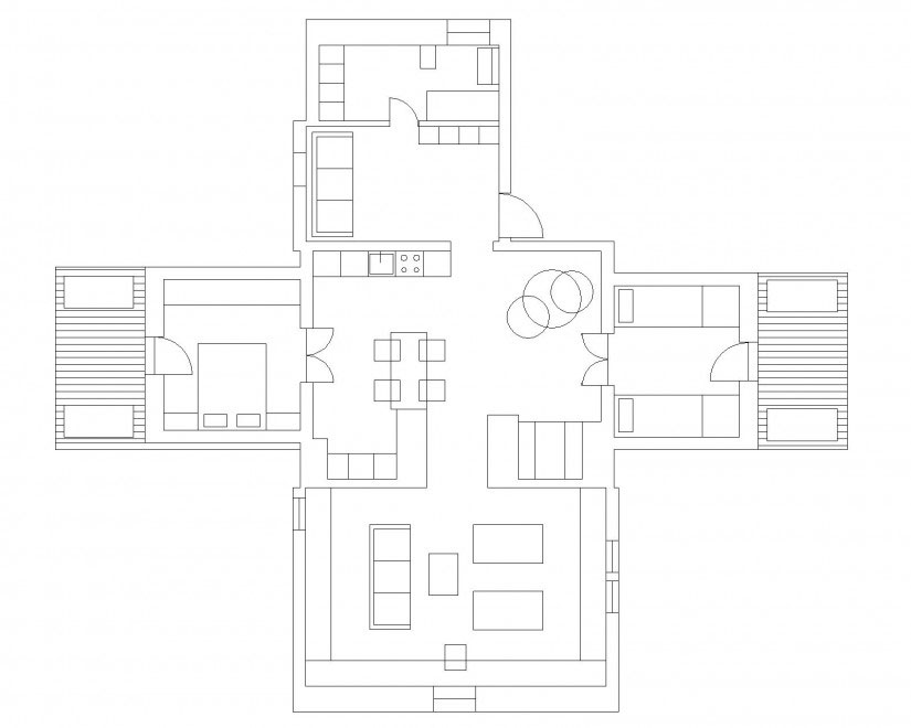
Vzhľadom na tvar, v akom je podkrovie postavené, bolo potrebné starostlivo zvážiť tok svetla a využitie každého priestoru tak, aby bol interiér zároveň komfortný, spĺňal všetky potrebné funkcie a napĺňal aj estetické hľadisko. Rodina v spolupráci s architektmi sa rozhodli pre interiér typu open-plan. Vďaka otvorenému riešeniu je apartmán dynamický a priestranný, nezaťažený zbytočnými priečkami a adekvátne presvetlený prirodzeným svetlom.
Na zdôraznenie vzdušnosti a priestrannosti architekti zvolili prevládajúcu bielu farbu. Tú môžeme postrehnúť nielen na stenách a strope, ale aj ako farbu kuchynskej linky, jedálenského stola, dverí či niekoľkých častí nábytku.
Bielu farbu vhodne dopĺňa pohodlná tmavosivá sedačka v obývacej časti či drevené stoličky a drevené plochy v rôznych častiach priestoru (pracovná doska v kuchyni, pult v obývačke či exteriérové zábradlie na terase). Podlaha je riešená rovnako v drevnom dekore, vďaka čomu interiér nadobúda útulnosť, teplý farebný kontrast k sterilnej bielej a jemný vidiecky ráz.
Pravé a ľavé krídlo slúžia ako detská a rodičovská spálňová časť. Vstupná časť je prepojená so stredovou časťou, kuchyňou a obývačkou. Pri vstupe sa nachádza aj (uzavretá) kúpeľňa.
Spájajúcim elementom celého priestoru je 12 m dlhé kontinuálne stropné osvetlenie, ktoré môže byť zapnuté naraz alebo po sekciách – podľa aktuálnej potreby. Vďaka otvorenému riešeniu je prirodzené svetlo prístupné počas dňa v celom objeme apartmánu aj v stredových častiach, ktoré nedisponujú oknami.
|
|
Nábytok je kompletne vyrobený na mieru, pričom autori využili každý kút ako úložný priestor, ktorý vďaka minimalistickému vyhotoveniu a farbe nábytku elegantne splýva s celkovým vizuálom.
Prehľad:
Lokalita: Bled, Slovinsko
Architekt: Boštjan Gabrijelčič
Investor: privátny
Rok realizácie: 2014
Text: Anna Martausová
Foto: Jure Goršič
Zdroj: arhitektura-doo.si


















