Interiér maloobchodnej pobočky Saxoo od uniform architects v OC Mirage
Berúc do úvahy zameranie a profiláciu značky Saxoo rozhodli sa architekti Martin Lepej a Richard Murgaš navrhnúť interiér korešpondujúci s výrazom URBAN, nejde však o cool interiér s kresbami grafiti. Pocit neosobnej umelosti nevyhnutne prítomný v obchodnom priestore je nahradený odkazmi na zažité a známe.
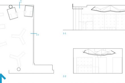
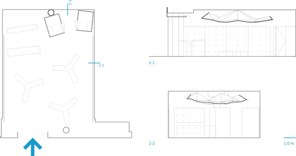
Regály rôznych výšok sú rozmiestnené v priestore ako budovy nad ktorými visí dominantný podhľad v tvare polygonálneho oblaku.
Na podlahe so štruktúrou a farbou asfaltu stoja tvarovo výrazné biele objemy vynikajúce na pozadí fotografie New Yorského metra dopnenom grafikou jeho trás.
Dispozičné riešenie využíva väčšinu podlažnej plochy na vystavenie ťažiskových kusov oblečenia, ostatný tovar je naskadaný v regáloch lemujúcich steny. V zadnej časti priestoru sa nachádzajú prezliekacie kabíny a malé zázemie so skladom.
Zdroj: uniform architects
Foto: B. Boďa, S. Jendek
–>–>


















