Elegantný interiér domu v Londýne
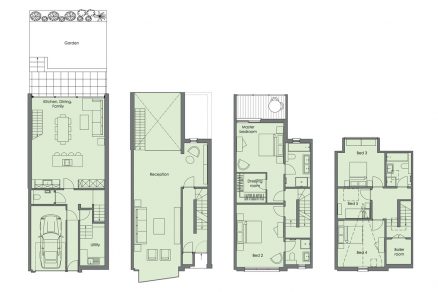
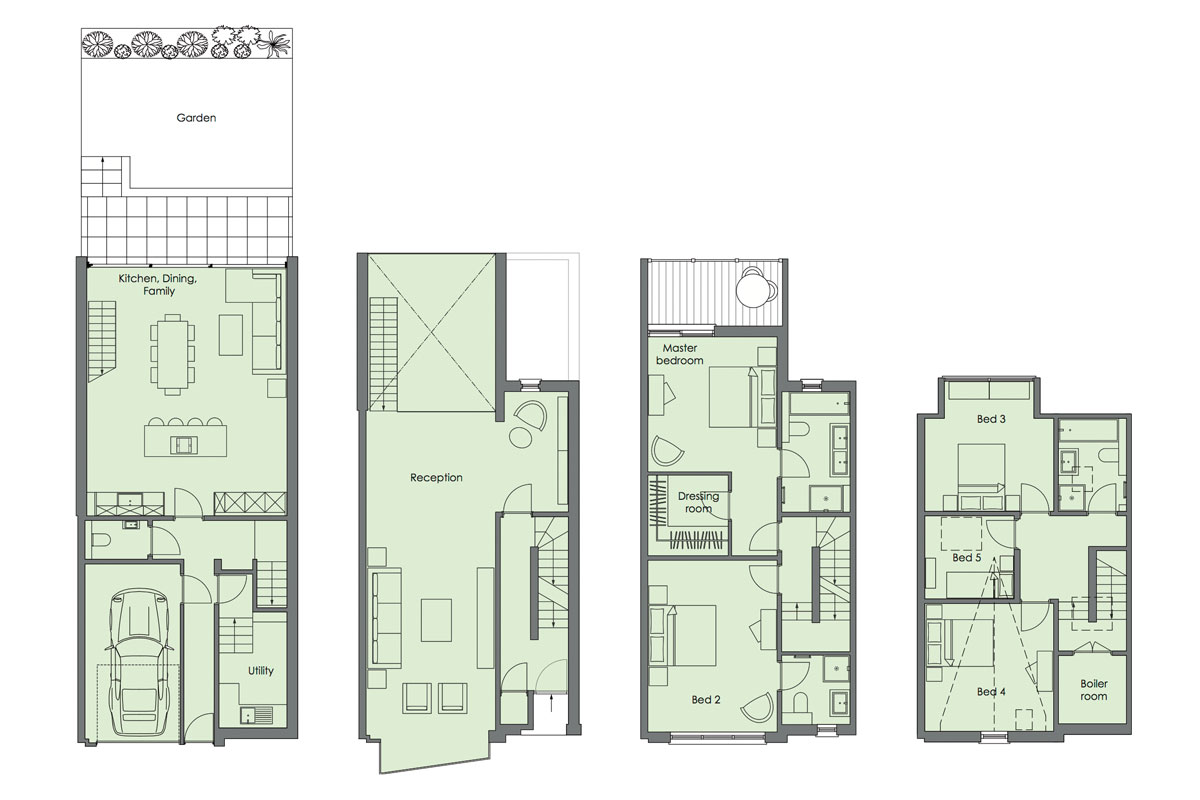
Nový nádherný dom v radovej zástavbe má úžitkovú plochu príjemných 279 m2, ktoré sú rozdelené do prízemia a troch nadzemných podlaží. Majitelia sa rozhodli kúpiť nehnuteľnosť v pôvabnej časti severného Londýna – Crouch End, kde ich teší výhľad na historickú budovu Alexandra Palace. Interiér bravúrne zvládli dizajnéri zo štúdia LLI Design.
Prízemná časť poskytuje štedrú plochu, na ktorú sa okrem garáže a technických miestností zmestila aj priestranná kuchyňa a jedálenská časť s výhľadom na vnútornú terasu a trávnik. Otvorený priestor medzi prízemím a prvým poschodím umožnil vytvorenie obývačky, ktorá je schodiskom priamo spojená so spodnou jedálenskou časťou. Súkromné priestory vrátane spální a kúpeľní sú umiestnené na najvyšších poschodiach.
Pri takom vzdušnom priestore, akým oplýva tento dom, bolo nevyhnutné zachovať a podnietiť určitú kontinuálnosť a živosť interiéru. Tá je dosiahnutá kombinovaním jednoduchého nábytku so zaujímavým osvetlením, využívaním kontrastov farieb a vzorov a vhodným výberom doplnkov, ktoré nenarúšajú celkový usporiadaný dojem. Obývacie časti pôsobia veľmi prívetivo a rodinne.
Kuchynský ostrovček je centrálnym bodom otvoreného plánu kuchyne a poskytuje priamy výhľad na záhradku, vďaka čomu je umožnená interakcia medzi obyvateľmi, ktorí momentálne pripravujú jedlo, a medzi tými, ktorí relaxujú v záhrade.
Masívne špirálovité svietidlo, ktoré sa tiahne z obývacej izby až nad jedálenský stôl, opticky aj funkčne prepája tieto dva priestory. Okrem toho stavbe dodáva potrebnú dramatickosť a iskru moderného dizajnu.
Elegantné veľkoformátové dlaždice pokrývajú celý podlahový priestor prízemia a zasahujú aj do terasy. Cieľom dizajnérov bolo vytvoriť expandujúci dojem kompaktného priestoru. Zároveň sa im podarilo pocitovo prepojiť exteriér a interiér.
Lakovaný nábytok spolu s ikonickými jedálenskými stoličkami Bertoia dômyselne dopĺňajú neutrálne tóny využité v kuchyni, jedálni, ale aj v obývačke na poschodí. Vytvárajú potrebný detail, ktorý dodáva priestoru estetickú hĺbku.
Ako pri mnohých otvorených priestoroch, kľúčové je zónové osvetlenie, ktoré dokáže vyčariť tú správnu atmosféru. Tento aspekt je ešte o to výraznejší, že priestor je spojitý nielen horizontálne, ale aj vertikálne. Navrhnutý systém osvetlenia korešponduje s exteriérovým osvetlením a vytvára tak dojem kompaktného obývateľného celku, ktorý poskytuje svojim obyvateľom dostatok priestoru a zároveň súkromia a funkčnosti pre každodenný život.
O dizajnéroch:
LLI Design ponúka nadštandardné služby v oblasti interiérového dizajnu pre náročných klientov. Štúdio sídli v Highgate v Londýne a kreatívny tím je vedený dizajnovou riaditeľkou Lindou Levene, ktorá pretavila svoje skúsenosti z módneho a textilného návrhárstva do nádherných návrhov, do ktorých premieta svoju lásku k forme, textúre a farbe. Návrhy štúdia LLI Design sú bezchybne prevedené do reality ich partnerskou spoločnosťou Pegasus Property, ktorej zamestnanci sa vždy uistia, že každý jeden prvok interiéru spĺňa prísne štandardy štúdia LLI Design.
Text: Anna Martausová v spolupráci so Sam Lee zo štúdia LLI Design
Foto: LLI Design
Zdroj: LLI Design















