Drsný komfort
Galéria(9)

Drsný komfort

Loftové bývanie je pojem, ktorý u nás širšia verejnosť na rozdiel od susedných krajín prakticky nepozná. Je však zrejme len otázkou krátkeho času, kedy sa termín ujme aj v hovorovej reči. Lofty sú bytové priestory v industriálnom štýle, prerobené najmä z bývalých skladov, tovární či iných neobytných budov. V súčasnosti sa trend takéhoto bývania vo svete rozkošatil do príliš neprehľadného množstva podôb a vo vzdialenejšom zahraničí lofty už vonkoncom nie sú synonymom elitného bývania, ako by sa zdalo podľa stavieb vznikajúcich v našom regióne, ktorých bude pravdepodobne stále pribúdať.

Trend budovania loftov oficiálne existuje 25 rokov a silno ovplyvňuje architektúru i bytovú kultúru. Po postavení 12 loftov v Nuselskom mlyne v roku 2004 sa o loftoch začalo búrlivo diskutovať aj v susednej Českej republike.

Loft – nielen luxus

Ukazujú to K lofty v San Diegu. Je to jeden z piatich projektov v kategórii viacbytových stavieb, ktoré minulý rok ocenil Americký inštitút architektov. Sedem bytov je určených pre rodiny s priemerným príjmom, jeden sa dokonca prenajíma za 700 dolárov, pričom priemerné mesačné nájomné loftu v USA je tisíc dolárov a luxusného loftu najmenej raz toľko.

Je to takmer čistý príklad pôvodnej koncepcie z čias, keď si opustené priestory začala adaptovať, najskôr ilegálne, bohéma. Od prijatia Multiple Dwelling Law (1982), zákona, ktorý riešil situáciu vyše 7-tisíc newyorských bytov tohto typu, sa karta obrátila. S loftami začali legálne podnikať developeri, ktorí zhodnocovali ich atraktívnu polohu. Väčšina pôvodných loftov sa nachádzala v Manhattane južne od Houston street (čiže v štvrti SoHo). Tam i v okolí, najmä v susednej TriBeCa (Triangle Below Canal), tieto byty dodnes zostali v podobe exkluzívneho bývania pre bezdetné páry s vyšším vzdelaním.

Lofty K, ktoré naprojektovali Jonathan Segal Architects v siedmom najväčšom meste Spojených štátov, nevznikli z bývalej továrne. Nie je to však ani nová stavba napodobňujúca industriálny štýl, ktorý charakterizuje celý rad pojmov (fake loft, mezzanine suites, loft-inspired, condo-loft, townhouse-loft). Architekti do stavby včlenili obľúbený obchod s potravinami Circle K, ktorý patril do genius loci a cítiť ho v hmote novej budovy – aj v jej názve. Stará štvrť Golden Hill zažila vrchol ako módna, no v posledných desaťročiach zakúsila i pád, keď začala pustnúť, pretože obyvateľom prekážal hluk z letiska. Dnes sa vo veľkých západných aglomeráciách ľudia vracajú do centier, lebo premávku v prímestských častiach pociťujú ako neúmerne hustú. V centrách po intenzívnych revitalizáciách podporovaných daňovými úľavami už začínajú byť priestory v bývalých priemyselných štvrtiach vzácne. Vznikajú teda hybridné typy loftov.

Podľa americkej terminológie sú K lofty v podstate soft loftom, keďže spálne sú oddelené priečkami, hoci pôvodné softloftové spálne sa nachádzali na galérii, kam viedli kovové schody, a štýl kázal neoddeľovať ich, a ak, tak iba priečkou maximálne z troch štvrtín. Pravoverné hard lofty z čias, keď ich v SoHo propagoval napríklad Andy Warhol, mali jednotný priestor a oddelené boli iba toalety a kúpeľne. Jonathan Segal použil takmer kompletnú škálu typických prvkov. Je to predovšetkým nadštandardná výška stropu, ktorú istá časť amerických zdrojov určuje minimálne na 14 stôp (426 cm), druhá časť na 16 stôp (487 cm). Klasickými továrenskými prvkami sú tu veľké okná, schodiská s nezbrúsenými zvarmi a patinou z hrdze, betónová podlaha s aranžovaným „vzorom“ škvŕn od motorového oleja a ťažké závesy, ktoré sa všeobecne odporúčajú miesto priečok.

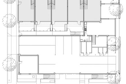
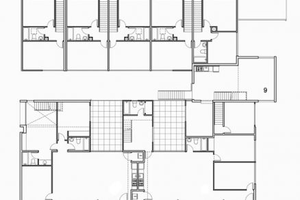
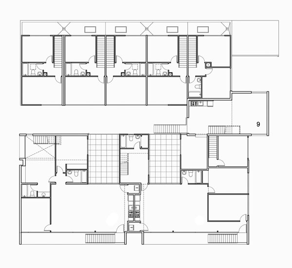
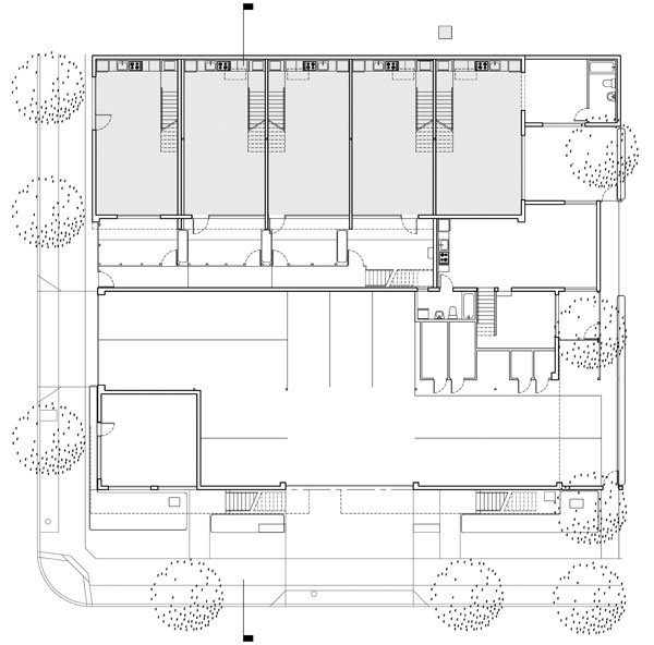
Pôdorys 1. NP Pôdorys 2. NP

50 percent energie spotrebovanej v K loftoch pochádza zo slnečných kolektorov. Zelené prvky nie sú pri loftoch bežné, ale sú typické pre Kaliforniu, ktorá je v USA na čele výstavby zelenej architektúry: v roku 1998 sa z fotovoltických panelov na všetkých typoch budov, nielen obytných, vyrobilo šesť megawattov, dnes je to okolo sto.

Veľmi výrazným projektom, ktorý taktiež smeruje inam, ako zatiaľ ukazujú české a poľské projekty, a to k priemernej príjmovej skupine, sú triplex lofty (dvojpodlažné s terasou), dokončené minulý rok na kopci Yungay v Valparaíse. Je to jeden z mnohých strmých kopcov, na ktorých je postavené historické centrum stredočílskeho veľkomesta, nepatrí však do oblasti nedávno vyhlásenej za miesto svetového kultúrneho dedičstva UNESCO. Mladí architekti z Inmobiliaria Rearquitectura Ltda zrekonštruovali opustenú rozvalinu s rešpektovaním pôvodných prvkov, hmoty, fasády i jej zvyčajnej lokálnej farebnosti, hoci nová je z vlnitého kovového obkladu. Silný postindustriálny ráz má najmä fasáda obrátená k zálivu. V interiéri nechýbajú kovové prvky. Sú sústredené v kuchyni, najsilnejším akcentom sú však „pravoverné“ loftové kovové točité schodiská; dokonca aj keramická podlaha má metalický lesk.

Čo nové v epicentre

Sklený loft priamo v ohnisku, niekoľko ulíc od SoHo, pochádzajúci z dielne ITERAE Architecture, firmy sídliacej v Paríži a New Yorku, je príkladom exkluzívnej loftovej architektúry – upscale loftu. Pre tento prúd je charakteristická najmä orientácia na luxusné vybavenie kuchyne a kúpeľne – tu architekti použili taliansky nábytok a materiály. V kuchyni sú barové stoličky Bombo od Stefana Giovannoniho (1999), v kúpeľni mozaikové obklady od Bisazza.

Rafinovaná a pomerne nákladná je aj priečka z nepravidelnej steny zo zváranej a leštenej ocele s výplňou z laminovaného mliečneho skla. Vyriešili ňou hendikep priestoru s oknami na jednej stene, kde bolo vzhľadom na potreby rodiny nevyhnutné pri jednotnom obytnom priestore so sektormi obývačky, knižnice, pracovne, jedálne a kuchyne oddeliť spálne. Je tu dokonca veľmi obľúbené režné murivo, povrchové inštalácie a trámy z (pre nás) exotického pekanového orechu (Carya illinoinensis), ktorý však v južných štátoch USA bežne rastie. K čistote žánru chýba azda iba požadovaná výška a nákladný výťah, z ktorého by sa vchádzalo rovno do bytu.

Dnes, keď sa toto bývanie vďaka Thatcherovej zákonu z roku 1987 (Town and Country Planning Use Classes Order) rozšírilo od polovice 80. rokov z USA cez Londýn, Frankfurt a Rotterdam do celého sveta, majú lofty aj rôzne hybridné formy. Vynikajúcim príkladom z posledného obdobia je adaptácia bytu na širokom prestížnom newyorskom bulvári Park Avenue. Navrhla ju renomovaná súrodenecká dvojica iránskeho pôvodu Hariri & Hariri – Architecture, ktorá momentálne realizuje v Európe luxusné byty na brehu rieky Salzach v Salzburgu.

Upscale lofty majú podstatné prvky loftovej dispozície, popri často všeobecných prvkoch top-segmentového bývania, ako je uniformovaná stráž, fitness štúdio, miesto na parkovanie, zasklené dvory, bazén či záhrada na streche. Tento interiér architektky nazvali Park-Avenue Loft. Je to však v podstate klasický komfortný byt vo výškovej budove. Má dispozíciu v tvare písmena L s ramenami zodpovedajúcimi obývacej a súkromnej sfére. Loftovým rázom interiéru sa, pravda, líši od multikultúrnych, vysoko dekoratívnych bytov tu v East Side. V interiéri síce nájdeme kovové prvky aj jednotlivé kusy nábytku v minimalistickom štýle, no zároveň upúta kararský mramor v kuchyni a troch kúpeľniach a celkovo dominuje nábytok a doplnky od Eera Saarinena (súprava organického nábytku Tulip – jedálenský stôl s tenkou doskou, opäť z kararského mramoru, 1956; sklolaminátové stoličky, 1957; kreslo Womb, 1948).

Loftový štýl cítiť najmä v tlmenej farebnej škále obývacieho priestoru a kuchyne aj vo veľmi striedmej podlahe. Strojovou estetikou – pravda, transformovanou skôr cez modernú plastiku, napríklad Richarda Serru, ako priamo fabrickým prostredím – sú ovplyvnené dva, pre Hariri & Hariri typické priestorové prvky v pistáciovej farbe, ktoré architektky nazývajú zložené prvky. Spolu s pilierom vytvárajú z rôznych zorných uhlov zaujímavé kompozície.

Karol Klanic