Drevo a pohľadový betón v interiéri domu
Pri výstupe po betónovom schodisku, ktoré kopíruje terén máte pocit ako by ste vystupovali na vrchol aktívneho stratovulkánu Mount Yotei. Previazanosť L House s okolitou prírodou umocňujú veľké zasklené plochy, ktoré poskytujú nádherný výhľad na údolie.
L House je súkromná rekreačná rezidencia v meste Niseko na japonskom ostrove Hokkiado. Rezidencia je umiestnená na území, ktorého topografia pochádza ešte z prehistorických čias a ktoré je charakteristické strmým svahom a úžasným výhľadom na aktívny stratovulkán Mount Yotei. Jeho výška dosahuje 1 898 m. n. m. Základové pomery boli na malom úseku tak výrazne odlišné, že bolo potrebné realizovať masívnu podpornú stenu z vystuženého betónu, čo sa podarilo aj napriek obmedzenému rozpočtu. S prihliadnutím na danú geografiu územia a v snahe využiť krásny výhľad na okolitú krajinu sa architekti rozhodli navrhnúť dom, ktorý by svojim výrazom zapadol medzi existujúce stromoradie.
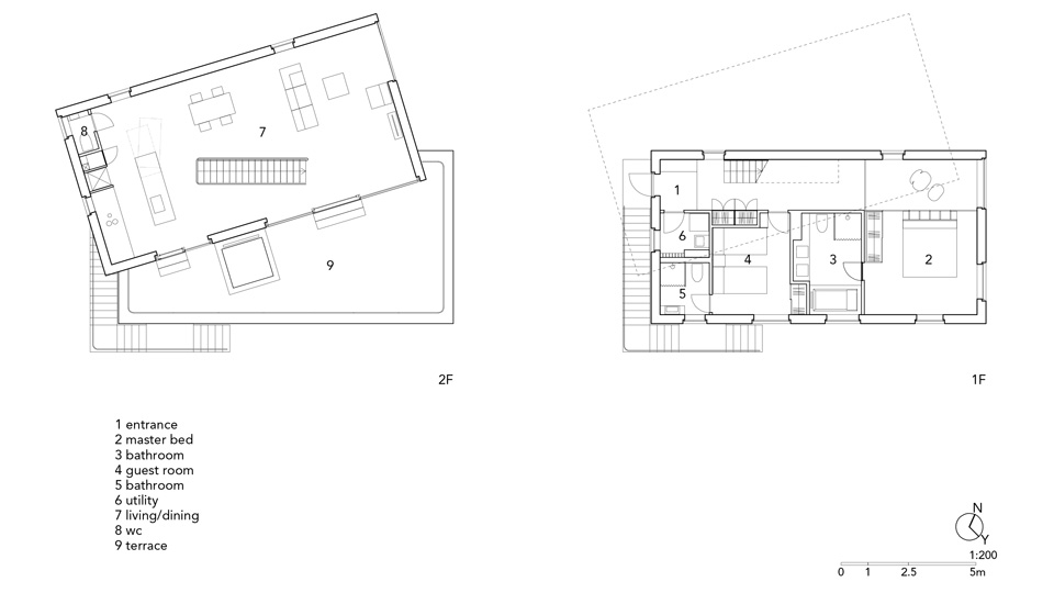
Zatiaľ čo je územie z hľadiska topografie členené vertikálne, L House je členený horizontálne. Architektonický výraz je jednoduchý a jednoduchosti je podradený aj interiér. Vstup je ukrytí pod vysunutou hornou hmotou domu. Vonkajšie schodisko kopíruje terén a človek má pocit akoby podnikal výstup na vrchol Mount Yotei. Priestranná obývacia izba a kuchyňa sú prepojené s vonkajšou terasou, ktorá tvorí zároveň strechu spodného podlažia. Na terase je situovaný odkrytý bazén. Súkromná zóna na spanie a kúpeľne sa nachádzajú na prízemí. Architekti zvolili veľké zasklené plochy, vďaka ktorým si majitelia môžu užívať rozľahlý výhľad na údolie, ktoré leží pod svahom a pod úpätím hory Mount Yotei.
Stavebník: Hokkaido Tracks
Projektový tím: FBA: Florian Busch, Sachiko Miyazaki, Tomoyuki Sudo, Holger Pausch (intern)
Zhotovovateľ: Sudo Corporation
Pôdorysná plocha: 154 m2 + 44 m2 terasa
TEXT: Florian Bush Architects, wda
FOTO: Hyroyuki Sudo




















