Dom, o ktorom sa vám ešte len bude snívať
V čom nastal pokrok pri stavbách rodinných domov? Mohutné zateplenie neovplyvňuje teplo domova, nútené vetranie neprináša svieže dizajnérske nápady a kompaktný tvar domu môže niekedy proste znamenať len to, že ide o dobrý návrh stavby a nebolo nutné nič pridávať ani uberať. Večná téma optimálneho bývania ešte rozhodne nie je uzatvorená.
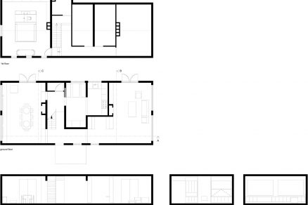
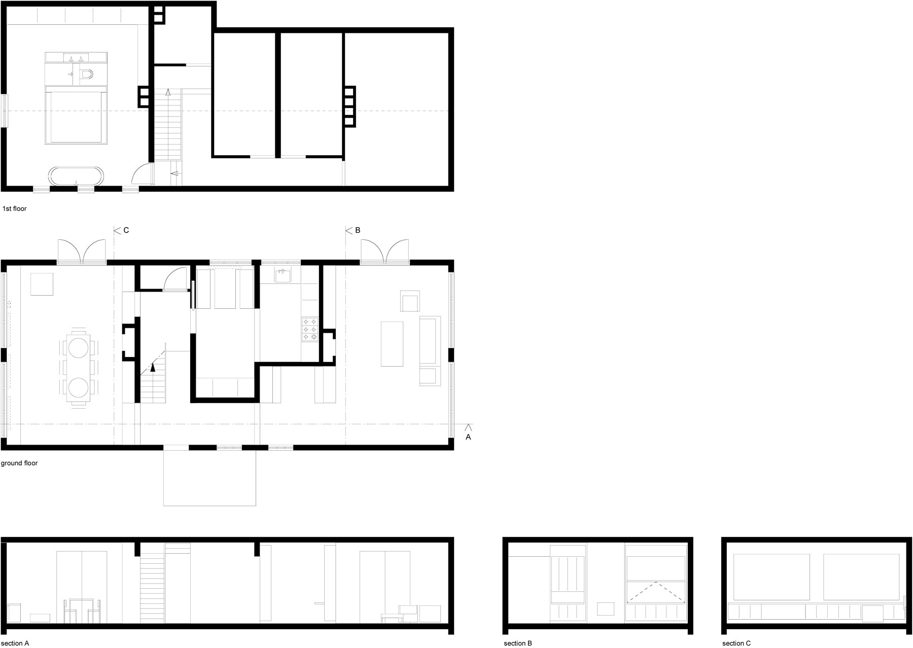
Rodinný dom v holandskom meste Wassenaar neoplýva žiadnymi nadštandardnými technológiami. Jeho prídavná hodnota spočíva v tom, že sa pri návrhu a realizácii zvolili odlišné alebo nápadité riešenia. Pritom nejde o nič prevratné, viacero vylepšení každodenného života už boli použité aj predtým. Napríklad elegantné zakomponovanie pracovného stola do radu skriniek pozdĺž steny, priamo pod oknom, šetrí priestor uprostred miestnosti a všetok nábytok tvorí jednoliaty celok.
Ďalšie z miest na prácu sa nachádza v obývacej miestnosti a toto pracovisko je rovnako zakomponované, tento krát do obývacej steny. Užívateľa tak neruší pohľad na obrazovku a navyše je možné celú televíziu skryť za veľké posuvné dvierka. Obývacia stena vďaka tomu slúži viacerým účelom – ako úložné priestory, zázemie na prácu, miesto pre zabudovaný krb, TV a knihy.
Dispozícia interiéru je usporiadaná okolo centrálneho schodiska, pôsobí dosť uzatvoreným dojmom. Priestorom sa nešetrilo v oboch krajných miestnostiach, ktoré sú určené na relax, oddych, stolovanie. Naopak kuchyňa je umiestnená zo severnej strany, v úzadí a prekvapivo aj miesto pre bežné stolovanie bolo od kuchyne oddelené priečkou.
Najväčšiu zvláštnosť predstavuje v celom dome spálňa, ktorá bola spojená s kúpeľňou. Architekti postupovali veľmi opatrne s voľbou farieb a materiálu, aby sa pocit pohodlia v spálni nevytratil pri chladne pôsobiacej sanitárnej keramike. Lesklé materiály sú použité len tam, kde je to nevyhnutné a už pri návrhu bolo treba počítať s použitím veľmi kvalitných a trvácich materiálov, odolných hlavne voči vlhkosti. Vaňa v tejto miestnosti pôsobí skôr ako nábytok, na bežné používanie viac slúži zabudovaná sprcha. Hlavná myšlienka je, že viditeľné je len to, čo plní funkciu oddychu.
Materiálové riešenie na prvý pohľad spočíva v klasickej čiernej a bielej kombinácii, ktorá je doplnená bledou travertínovou podlahou. Na vybavenie interiéru však boli využité aj netradičné materiály ako Corian či ALPI dýhy. Z Corianu bola vyrobená doska, vďaka čomu môže slúžiť ako vrchná časť bielej skrinky i vstavaného stola. Corian, zvaný aj umelý kameň, sa totiž dobre čistí a možno z neho bezproblémov odstrániť aj škrabance. Často sa využíva v zdravotníctve, najmä pre dokonalý hladký povrch, trvácnosť a žiadnu nutnosť spár.
Obývacia stena má na povrchu špeciálne ALPI drevené reliéfne dyhy. Táto plastickosť premieňa nevýrazné rovné povrchy nábytku na jedinečnú hru svetla a tieňov. V tomto rodinnom dome má každý prvok a materiál svoj zmysel a jednotlivé zlepšenia bývania sú použité len vtedy, ak spolu dokonale fungujú.
Autor: i29 interior architects
Lokalita: Wassenaar, Holandsko
Podlažná plocha: 90 m2
Web: www.i29.nl
ZDROJ: autorská správa
TEXT: Katarína Vankušová
FOTO: i29 interior architects




















