Dizajn pre geriatriu
Demografická krivka je neúprosná, v populácii postupne narastá počet ľudí vo vekovej kategórii nad 65 rokov. S vyšším vekom pribúdajú aj choroby, a hoci je geriatria v nemocniciach často na okraji záujmu, vo Zvolene to riaditeľ nemocnice vidí inak. Seniorov tu liečia na modernom zrekonštruovanom oddelení.
Pacientov s vyšším vekom bude časom čoraz viac,“ konštatuje MUDr. Jozef Botka, výkonný riaditeľ a predseda predstavenstva Nemocnice Zvolen, a. s. „Myslím si, že v budúcnosti to bude v nemocniciach kľúčové oddelenie s najväčšou spotrebou liekov okrem ARO. Paradoxne, mnohé nemocnice v okolí geriatrické oddelenie rušia, naša spádová oblasť sa tak zväčšuje, dnes je to okolo 100-tisíc obyvateľov.“
Kde netreba šetriť
Vo zvolenskej nemocnici sa snažia skrátiť hospitalizáciu čo najviac, dnes dosiahli hranicu priemerne osem dní. Vzhľadom na koncepciu rozvoja nemocnice s výhľadom na najbližších 20 rokov sa rekonštrukcia geriatrického oddelenia stala prioritou. Prvú fázu, lôžkovú časť na prízemí, zrealizovali v roku 2013. „Nechceli sme vyslovene šetriť za každú cenu. Jednoduchý „šedý“ štandard, čiže v preklade lacné materiály, by nás vyšiel na jednu dvojlôžkovú izbu asi o 4-tisíc eur menej. Nechcem preceňovať význam vizuálneho účinku, ale hoci si pacienti za hospitalizáciu v zrekonštruovanej časti priplácajú tri eurá na deň, oddelenie je stále plné. Dobrý dizajn netreba podceňovať ani na geriatrii. Navyše, do troch rokov sa nám investícia do kvality a esteticky hodnotnejšieho prostredia vráti,“ hovorí Jozef Botka. Rekonštrukcia priniesla do interiéru výraznú farebnosť v podobe kombinácie svetlozelenej farby a dreveného wengé dekoru. Všetky stolárske práce zvládol miestny výrobca nábytku.
Treba počúvať
Izby sú primerane priestranné, dvojlôžkové, od chodby ich oddeľujú praktické posuvné dvere, ktoré ušetria veľa priestoru a dajú sa ľahko ovládať. Najväčšiu časť financií však zhltla hrubá stavba. Hoci je dnes sprcha a toaleta štandardným vybavením moderných nemocničných izieb, konštrukcia starej budovy nedovoľovala rozsiahle úpravy, ktoré by, navyše, výrazne zvýšili rozpočet. Padlo teda rozhodnutie pripraviť väčší počet lôžok, pričom každá izba je vybavená aspoň umývadlom. K dispozícii je v každej izbe televízor. Tento príjemný detail však neurobil veľkú dieru v rozpočte, rovnako ani moderná kuchynka. Spoločné hygienické zariadenia sú vybavené tarketovým obkladom, ktorý sa ľahko udržiava čistý. Všetky potrebné technológie na ošetrovanie pacientov sú schované v nike za každým lôžkom. Okrem zrekonštruovaných izieb majú pacienti k dispozícii novú príjmovú ambulanciu s čakárňou. „Držíme sa princípu, že ak pacient ráno príde, v priebehu pár hodín mu spravíme všetky potrebné vyšetrenia a popoludní ho už liečime,“ vysvetľuje Jozef Botka. Pri rekonštrukcii jednotlivých priestorov nemocnica spolupracuje s architektom Petrom Mravcom. „Je to architekt, ktorý je otvorený dialógu a pozorne počúva, čo nemocnica potrebuje. Nie je ľahké nájsť architekta odborne zdatného v navrhovaní zdravotníckych zariadení. Projekty tvoríme spoločne a konzultujeme ich so všetkými zúčastnenými pracovníkmi: lekármi, sestrami, inštrumentárkami, ošetrovateľmi, dokonca aj s upratovačkou,“ vypočítava riaditeľ zvolenskej nemocnice a dodáva: „Zamestnancov pozorne počúvame a dispozície a prevádzku prispôsobujeme efektívnym pracovným postupom. Najbližšie už plánujeme rekonštrukciu operačného traktu.“
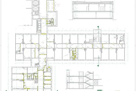
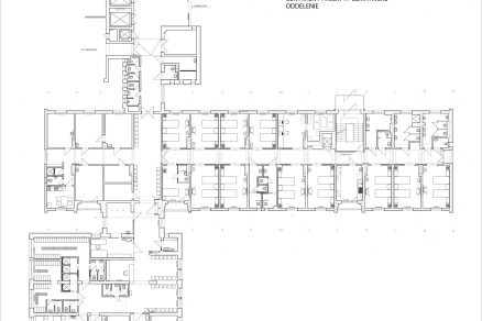
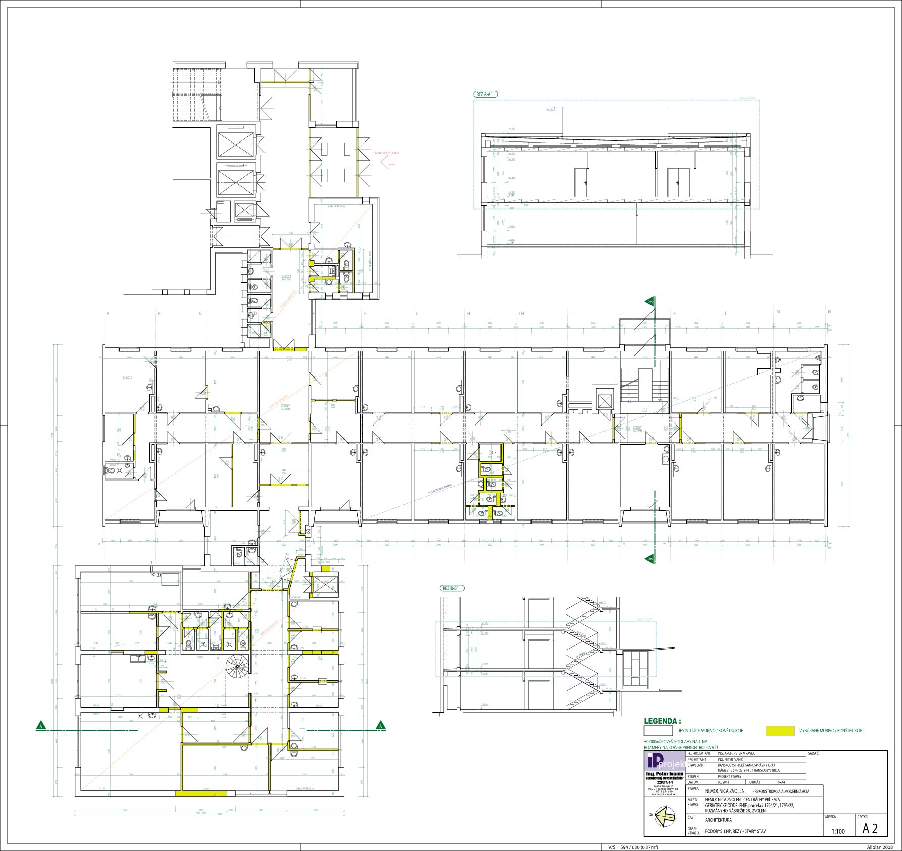
Rekonštrukcia geriatrického oddelenia, Zvolenská nemocnica, a. s.
Architekt: Ing. arch. Peter Mravec
Investor: Zvolenská nemocnica, a. s.
Realizácia: 2013
TEXT: Mária Nováková
FOTO: DANO VESELSKÝ
dokumentácia: Ing. arch. Peter Mravec
Článok bol zverejnený v časopise ASB.










