Citlivá premena farmárskeho statku
Rekonštrukcia farmárskeho statku Burkeldijk v tesnej blízkosti chránenej pamiatky, pevnosti Hazegras, v belgickom Knokke si vyžiadala špeciálny prístup architektov.
Toto miesto má vďaka svojej histórii i prírodnému prostrediu svojskú charizmu a tú bolo dôležité elegantne preniesť i do modernej architektúry projektu. Vyžiadalo si to podstatnú dávku empatie a skúseností, ktorú, našťastie, architekti z ateliéru Govaert & Vanhoutte Architects rozhodne majú.
Harmonická premena
Fenomenálna architektúra historických prvkov v okolí predurčila charakter premeny starej farmárskej budovy v tvare písmena U na rezidenciu. Pôvodné časti stavby boli začlenené do nového celku bez toho, aby pôsobili odtrhnuto alebo aby bol pošliapaný ich historický význam.
Zároveň sa ich niektorými prvkami podarilo architektom uviesť do rovnováhy s ostatnými modernejšími celkami. Tehla je kombinovaná s príjemnými drevenými fasádami pristavovaných častí.
Drsný betón, odhalená strešná konštrukcia
Architekti sa veľmi úzkostlivo sústredili aj na výber materiálu. Elegantne pôsobia kovové rámy veľkých okien z trojskla v kombinácii s tehlou a drevom. Nielen materiály fasád a vonkajšieho plášťa všeobecne odrážajú miestnu architektúru usadlostí.
Statok premenený na rodinný dom v interiéri fascinuje na pohľad drsným vymývaným betónom (na niektorých miestach nahrádza aj funkciu nábytku, veľmi dobre vynikne i v kúpeľni), ktorý pôsobí kontrastne k odhaleným obnoveným dreveným strešným konštrukciám, čo dodáva príbytku špeciálne čaro.
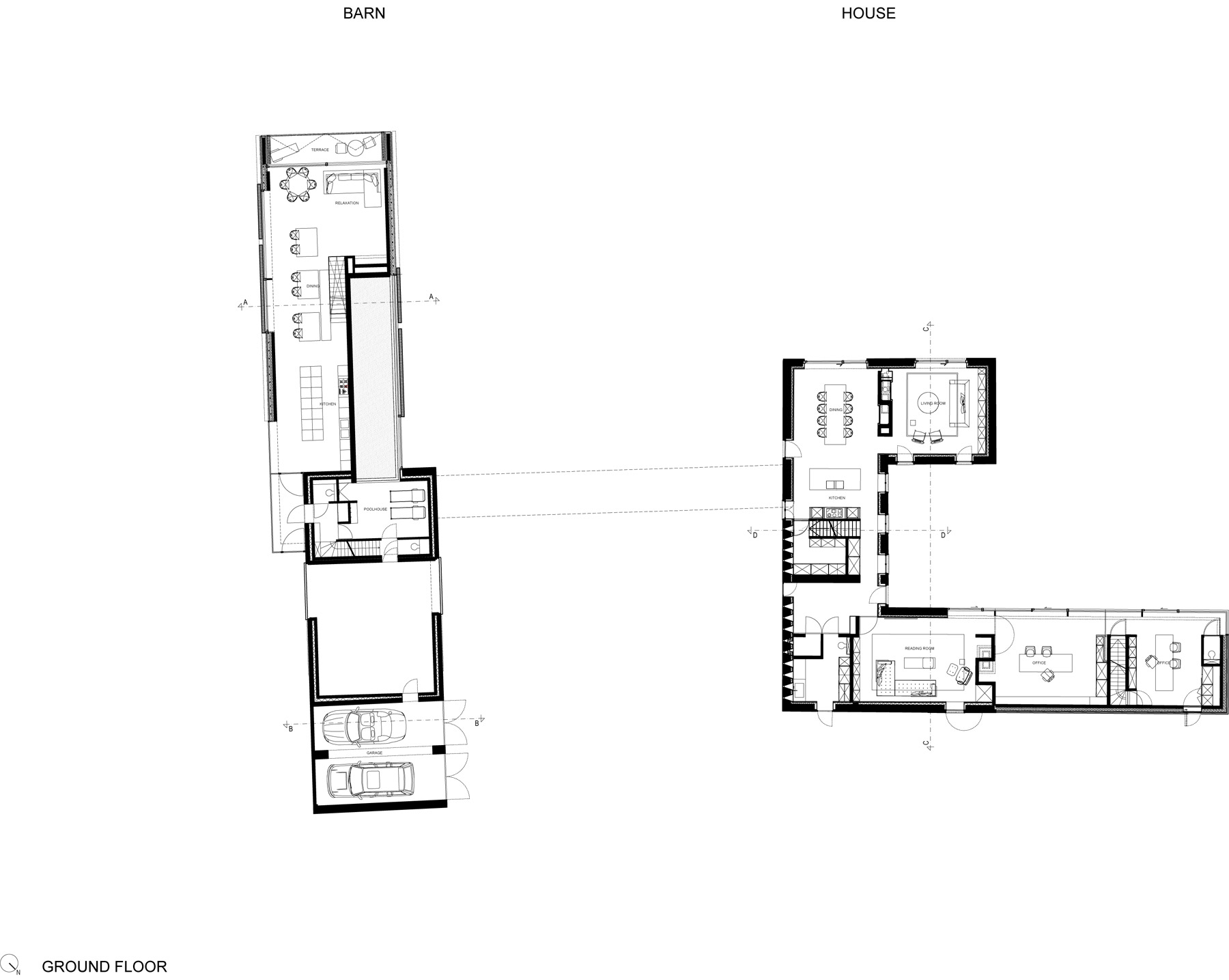
Dispozícia a podzemná chodba
Priestory určené na čítanie a prácu sú orientované smerom k vnútornému nádvoriu a poskytujú dostatok nerušeného súkromia. Podobne, ako je to dnes v mnohých projektoch, i tu sa snažili architekti minimalizovať hranicu medzi interiérom a exteriérom a čo najviac otvoriť obytné priestory. Špecialitou tejto rezidencie je novovybudovaná podzemná chodba, ktorá spája premenený statok so stodolou.
I pri rekonštrukcii stodoly – pri jej rozšírení – architekti volili podobný rukopis i materiály. Nachádzajú sa tu izby pre hostí, hosťovská kuchyňa i krytý bazén. Posuvná časť fasády mení osvetlenie podľa potreby a tiež určuje mieru súkromia.
Rešpekt a vojenská poézia
„Nielen funkčná transformácia usadlosti a stodoly, ale aj reštaurovanie a sanácia pamiatok vniesli do novej podoby atmosféru rešpektu a výraznú vojenskú poéziu. Umelé osvetlenie okolo štyroch takmer identických betónových a murovaných bunkrov juhovýchodne od stodoly zvýrazňuje význam monolitov,“ píšu v správe autori projektu.
Niet pochýb o tom, že sa im podarilo oživiť charakter miesta a statku samotného a prinavrátiť mu genia loci.
Belgický architektonický ateliér Govaert & Vanhoutte Architects je nositeľom mnohých významných ocenení: „Popular Choice Award“ A+ AWARDS 2016 New York, IDA AWARDS 2015 Los Angeles, CIVIC TRUST AWARDS 2014 UK, „Corporate Architecture award & Public Architecture award“ ICONIC AWARDS 2013 Germany, dve strieborné ceny IDA AWARDS 2013 Los Angeles.
Statok Burkeldijk – rezidencia DBB v kocke:
Architekti: Govaert & Vanhoutte Architects
Lokalizácia: Knokke, 8300 Knokke-Heist, Belgicko
Plocha: 566 m²
Realizácia: 2015
Text: Sabína Zavarská
Fotografie: Tim Van De Velde

























