Chata alebo dom? Zvoľte moderný vidiecky dizajn 2v1
Túžite po chate, v ktorej sa spája to tradičné s modernými prvkami? A zároveň by ste chceli, aby bola plnohodnotným obydlím aj na dlhší čas? Rozdiel medzi tradičnou víkendovou chatou a domom, v ktorom sa dá bývať aj na dennej báze, sa v posledných rokoch výrazne zmenšuje aj u nás. Nechajte sa inšpirovať dizajnom moderného kanadského vidieka, ktorý poľahky zapadne aj do našich zemepisných šírok – predstavujeme vám Panorama House.
Prekrásne a typické chatové prostredie – na okraji lesa, medzi údolím a trávnatými močiarmi. To je miesto, ktoré si majitelia vybrali na výstavbu rafinovanej interpretácie moderného vidieckeho dizajnu. Projekt je dielom architektonického ateliéru Blouin Tardif Architecture Environnement. Dom má jednoduchý obdĺžnikový tvar, poskytuje bezpečné a útulné útočisko, pričom príjemne korešponduje s prostredím a zároveň spája v sebe prvky minimalistických a účelných riešení v súbežnej línii s tradičnými chatovými solitérmi.
Spoločenský priestor očaruje svojou vzdušnosťou, opticky ho delia priečky z cédrového dreva. Jednoduchý drevený nábytok dopĺňajú stoličky v oživujúcej oranžovej farbe.
Prvá časť poschodia priláka hostí oceľovým kozubom, ktorý je ako stvorený na rodinné a priateľské stretnutia okolo ohňa, zatiaľ čo druhá časť je primárne praktická – zastrešuje kuchyňu, špajzu a práčovňu.
Farebná škála je postavená na kombinovaní kontrastu bielej a tmavosivej (miestami až čiernej), a prirodzenej kresby dreva. Celý koncept dopĺňajú žiarivé oranžové prvky, ktorých misiou je priniesť do vidiecky ladeného priestoru iskrivé a živé pocity. Stratégia projektu spočíva v priestorovom sústredení denných aktivít (jedáleň, kuchyňa, obývacia izba, veranda) na hornom poschodí s cieľom vyťažiť maximum z denného svetla a okolitej prírodnej scenérie. Všetky izby sú riešené ako panoramatická séria, ktorá sa tiahne pozdĺž juhovýchodnej strany a končí sa verandou.
Neprehliadnite na www.asb.sk
Záhradný domček priamo od architekta
Ako rozdeliť apartmán s rozlohou 28 m2
Interiér podkrovného bytu v čiernobielej kombinácii
Externý aj interný priestor plne korešponduje so srdcom prírody, ktorá objekt obklopuje. Dom a chata v jednom je výsledkom precízneho naplánovania projektu s ohľadom na prostredie.
Veranda, ktorá je voľným pokračovaním kuchyne, je z dvoch strán panoramatickou vyhliadkovou vežou. Drevený obklad a jednoduchý funkčný nábytok dodávajú miestu prívetivú atmosféru.
Oranžové predné dvere vedú na prízemie, na ktorého ploche sú umiestnené spálne a garáž. Hneď ako sa ocitnete vo vnútri, priestor vás láka vyjsť ďalej po schodoch.
Žiarivé dvere sú zaujímavým, príjemne osviežujúcim doplnkom celku, ktorý je inak farebne a tvarovo celkom čistý a harmonický.
Blouin Tardif Architecture Environnement (BTAE) je jedným z architektonických ateliérov, ktoré sa snažia dynamicky spájať civilizačný pokrok s prírodou. Navrhujú projekty, ktoré zahŕňajú v sebe princípy filozofie zameranej na integráciu, rovnováhu, udržateľnosť a pohodu v umení prebývať. Ich snahou je rozšíriť vnímanie vidieckeho domu v moderných rozmeroch, ktoré okrem špičkového dizajnu prinášajú aj udržateľnosť a ekologickosť bývania. Počas 10 rokov existencie získali už mnohé ocenenia, v roku 2013 napríklad ocenenie CECOBOIS za výnimočné zásluhy prostredníctvom kúpeľného projektu Station Blü.
Monochromatická kúpeľňa pôsobí minimalisticky čistým dojmom. Interiér sa spolieha na krásu okolitej prírody, ktorú vhodne dopĺňa nekomplikovaným dizajnom.
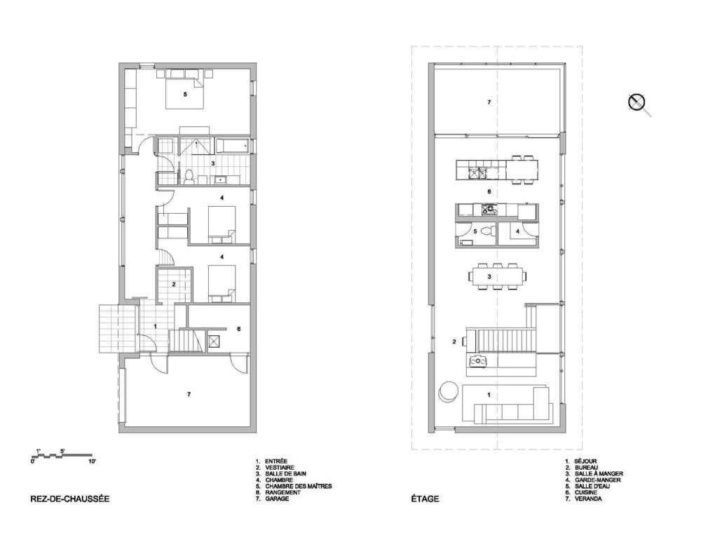
Pôdorys
Text: Anna Martausová
Foto: Steve Montpetit
Zdroj: v2com-newswire.com
























