Bývanie v priestore bez hraníc
Zrušenie zaužívaného priestorového členenia a spájanie dispozície do jedného celku sú na Slovensku pomerne nové a pre mnohých stále prekvapivé spôsoby riešenia interiérov. Jedným z priekopníkov takýchto návrhov u nás je architektonické štúdio Toito, ktoré si za svoje nápadité riešenia odnieslo v minulom roku aj cenu za architektúru CE∙ZA∙AR. Tentokrát si predstavíme ich projekt Byt M, situovaný v hlavnom meste. Viete si v ňom predstaviť svoj život?
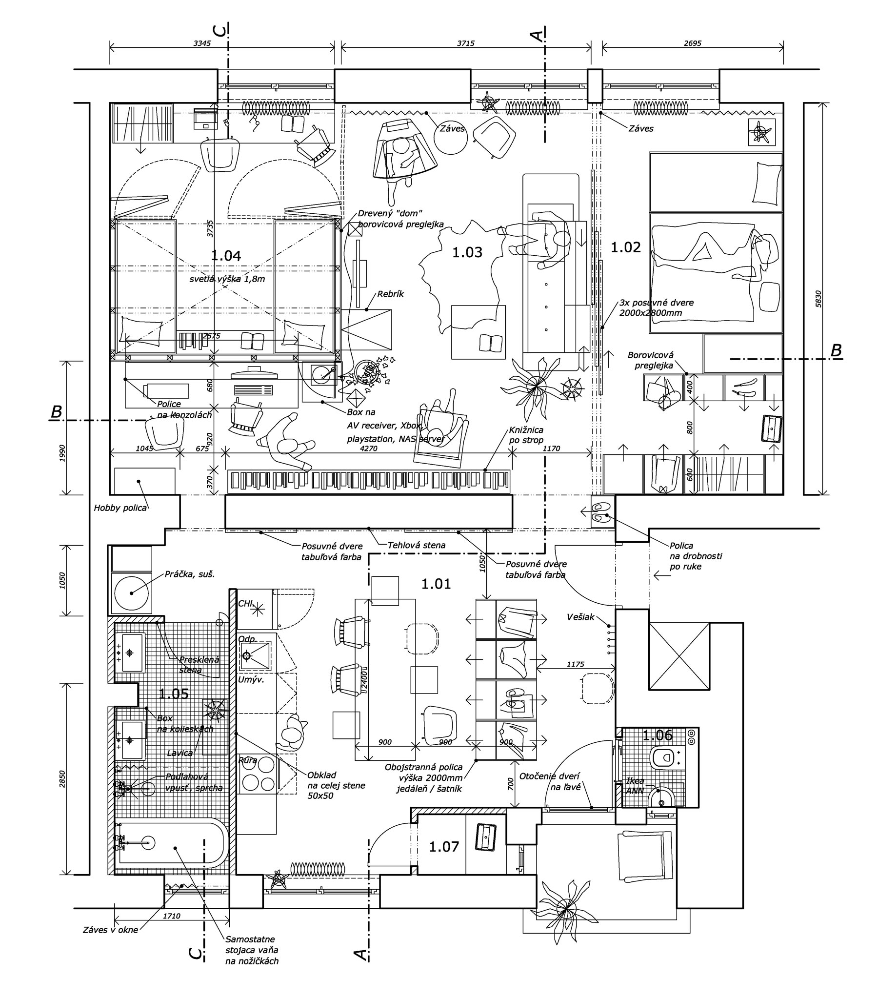
Pôvodná dispozícia bytu striktne rozdeľovala jednotlivé funkčné časti. Vzhľadom na rozdielny životný štýl nových obyvateľov dochádza k spájaniu jednotlivých zón a k podpore komunikačného prepojenia. Potreba rozdelenia bytu na zóny zanikla a priestor nadobúda vzdušný a silne rodinný charakter.
Zmena dispozície bytu začala „od podlahy“. Vyčistili sa priestory, aby sa mohol zrealizovať zámer, a priznali sa stropné trámy.
Skice návrhu interiéru vystihujú celú ideu projektu. Byt je dispozične rozdelený na dve hlavné časti, jednotlivé funkčné zóny sa spájajú a zároveň poskytujú možnosť variabilného riešenia.
Architektonický ateliér Toito využíva pri svojich projektoch zobrazenia návrhov pomocou modelov. Takto si klient dokáže reálne predstaviť svoje budúce bývanie a zhodnotiť jeho klady i zápory. Veľkou časťou navrhovania je tiež komunikácia a spoznanie klienta. Takáto forma práce otvára nové možnosti, podobné Bytu M, keď klient na základe dôvery v architekta pristupuje aj na nové a veľmi inovatívne riešenia.
Svojou veľkosťou dominuje bytu spoločenská časť. Na niekoľkých štvorcových metroch nájdeme obývaciu izbu, pracovňu, detskú izbu i „rozhľadňu“, ktorá slúži na oddych i hranie, s výhľadom na celú miestnosť. Spálňa rodičov bola minimalizovaná a oddelená posuvnou priečkou. Tu sa nachádza aj priestranný šatník.
Podobným komunikačným prepojením prešla aj druhá časť bytu. Vstupnú halu od kuchyne s jedálňou delí len šatníková skriňa. Zasklené dvere na kúpeľni privádzajú denné svetlo a zároveň ju prepájajú s ostatnými priestormi.
Finálna podoba bytu je teda skutočne bez hraníc. Hoci je realizácia pomerne radikálna, v období preferencie single bývania či v prípade málodetných rodín je inovatívnym riešením poskytujúcim variabilné využitie priestoru.
Autori projektu, dokumentácie, modelu: Toito architekti, www.toito.eu
Autor fotografií: Katarína Beladičová
Autor drevených konštrukcií: Kamil Kohút
Realizátor stavebných úprav: www.stavby-rekonstrukcie-bratislava.sk
Autor článku: Ing. arch. Paulína Oravcová























