Bývanie pre mladú dvojicu pod bratislavskou Kolibou
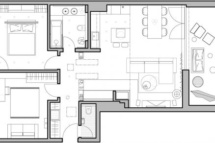
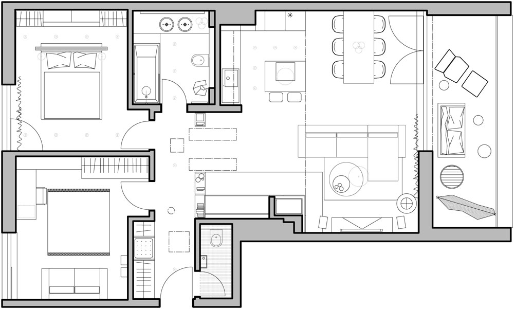
Nájsť bývanie, ktoré spĺňa všetky predstavy o komforte a je situované v atraktívnej lokalite, nemusí byť vždy jednoduché. Trojizbový byt na Kolibe v Bratislave má výbornú polohu, k dokonalosti mu však chýbal správny návrh interiéru. O tento sa svojím kreatívnym prístupom postaral ateliér MIMOarchitekti, ktorý vytvoril vizuálne jednoduché a zároveň funkčné riešenie bývania pre mladých na obytnej ploche 86m2.
Vstupný priestor bytu tvorí odkladacia zóna v podobe vstavanej šatníkovej skrine s priestorom na sedenie. Povrchovú úpravu skrine tvorí dubová dyha, sedací priestor lemujú biele matné aj lakované dosky MDF. Akcent priestoru vytvára masívne zrkadlo v čiernom drevenom ráme. O príjemné osvetlenie sa starajú biele svietidlá v tvare valca, ktoré sú použité aj v ostatných častiach bytu. Priestory vstupu a dennej časti prepája otvorená knižnica, ktorá poskytuje príjemné súkromie v obývacej časti a zároveň priestor striktne nerozdeľuje. Vstupy do ostatných miestností z chodby oddeľujú bezfalcové dvere s povrchovou úpravou bielym matným lakom.
Dennú časť tvorí kuchyňa s jedálňou, obývacia izba s kozubom a knižnicou a priestranná terasa. V obývacej časti na prvý pohľad dominuje farebnosť prírodného duba na podlahe i obkladoch. Je skombinovaná s bielou farbou stien a nábytkových prvkov. Priestoru vládne sivá sedacia súprava, ktorá korešponduje s obkladom kozubovej časti. Ozvláštňujúcimi prvkami sú tmavé svietidlá a výrazné nábytkové doplnky: žltý stolík na kávu DLM (HAY), príručný stolík čiernej farby Hocker (VITRA), keramické solitéry z dielne dizajnériek SI.LI. či plátna od výtvarníka Viliama Slaminku.
Hojdacie kreslo Eames Plastic Armchair z dielne výrobcu VITRA
Kuchynská časť s pracovným ostrovčekom v centrálnej časti plynule prechádza do obývacej izby. Neutrálna farebnosť a minimalistické vyhotovenie kuchyne neupriamujú pozornosť na túto zónu, ale sú v súlade s ostatným priestorom.
Priestor spálne bol z dôvodu oddelenia šatníka od nočnej časti predelený zástenou s obkladom s dyhou wenge. Šatník je prakticky prístupný z oboch strán. Celkovú farebnosť dopĺňajú závesy s motívom klasov od textilnej dizajnérky Michaely Bednárovej (PUOJD).
Sivý gresový obklad a dlažba v kúpeľni korešpondujú s prvkami v ostatnom interiéri podobne ako akcent zrkadla z tmavého dreva. Zaujímavé je i riešenie dreveného podhľadu v kombinácií s valcovými svietidlami.
Byt bol pred návrhom interiéru v stave, ktorému sa zvyčajne hovorí holobyt, čo poskytlo architektom dostatok priestoru na kreativitu. Dispozícia bytu je riešená účelne, v dennej ani nočnej časti nechýba dostatok odkladacích priestorov. Zaujímavo je vyriešená denná časť bytu – kuchyňa spojená s jedálňou a obývacou izbou s kozubom je prepojená s priestrannou terasou, ktorá prezentuje atraktivitu lokality.
Dodávatelia interiérových prvkov: Stolárstvo Janička, Kabinet, Cymorka, Raster
Autorka článku: Ing. arch. Paulína Oravcová
Autori projektu: MIMOarchitekti, Továrenská 14, Bratislava, www.mimoarchitekti.sk
Autor fotografií: Jakub Jančo




















