Byt z batikovanej preglejky
Kto by si pomyslel, že sa technika batikovania dostane aj do nábytkárskeho priemyslu? Zaujímavý vzhľad preglejky šikovne využili pri rekonštrukcii apartmánu mladí taliansky architekti.
Hlavnou výzvou tejto rekonštrukcie bolo vdýchnuť malému apartmánu s rozlohou 28 štvorcových metrov život a opticky ho zväčšiť. Minimálne, avšak veľmi živé obslužné zóny boli navrhnuté tak, aby hlavný priestor získal na maximálnom objeme. Centrálny priestor je jednoduchý a čistý, úložné priestory sú zhotovené z preglejky. Máte pocit, ako by interiér pokračoval ďalej za svoje hranice až do exteriéru.
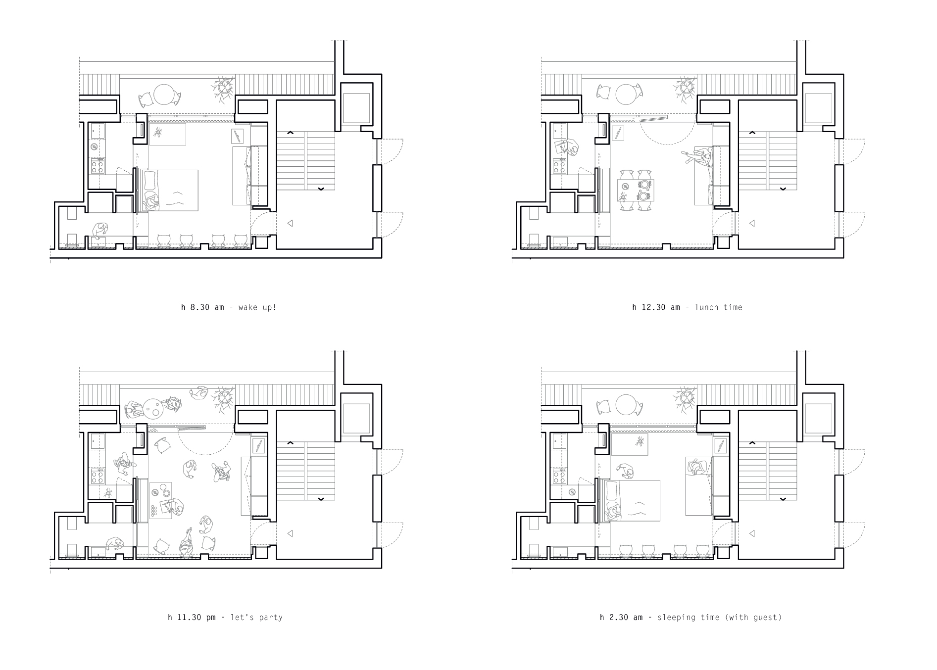
Využitie dennej zóny sa môže meniť veľmi flexibilne v závislosti od požadovaného účelu – priestor sa tak môže zmeniť na spálňu, jedáleň, či obývačku.
Ak máte hosťa a po párty chce u vás prespať
Aktívna stena z lepenej preglejky ukrýva všetok nábytok, skladaciu dvojposteľ, posuvné dvere vedúce do kúpeľne a kuchyne, WC a priestoru na klimatizačnú jednotku. Využitie dennej zóny sa môže meniť veľmi flexibilne v závislosti od požadovaného účelu. Kúpeľňu a kuchyňu predstavujú dva monochromatické modré boxy, zatiaľ čo obývacia časť je charakteristická bielymi povrchmi, zvolenými so zámerom zvýšiť svetlosť a podčiarknuť textúru drevenej steny.
Kúpeľňu a kuchyňu predstavujú dva monochromatické modré boxy.
Flexibilita priestoru
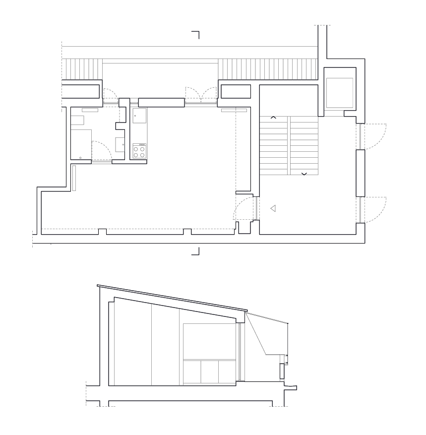
Pôdorys pôvodného riešenia
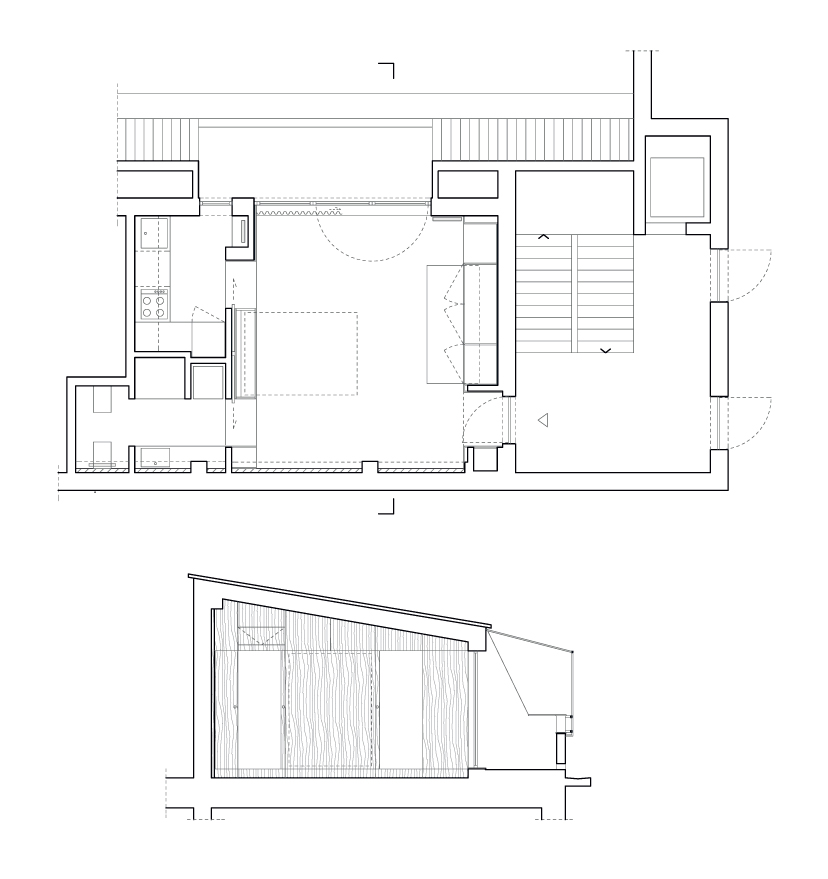
Pôdorys navrhovaného riešenia
Autori projektu: studioWOK
Investor: Edil 200 snc
Drevený nábytok: Arredo 90 srl
Okná: Fratelli Rusconi snc
Rozpočet: 35 000 eur
TEXT: studioWOK, wad
FOTO: Federico Villa
























