image 98475 25 v1
Galéria(14)

Ako spraviť bazén priamo pod drevodomom?

Svahovitý pozemok si vždy vyžaduje špeciálny prístup. Tentokrát vznikol zaujímavý drevodom, ktorý vďaka konzolovitému riešeniu vytvára veľký zastrešený priestor. Spĺňa nielen funkciu terasy, ale je doň vsadený aj bazén.

EXT 01
EXT 01
EXT 02
EXT 03
EXT 04
EXT 05
EXT 09
INT 01

Drevo na betóne

Konzolový dom sa nachádza na koncovom pozemku pri cintoríne. Umiestenie na najvrchnejšej časti poskytuje majiteľom domu viacero výhod. Jednou z nich je aj panoramatický výhľad do okolitého prostredia.

Architektom sa podarilo plne využiť sklon pozemku v prospech domu. Na betónový sokel zapustený do svahu položili jednoduchý drevený hranol. Jeho objem konzolovito vyčnieva nad pozemok, stojí na štyroch stĺpoch.

Pod domom je veľká terasa i bazén

Vďaka tomuto architektonickému riešeniu vznikol veľký exteriérový zastrešený priestor pod samotným domom. Nachádza sa tu príjemná terasa s posedením, kde je dostatok priestoru na detské hry v tieni. V rohu najbližšie k záhrade je vsadený bazén. Prepojenie s vonkajším svetom a prírodou funguje aj vďaka veľkým oknám, cez ktoré sú stromy priam na dotyk. V lete poskytujú príjemný tieň.

Nenápadný exteriér, žiarivý interiér

Architekti zámerne zvolili nenápadný exteriér, aby dom nepôsobil v prirodzenom prostredí rušivo. O interiéri to však neplatí. Ten je teplý, útulný a prežiarený žltou farbou. Steny, stropy, nábytok a posuvné dvere sú vyrobené z dyhovaných latiek, umývateľné steny sú zo žltých HPL dosiek a na podlahe je žlté marmoleum.

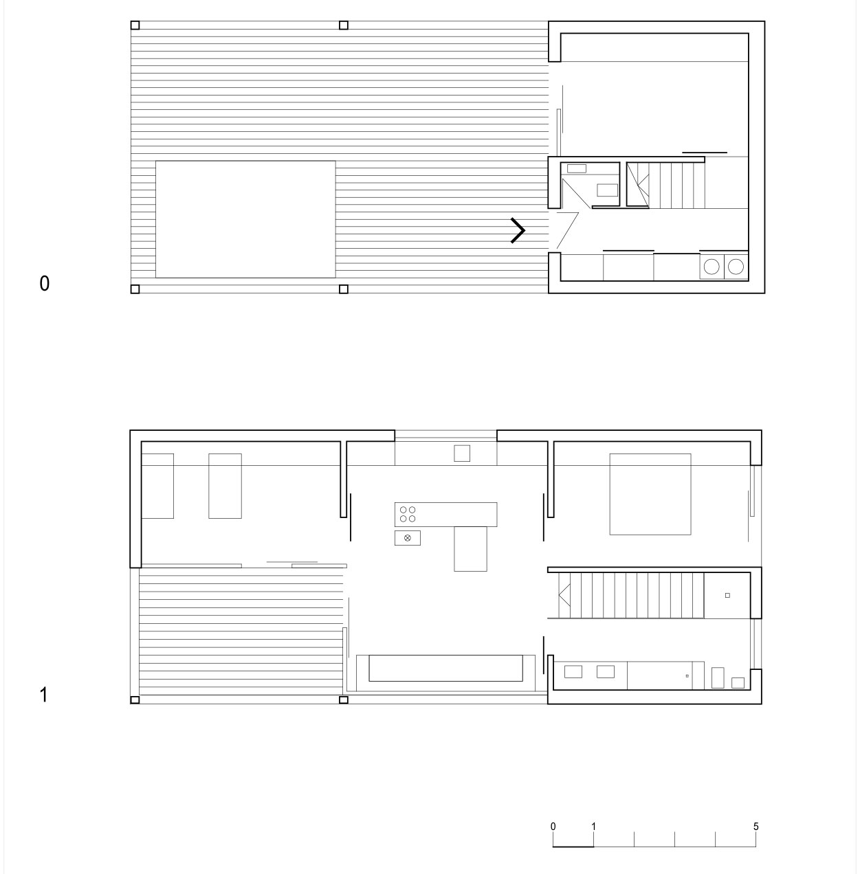
Ako je riešená dispozícia?

Do domu sa vstupuje cez hlavnú terasu. Vstupná hala a pracovňa sa nachádzajú v betónovom sokli. Na hornom poschodí je umiestnený centrálny obytný priestor s posedením, kuchyňou jedálenskou časťou a druhou menšou taktiež zastrešenou terasou. Z tohto hlavného priestoru sa vchádza do dvoch samostatných izieb a do kúpeľne. Pod vstupnou terasou sa nachádza pivnica.

Poriadok a prísne pravidlá

Súkromie a svetlo v interiéri si domáci určujú použitím výrazných žltých horizontálnych žalúzií, ktoré osviežujú inak na pohľad jednotvárny vzhľad domu. Zdá sa vám strohý a prísny? Táto prísna modulárnosť vychádza z výrobného formátu obkladových dosiek a navodzuje dojem poriadku a jasných pravidiel. K tomuto efektu sa pridáva aj jednoduchá geometria stavby. Pozdĺž celého domu vedú schody až do záhrady, kopírujú svahovitý terén. Príjemný priestor na rodinné bývanie.

Konštrukcia a energetická úspornosť

Pokiaľ ide o konštrukciu, drevostavba má steny a stropy z veľkoplošných sendvičových panelov a drevovláknitú izoláciu. Fasáda je vytvorená z cementotrieskových dosiek.

Strecha je riešená ako zelená, čo zabraňuje prehrievaniu domu. Naopak, v chladnom období má dom pasívne zisky vďaka veľkým oknám. Vykurovaný je elektrickými podlahovými fóliami a kozubovými kachľami.

Dom pri cintoríne v skratke
Architektonické štúdio: ARCHTEAM – Milan Rak, Alena Režná
Projekt: 2016
Realizácia: 2016 – 2017
Lokalita: Rašovice, okres Vyškov, ČR

Sabína Zavarská
Foto: Alena Režná