Ako sa dá bývať na 28 m2
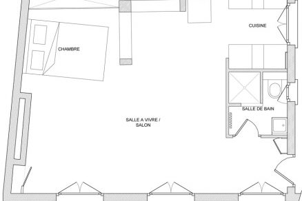
Projekt renovácie bytu umiestneného na piatom podlaží klasického apartmánového domu v centre Paríža bol príležitosťou zmeniť jednoizbový apartmán na dvojizbový.
Želaním majiteľky apartmánu bolo vytvoriť priestor vhodný pre dvoch a na pravidelné stretávanie sa pri večeri s priateľmi. Architekti sa vo svojom projekte rozhodli rozdeliť pôvodný priestor bez presnej definície funkčnosti na dennú a nočnú časť, ktorá zahŕňa priestor na spanie a decentnú obývaciu izbu. A samozrejme, nezabudli ani na dostatočne veľké úložné priestory.
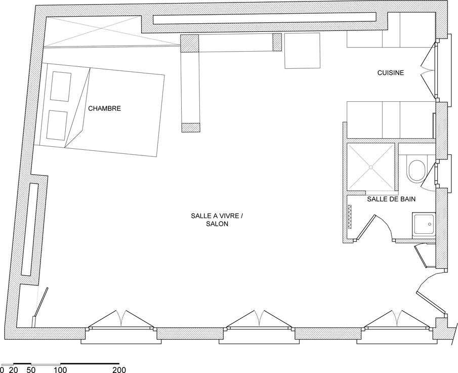
Spálňa je riešená ako hmota včlenená do základného priestoru, obložená dreveným obkladom, ktorý má vzbudzovať dojem dreveného prístrešku s ochrannou funkciou.
Prioritou bola funkčnosť
Koncept rozdelenia priestoru na dennú a nočnú zónu s rozlohou 28 m2 nie je rovnaký ako pri byte s rozlohou 35 m2. Takýto projekt si vyžaduje úplne iný prístup. Namiesto klasickej štruktúry kuchyňa, spálňa a priestor na odpočinok, ktoré sú väčšinou riešené formou samostatných blokov, sa architekti rozhodli priradiť prioritu kombinácii rozličných funkcií, pričom jednotlivé priestory sa zlúčili do jedného: priestor na oddych a spálňa sa ponechali, kúpeľňa, pivnica a komora sa pridali.
Obývačka je riešená ako otvorený priestor bez akýchkoľvek prekážok.
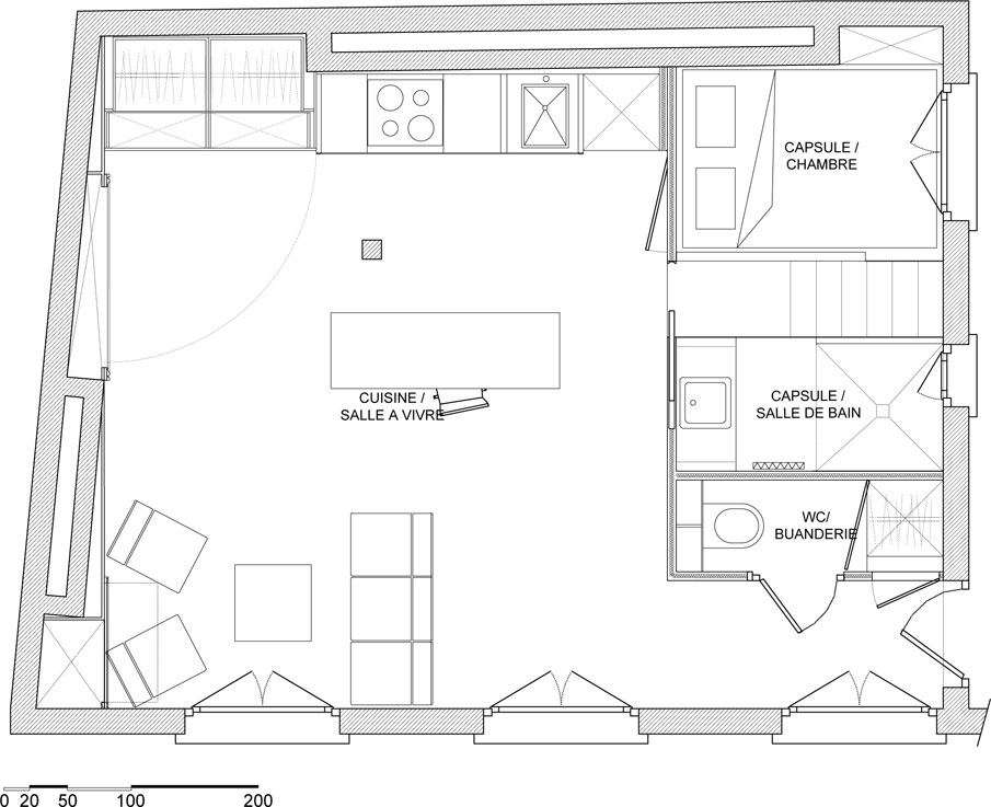
Súčasťou cennej zóny je pracovný priestor, a aj…
Drevený prístrešok
Novovytvorený objem sa riešil netradične a steny sa pokryli dreveným obkladom pripomínajúcim chatu na úbočí hôr alebo prístrešok nahrádzajúci ochrannú funkciu stromov: ústrednou myšlienkou bolo vniesť do vnútorného priestoru pocit prepojenia s prírodu a života pod holým, ale bezpečným nebom. Majiteľka čelila výzve premeniť svoj životný priestor s obrovským nadšením a návrh skombinovať kúpeľňu so spálňou do kompaktného celku, ktorý kopíruje hotelovú schému, prijala bez výhrad.
… priestor jedálne.
Domček pre bábiky
Nezávisle od limitujúcej pôdorysnej plochy architekti navrhli obývaciu izbu ako základný prázdny priestor bez akýchkoľvek prekážok. Funkčné zóny (priestor na občerstvenie, pracovný priestor, jedáleň, kuchyňa, šatník) z tohto priestoru vyňali a preniesli na steny tak, ako je to napríklad v domčeku pre bábiky, ktoré ukrývajú svoje tajomstvá. Viac ako tucet boxov, zarámovaných ako umelecké kúsky, by mohlo prispieť k rozptýleniu každodenných rituálov a byť skromným zdrojom potešenia.
Súčasťou spálne je netradične aj kúpeľňa.
Pôvodné pôdorysné riešenie
Nové pôdorysné riešenie
Architektonický návrh: Bardin Rémy & Jounet Guillaume
Typológia: Studio flat
Miesto realizácie: Paríž, Francúzsko
Podlahová plocha: 28 m2
Status: dokončené
Ukončenie realizácie: máj 2012
Sponzoring: Jung/Tollens/MLD
Interiérový dizajn: Helene Tamalet
TEXT: Bardin Rémy, bardinarchitecte, wad
FOTO: Jounet Guillaume



















