50 odtieňov béžovej v interiéri domu
Návrh interiéru rodinného domu pre mladú 5-člennú rodinu vychádza zo známej potreby praktického miesta na život malých detí a ich rozlietaných rodičov. Štúdio MUUR zlúčilo predstavu klienta a špecifiká pozemku, čím vznikol neštandardný dom s troma výškovými úrovňami priamo využívajúci záhradu ako súčasť obytného priestoru.
Exteriér ako súčasť interéru
Návrh interiéru rodinného domu len plynulo nadviazal na predchádzajúcu úspešnú spoluprácu, keďže architekti zo štúdia MUUR projektovali aj samotný rodinný dom. Výhodou pri návrhu a následnej realizácii interiéru teda boli predpripravené priestory, ktoré naplno využívajú kvality rodinného domu. Všetky obytné miestnosti majú zasklené fasády s východmi na kryté terasy a z nich priamo do exteriéru. Deti tak majú nerušený kontakt s prírodou a v letných mesiacoch sa zväčší plocha domu až trojnásobne.
50 odtieňov béžovej
Predstavou klienta bol nadčasový vizuálne neutrálny priestor s prírodnými motívmi bez módnych výstrelkov, ktoré by sa po krátkom čase opozerali. Po dohode s klientmi architekti vybrali zemitú farebnosť v rozsahu od bielej cez mnohé odtiene béžovej a hnedej až po čiernu. Prírodné ladenie je doplnené živými rastlinami, či už „presvitajúcimi“ z exteriéru, alebo drobnými zelenými interiérovými inštaláciami.
Prispôsobenie rodine
Najdôležitejším kritériom pri tvorbe interiéru bolo prispôsobenie priestorov malým deťom. Praktické materiály ako odolné vinylové podlahy, ľahko čistiteľné laminátové dosky či mäkké textílie boli základnými „stavebnými“ prvkami. Nábytok, ktorý rastie s deťmi – či už v detskej izbe, kúpeľni, alebo v jedálni – ocenia deti teraz, keď má všetko správnu veľkosť, aj rodičia, ked o pár rokov nebudú musieť investovať ďalšie peniaze do úprav izieb pre tínedžerov. Stačí posunúť skrinky, odmontovať zábrany na posteliach, transformovať stoličky, vymeniť tapety a dospievajúce deti sa budú stále cítiť ako vo svojom kráľovstve.
Stredná výšková úroveň domu vymedzuje dennú časť s kuchyňou, jedálňou a obývačkou. Schodiskové polramená ju smerom dolu spájajú so vstupnými priestormi a smerom hore s nočnou časťou.
Schodisko svojím tvarovaním nevytvára bariéru, naopak, prepája priestor do jedného celku.
Kuchyňa je pri malých deťoch dôležitá. Nachádza sa v strede dennej zóny a napriek nutnej striktnej funkčnosti ju použité materiály a dekory plne začleňujú do kompaktného interiéru.
Otvorený priestor v obývačke bude slúžiť i ako herňa pre deti, zároveň by mal byť príjemným miestom na stretávanie sa celej rodiny.
Kozubové teleso nenápadne komunikuje s televíziou. Takmer biele steny s hrubou štruktúrou zvýrazňujú jednoduché drevené povrchy.
Podlaha je ako topánky – musí byť kvalitná a trvácna, preto sme použili vinylovú podlahu, ktorá znesie aj hrubšie zaobchádzanie, je odolná voči vode, tlmí vibrácie a je dobre prehriateľná podlahovým vykurovaním.
Spálňa ako oáza pokoja – nerušivá farebnosť a veľa mäkkých textilných povrchov zaručujú, že ani ranné detské návštevy neprídu k úrazu.
Hlavná kúpeľňa pri rodičovskej spálni poskytuje plný komfort – toaleta, vaňa, priestranný sprchový kút, dve umývadlá a dostatok priestoru, aby sa dvaja ľudia pri rannej hygiene netlačili.
Vstupná hala na spodnom podlaží je dostatočne veľká aj na kočík pre dvojčatá. Za nenápadnými dverami ukrýva ešte šatník a toaletu.
Dievčenská izba podľahla súčasnej vášni malého dievčatka. Po odstránení dočasných posteľných zábran v podobe mačacích hlavičiek však bude izba ešte dlho slúžiť obom mladým slečnám.
Druhá detská izba je poňatá tiež neutrálne, hoci stále detsky, no tentoraz v chlapčenskom duchu. Opäť sa počítalo s neskorším odstránením zábran v podobe sietí a so zmenou tapety, aby sa izba mohla premeniť na tínedžerskú spálňu.
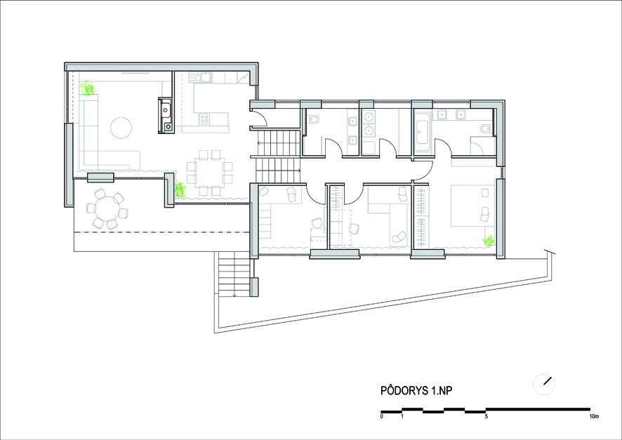
Pôdorys obytného podlažia rozdeleného schodiskovými polramenami na dva výškové aj funkčné stupne 
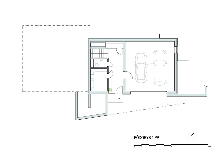
Pôdorys vstupného podlažia s garážou
Text a foto: MUUR





















