Rekonštrukcia vinohradníckeho domu
Tradície sú duchom miesta. Víno patrí k Vajnorom ako pestrofarebnosť k vajnorským maľbám a výšivkám, ale aj ako staré roľnícke domy, ktoré sú dnes súčasťou pamiatkovej zóny. Každý z nich ukrýva potenciál výnimočného satelitného mestského centra potvrdený obchodnými aktivitami. Jednému z nich – na Roľníckej ulici 114 – nedávno vdýchli nový život; premenil sa na Vinotéku Regius s prívlastkovými vajnorskými i ďalšími slovenskými vínami, a zároveň slúži ako administratívna budova developerskej spoločnosti.
Hľadanie súladuZrekonštruovaný dom je typickým objektom vajnorských vinohradníckych domov, ktoré v šošovkovitom námestí vytvárajú základ chránenej pamiatkovej zóny schválenej v roku 1992. Ide o urbanistickú pamiatkovú zónu, v ktorej nie je chránený každý objekt, ale objektová skladba. Ide teda o hlavné zástavbové línie, uličky, materiály a pod.

Variabilita priestorov
Objekt na Roľníckej ulici číslo 114 je typický trojtraktový dom s dvomi krídlami obytných priestorov; vjazd do dvora je v strede a fasáda so sedlovou strechou smeruje k námestiu. Ľavé krídlo budovy narastalo postupne – obytné priestory sa pristavovali podľa nárokov jednotlivých generácií na bývanie a hospodárenie (ustajnenia, chlievy apod.). Budovy boli v značne dezolátnom stave podmienenom aj vysokou hladinou spodnej vody.

V diskusiách s pamiatkarmi sme zvažovali metodológiu rekonštrukcie. Našou úlohou bolo, aby prestavba vytvorila potenciál na prácu a život. Zdôrazňovali sme variabilitu priestorov, ktoré by v budúcnosti umožnili viacero funkcií. Cieľom bola premena funkcií pri zachovaní kvality, aby bolo zjavné, že moderné dopĺňa históriu a zároveň podporuje novú funkciu.“
Moderné a módne
Z pôvodnej substancie sa zachovali dispozície, materiály a tvary. Nová hmota a konštrukcie sa od nej odlíšili materiálovo i moderným architektonickým výrazom. Zároveň sa však časovo odlišné prístupy nenásilne prelínajú a napĺňajú cieľ rekonštrukcie, že aj starý objekt skombinovaný s novými prístavbami je schopný vyhovieť predstavám o modernom životnom štýle.
„Avšak nie každá stará stavba je hodnotná,“ dodáva Ingrid Konrad, ktorá v Rakúsku rekonštruovala historickú architektúru aj objekty z povojnového obdobia. „Vždy na začiatku rekonštrukcie si kladieme otázku, či architektúra so cťou splnila svoj účel a zachovala si osobitý charakter. V tom prípade ju v plnej miere rešpektujeme a odmietame agresívny vstup do kultúrneho dedičstva. V tejto súvislosti rozdeľujem architektúru na módnu a modernú. K modernej, na svoju dobu účelnej a esteticky stvárnenej stavbe, patrí aj tento objekt; módne je niečo, čo vás po stránke estetickej onedlho prestane baviť, kde účel nekorešponduje s výrazom. Častým výsledkom je potom aj zbúranie takého objektu.“
![]() |
![]() |
![]() |
Tradícia materiálov
Technickým predpokladom prestavby bola dôsledná izolácia pivnice železobetónovými vaňami, ale aj opatrenia zamedzujúce vzlínavosti vody. Na ňu nadväzovala samotná prístavba, ktorá veľmi citlivo vstúpila do historického prostredia. Dvor sa prekryl ľahkými oceľovými konštrukciami, pričom hliníkovo-sklenená fasáda v strede dispozície vytvára vzdušný priestor okolo vinotéky, ale aj potenciálnu výstavnú sieň pre budúce expozície výtvarného umenia. Nechýba prepojenie s vedľajšou budovou na Roľníckej ulici 116, ktorá sa zrekonštruovala podobným spôsobom ako Vinotéka Regius, a už päť rokov v nej sídli spoločnosť IPEC Group. V pozdĺžnej osi dispozície architektka navrhla dva otvorené dvory – akési átria, ktoré sú prirodzenou oddychovou zónou. Z použitých materiálov prevažuje drevo, tehla, žula, sklo a meď.

Prestavba vinohradníckeho domu je ďalším kamienkom do mozaiky v dotvorení pôvodnej charizmy Vajnor. A hoci aj sám investor si uvedomuje, že celý proces je ešte len na začiatku, v obci sa vypustil „pozitívny vírus“, ktorý môže ľudí v dobrom slova zmysle nakaziť – inšpirovať. Vinotéka Regius už denne slúži svojmu účelu, čím zároveň prispieva ku kultivácii prostredia, nachádza si stálych hosťov a priťahuje náhodných návštevníkov.
„Pre celé Vajnory by bolo veľmi výhodné, keby sa proti tomuto druhu vírusu nenašla obranná vakcína,“ usmieva sa Ivan Čarnogurský. „My sa zatiaľ budeme snažiť v našej práci pokračovať.“
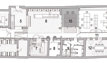
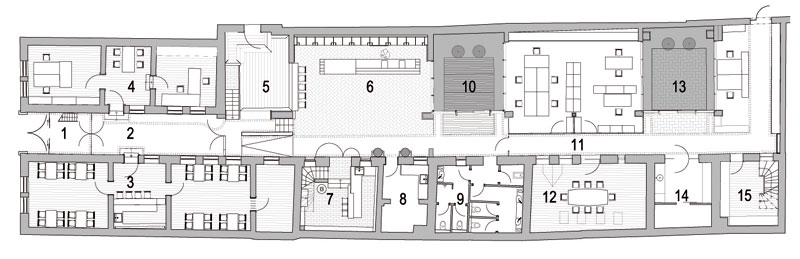
Pôdorys 1. NP
1 – zádverie, 2 – chodba, 3 – malý vínny bar, 4 – kancelárie, 5 – javisko, 6 – dvor/veľký vínny bar, 7 – bar v pivnici, 8 – príprava, 9 – sociálne zariadenia, 10 – átrium, 11 – kancelárie, 12 – zasadačka, 13 – átrium, 14 – kuchynka, 15 – archív
Pozdĺžny rezopohľad
Prestavba vinohradníckeho domu
Miesto: Roľnícka 114, Bratislava-Vajnory
Investor: TITOL, s. r. o.
Autor: Arch. Dipl. Ing. Ingrid Konrad
Spolupráca – interiéry: Ing. arch. Soňa Tothová
Spolupráca – stavebná časť: Ing. arch. Milan Škorupa,
Ing. arch. Daniela Majerčíková, Ing. arch. Ľubomír Nosko, PhD.
Úžitková plocha: 907,73 m2
Zastavaná plocha: 642 m2
Celková plocha územia: 690 m2
Začiatok výstavby: 2007
Ukončenie výstavby: 10/2009
Realizácia – stavebná časť:
KREŽ,s. r. o., Spišská Stará Ves
Agito,s. r. o., Bratislava-Vajnory
Realizácia – interiér: Castill, s. r. o., Prievidza TON-SLOVENSKO, spol. s r. o. Cortec, s. r. o, Bratislava
Štefan Polc – Zvolen
Umelecký kováč: Mgr. art. Igor Kaplan, Vajnory
Elektroinštalácia: Mivstav, s. r. o., Dubnica nad Váhom
Záhradná architektúra: Ing. Juraj Zvědelík, Trenčín
Dodávateľ hliníkových konštrukcií: ATS, s. r. o., Nitra
Ľudo Petránsky
Foto: Dano Veselský
Článok bol uverejnený v časopise ASB.
















