image 70462 25 v1
Galéria(9)

Poľnohospodárska univerzita v Nitre – ikona architektúry 60. rokov

Šesťdesiate roky 20. storočia priniesli viacero veľmi dobrých architektonických diel. Medzi ne patrí aj Slovenská poľnohospodárska univerzita v Nitre. Postupujúca liberalizácia spoločnosti sa odrazila v urbanizme, no najmä v architektúre. Pamätník SNP v Banskej Bystrici, Krematórium v Bratislave, žilinská plaváreň, hotely vo Vysokých Tatrách, Kosodrevina na Chopku, niektoré zotavovne ROH a liečebné ústavy sú dielami, ktoré vzbudzovali obdiv a pozornosť. Hľadanie ikonického diela 60. rokov bolo preto zložité.

02 MG 2217
01 Nitra
01 MG 2196
03 MG 2231
04 Dedecek
05 Minovsky
03 Nitra
02 Nitra

Nakoniec sme sa rozhodli pre areál pôvodne Vysokej školy poľnohospodárskej (VŠP), dnes Slovenskej poľnohospodárskej univerzity v Ni­tre (SPU), projektovaný v rokoch 1956 – 1960, ktorého autormi sú Vladimír Dedeček a Rudolf Miňovský. Ateliér Krajského projektového ústavu, ktorý R. Miňovský viedol a ktorý sa venoval hlavne školským stavbám, sa prirodzene zúčastnil vnútropodnikovej súťaže na výber optimálnej lokality pre budúci areál VŠP (dnes SPU). Túto súťaž vyhral, avšak trvalo niekoľko rokov, kým sa myšlienka ich urbanistického konceptu presadila. Lokalita na bývalom letisku sa ukázala ako správna, a to najmä preto, že umožňovala nielen veľkorysé urbanistické riešenie, ale ponúkala aj možnosti budúceho rozvoja.

Pavilónový systém

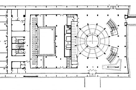
Autori sa rozhodli pre pavilónový systém zástavby, s ktorým už mali veľké skúsenosti. Dosiahli prehľadnú a dobre diferencovanú prevádzku prepojenú s exteriérom, ponúkajúcu ľahkú možnosť etapovej výstavby. Kompozičnú os vedúcu z centra mesta uzatvára Aula maxima šošovkovitého tvaru. Po jej stranách sú výšková budova rektorátu a teoretických katedier a 7-podlažné pavilóny výučby. Podobne ako solitér je na rovnakých dispozičných princípoch riešený aj chemický pavilón. Jadrom celého areálu je aula kruhového tvaru s priemerom 36 m a s kapacitou 600 miest. Celá je postavená na stĺpoch prízemia, kde je aj príslušenstvo. Zastrešenie tvorí monolitická klenba debnená pomocou prefabrikovaných prvkov. Kruhový veniec prenáša zaťaženie klenby do pilierov v tvare V, ktoré tvoria spodný plášť. Aula je priamo osvetlená súvislým pásom okien pod vencom kopuly.

Diferenciácia priestorov podľa ich veľkostí a účelu je uplatnená v sedempodlažných pavilónoch – na fotografii je detail rastra ich fasády s balkónmi.

Posluchárne so stupňovitou podlahou

Zaujímavé je riešenie posluchární pri jednotlivých pavilónoch. Sú situované po stranách spojovacej chodby, majú stupňovitú podlahu a kapacitu 60, 120 a 250 poslucháčov. Chýbajú im však rozptylové priestory a problémom bola aj poddimenzovaná hygienická vybavenosť. Jednotlivé pavilóny sú riešené ako dvojtraktový vákuovaný skelet s priečnym modulom 2 × 720 cm a s pozdĺžnym 600 cm, ktorý je delený na päť okenných modulov po 120 cm. Fasády boli obložené sklenenou mozaikou v kombinácii s keramickými obkladačkami. Okná sú kovové a z vonkajšej strany obložené hliníkom. Areál bol pôvodne projektovaný na kapacitu 1 200 študentov. Súdobá kritika mu vytýkala najmä lacné interiéry a viaceré konštrukčné a prevádzkové nedostatky. Vo svojej dekáde bol však obohatením slovenskej architektúry. Nová moderná dominanta prispela k zmene vnímania obrazu Nitry – ako mesta nielen s historickou, ale aj modernou architektúrou. Areál Slovenskej poľnohospodárskej univerzity sa tohto roku stal národnou kultúrnou pamiatkou.

Rez budovou auly a rektorátu

Autori stavby

Vladimír Dedeček (1929)
Pochádza z Martina. Architektúru vyštudoval na STU v Bratislave v roku 1953. Do praxe vstúpil v bratislavskom Stavoprojekte, kde v ateliéri pod vedením R. Miňovského vyprojektoval viaceré stredné školy – v Radvani (1955), v Cabaji (1956), vo Veľkých Úľanoch (1956), v Hrabušiciach (1955) –, ako aj stredné poľnohospodárske školy a pavilónové školy v Bratislave. Po smrti R. Miňovského vyprojektoval rad spoločensky významných stavieb, napr. komplex SNG, Najvyšší súd, Štátny archív, areál Incheby, objekty Prírodovedeckej fakulty UK a átriové internáty v Mlynskej doline, budovu strojníckej školy v Nitre, vysokoškolský areál vo Zvolene, športovú halu v Ostrave a ďalšie. Boli to všetko stavby, ktoré vyvolali ostrú kritiku nielen v odbornej tlači, ale i medzi verejnosťou. Súčasná mladá generácia vyzdvihuje na nich najmä to, že sú to silné architektonické gestá (SNG) – bez ohľadu na ich prevádzkové a konštrukčné nedostatky. Nesporne najúspešnejším dielom sa stala dnešná Poľnohospodárska univerzita v Nitre (spoločné dielo s R. Miňovským).

Rudolf Miňovský (1921 – 1960)
Pochádza z českého Duchcova. Mal za sebou viacročnú staviteľskú prax, keď začal študovať architektúru na ČVUT v Prahe. V roku 1948 prišiel s ďalšími mladými českými architektmi do Bratislavy. Pod jeho vedením tu vznikol ateliér školských stavieb (V. Dedeček, M. Kančev, J. Švaniga). Oproti dovtedy realizovaným koncepciám tradičných typov (napr. škola na Košickej – M. Kusý – či škola na Vazovovej) presadil nový typ ľahkých pavilónových škôl. Jeho tvorbu charakterizuje odvaha experimentovať, a to v dispozičnom, konštrukčnom i materiálovom riešení. Dokumentuje to príklad tzv. átriovej školy na Thälmannovej ulici v Bratislave či 26-triednej školy v Trnave-Tulipáne, kde ako prvý použil tzv. zdvihnuté stropy – systém lift-slab. Podieľal sa na vytvorení projektov typových škôl, ktorých bolo na Slovensku realizovaných približne 50. K známym a úspešným projektom patrí areál ZŠ a škôlky na Mikovínyho ulici v Bratislave, bývalá Pedagogická fakulta v Trnave a najmä areál dnešnej Poľnohospodárskej univerzity v Nitre, ktorý nesie všetky základné znaky jeho architektonickej filozofie. Bol pozoruhodnou architektonickou osobnosťou, žiaľ, smrť ho zastihla príliš skoro. Zomrel ako 39-ročný.

text: prof. štefan šlachta                                      

foto: Dano Veselský

Článok bol zverejnený v časopise ASB.