Pavilón Umeleckej besedy slovenskej v Bratislave
Rok 1918 priniesol na Slovensko mnoho českých intelektuálov. Prišli, aby pomohli samostatnému Slovensku postaviť sa na nohy. Boli to však najmä architekti, ktorí prišli aby projektovali čí vychovávali slovenskú technickú inteligenciu. Vojtech Šebor, Jindrich Merganc, Klement Šilinger, Jozef Marek, František Faulhammer a ďalší, vrátil sa Dušan Jurkovič. Práve architekti tvorili najsilnejší odbor Umeleckej besedy slovenskej (UBS) pri jej založení v roku 1921. Medzi nimi boli aj mladí architekti Alojz Balán a Juraj Grossmann.
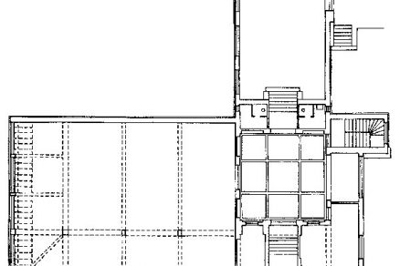
Pavilón UBS spolu so záhradou sa potom realizoval od augusta 1925 do augusta 1926. Stal sa medzníkovým bodom vo vývoji slovenskej architektúry na jej ceste k funkcionalizmu. Autori YMCY, domov vojenských gážistov na Anenskej ulici, tzv. Poštárskych domov na Legionárskej, či obytného bloku na Prayovej ulici tu prezentovali nový názor. Ich architektúra jasne rešpektuje jednotlivé funkcie – výstavný priestor pre maliarske diela, sálu pre sochárskej diela a spolkové miestnosti. Konštrukcia je železobetónová rámová o rozpore 9 m. Výstavné sály sú veľmi dobré osvetlené prirodzeným svetlom. Architektúra je oslobodená od akéhokoľvek dekóru, upúta však farebnou kombináciou bielej omietky a červeného režného muriva. Pozornosť môže zaujať tiež výškové usporiadanie a previazanosť hmôt.
Dnes, po osemdesiatich rokoch sa urobili prvé rekonštrukčné práce hlavného výstavného priestoru. Zvyšok budovy však ponúka dosť smutný pohľad, neodrážajúc jeho kultúrnohistorický význam. Budova, ktorá roky patrila výtvarníkom a architektom, bola ministerským rozhodnutím pridelená Slovenskej výtvarnej únii, ktorá časť spolkových priestorov prenajala. Budova dnes stratila pre kultúrnu obec svoju voľakedajšiu príťažlivosť, nestratila však svoje kultúrne a architektonické hodnoty, ktoré chrániť by malo byť aj dnes našou povinnosťou.
Alojz Balán
Štúdiá architektúry absolvoval v Prahe na Českom vysokom učení technickom roku 1914. Po skončení I. svetovej vojny prišiel do Bratislavy, kde pôsobil najprv na ministerstve verejných prác, potom ako profesor na Vyššej škole stavebnej (1922 — 1927). Od roku 1924 spolupracoval v samostatnom ateliéri s architektom Jurajom Grossmannom. Do dejín hnutia na Slovensku vystúpil súťažným projektom Umeleckej besedy slovenskej (1924), kde po prvý raz uplatnil nový výtvarný názor. K významným bratislavským projektom patrí aj vila dr. Jaroňa (1929), Škola umeleckých remesiel (1928) a najmä budova Okresnej sociálnej poisťovne (dnes poliklinika na Bezručovej ul.) so zaujímavou viacpodlažnou vnútornou halou (1936). Tvorbu Balána s Grossmannom charakterizuje najmä prelínanie sa prísne racionálneho s výtvarným. Po roku 1939 sa vrátil do rodného mesta, kde pracoval ako architekt, od roku 1948 pôsobil na oddelení územného plánovania Krajského národného výboru v Zlíne.
Prof. Štefan Šlachta
Foto: Petra Bošanská
													




						
						
						
						


