Obytná skupina Nová doba v Bratislave
Galéria(6)

Obytná skupina Nová doba v Bratislave

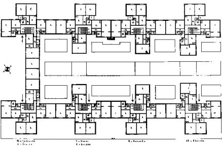
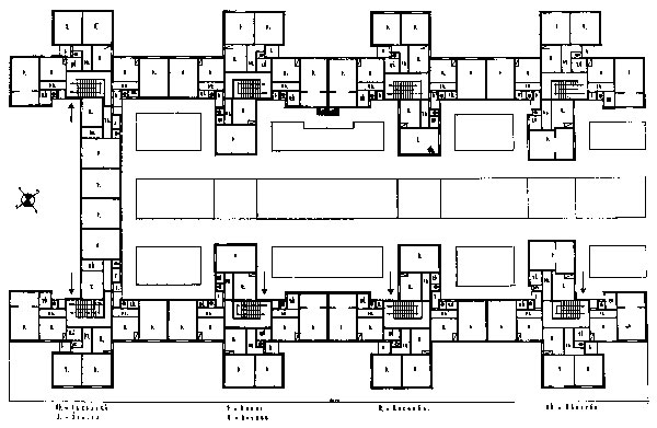
Hospodárska kríza v tridsiatych rokoch minulého storočia priniesla do československej architektúry tému tzv. najmenšieho bytu. Na slovenskej strane patrili k najdôležitejším príspevkom do tejto diskusie práce architektov Fridricha Weinwurma a Imricha Vécseia – pavlačové obytné bloky UNITAS na Šancovej ulici a obytná skupina Nová doba na Vajnorskej ulici v Bratislave.

Fridrich Weinwurm v článku Človek, jeho byt a jeho kultúrne potreby (Kronika Nová doba, 1936, s. 6) napísal: „Najdôležitejší je nielen hoci aj imponujúci osud jednotlivca, ale osud spoločenstva.“ Potreba zmiernenia bytovej núdze v Bratislave začiatkom tridsiatych rokov minulého storočia viedla k projektu a stavbe obytných blokov družstva súkromných zamestnancov a robotníkov. Sú to tri bloky, z ktorých prvý vznikol v roku 1932.

Pôvodným zámerom bolo radové usporiadanie jednotlivých blokov, ktoré autori, na požiadavku mesta zmenili na polouzavreté bloky. Ak pri UNITASE hospodárnosť riešenia spočívala v pavlačovom usporiadaní bytových jednotiek, v Novej dobe sa ekonomickosť stavby dosiahla unifikáciou prvkov oceľovej konštrukcie stavby, ktorú zmontovali za tri mesiace. Bolo to prvý raz v bývalom Československu, keď sa v takom rozsahu použila pri bytovej výstavbe oceľová konštrukcia. Blížiaca sa vojna však priniesla zvýšenie cien ocele a to spôsobilo, že bloky 2 a 3, ktoré sa dokončovali pred vojnou, majú už tradičnú železobetónovú kostru. Aj keď sa jednotlivé bloky Novej doby líšia v rozmeroch – napríklad v šírkach dvora, architektúra aj skladba jednotlivých bytov sú rovnaké. Autori vytvorili päť rôznych typov: jednoizbový, jednoizbový s kabinetom, dva druhy dvojizbových bytov a garsónku. Byty mali ústredné kúrenie, teplú vodu a ústrednú práčovňu so sušiarňou. Nová doba sa stala najlepšou prezentáciou snáh o novú kultúru bývania, zmeny v architektonickom myslení, v presune záujmu architektúry od jednotlivca ku kolektívu.

Kvalita bývania v Novej dobe sa vysoko hodnotí aj v súčasnosti, po sedemdesiatich rokoch od jej vzniku. Svedectvom je napríklad sociálna štruktúra jej obyvateľov, medzi ktorými je dnes veľa starších rodín lekárov, právnikov a pod.

Pôdorys   Oceľový skelet súboru vo výstavbe

Pri návšteve viedenských kolegov v máji 2005 sa prof. Leiner vyjadril, že také silné a pôsobivé puristické dielo ešte nevidel. Architektonický výraz Novej doby bol reflexiou architektonickej filozofie F. Weinwurma, jeho chápania vzťahu moderného človeka a architektúry. Odpovedá tu na otázku významu výtvarnej stránky, na to, aká architektúra je podľa neho potrebná, aby vytvárala vhodné prostredie na duševný i fyzický rozvoj človeka. Puristickú architektúru považuje za architektúru pravdy.

Dnes, v zmenených podmienkach prostredia, najmä dopravného zaťaženia Bajkalskej a Vajnorskej ulice, sú nádvoria Novej doby stále oázou pokoja a dávajú obyvateľom možnosť relaxu. Nová doba je významnou kultúrnou pamiatkou slovenskej avantgardnej architektúry.

Fridrich Weinwurm – sa narodil 30. augusta 1885 v Borskom Sv. Mikuláši. Študoval v Nemecku, kde potom do prvej svetovej vojny aj pracoval. Po návrate z vojny pôsobil spolu s Ignácom Vécseiom v Bratislave. Patril k priekopníkom presadzujúcim nové architektonické myšlienky. Svojou čistou, puristickou architektúrou sa najviac priblížil k filozofii loosovskej „novej vecnosti“. Administratívna budova žilinskej továrne na portlandský cement z roku 1924 (ktorú navrhol v spolupráci s A. Wiesnerom, rodákom z Malaciek, pôsobiacim v Brne) bola publikovaná vo viacerých zahraničných časopisoch. Viaceré jeho diela, napríklad palác Fénix, vila Lívia v Piešťanoch, Sanatórium Dr. Holzmanna v Hornom Smokovci, vila Dr. Tománka v Karlovej Vsi a mnohé ďalšie tvoria klenotnicu slovenskej avantgardnej architektúry. F. Weinwurm sa ako ľavicový architekt výrazne politicky angažoval. Bol napríklad predsedom Spoločnosti pre hospodárske a kultúrne styky s novým Ruskom. Bol blízkym priateľom Dr. Husáka. Za Slovenského štátu bol väznený v Ilave. Zastrelili ho pri pokuse o ilegálny prechod hraníc s Maďarskom na jar v roku 1942, keď sa chcel dostať do Ruska. Jeho dielo bolo zmapované a objavené až v osemdesiatych rokoch minulého storočia.

prof. Štefan Šlachta
Foto: archív redakcie a Petra Bošanská