Obchodný a obytný dom v Bratislave
Luxorka – kaviareň opradená legendami, samoobslužná reštaurácia v prízemí, niekdajšie sídlo SFVU, výborné byty a zanedbaná pasáž. Známa budova v centre Bratislavy, ktorá za 70 rokov svojej existencie prešla viacerými etapami „zmeny tváre“. Je to významné dielo predstaviteľa funkcionalizmu – brnianskeho architekta Jana Víška, ktorý je tiež autorom prvého moderného obchodného domu v Bratislave na Štefánikovej ulici.
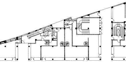
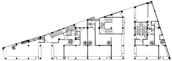
Budova Luxor bola postavená v roku 1939, keď projekt po užšej súťaži v roku 1937 vypracoval brniansky architekt Jan Víšek. Stavebníkom bola poisťovňa UNION, ktorá mala na 2. poschodí svoje kancelárske priestory. Autor sa veľmi dobre vysporiadal so zložitou parcelou v tvare lichobežníka. Hĺbka parcely bola od 4 do 20 m a dĺžka je 56 m. Hmotovo nadväzuje na susediacu Mestskú sporiteľňu Juraja Tvarožka i Legiobanku, ktorá v tom čase už bola nadstavená. Budova má dva suterény a sedem nadzemných podlaží, z ktorých posledné je uskočené. V minulých rokoch bolo ešte nadstavené 8. podlažie.
Ošarpanú a opadanú omietku nahradili v období socializmu plechovým obkladom Hunter-Douglas a na chvíľu z nej spravili elegantnú bielu budovu.
Neskorší návrat k omietke som privítal s uľahčením – budova opäť získala svoj pôvodný charakter. Budova Luxorky má puristický „loosovský“ charakter typický pre Víška a prefiltrovaný jeho videním. Cez túto budovu priniesol architekt Jan Víšek do Bratislavy kvalitu brnianskej medzivojnovej funkcionalistickej školy.

Pre jeho tvorbu bol charakteristický jednoduchý tvar, konštruktivisticko-funkcionalistické ponímanie, teoreticky podporované Karlom Teigem a Oldřichom Starým. K jeho najznámejším prácam patria rodinné domy pre výstavu Nový dům v Brne (1927), Husov zbor v Brne (1926 – 1927), návrh na Palác Moravskej banky (1928), bratislavský obchodný dom VIP závodov na Štefánikovej ulici (1929), obchodný a obytný dom na Janskej ulici v Brne (1930), vynikajúce Šilhanovo sanatórium (1933) a ďalšie, najmä obytné a rodinné domy.
Dlhé roky sa zaoberal projektom brnianskeho divadla. Jeho víťazný návrh zo súťaže v roku 1937 sa pre II. svetovú vojnu nerealizoval. Hoci neskôr pod tlakom socialistického realizmu ustúpil zo svojich požiadaviek a návrh realizovali iní autori, princípy jeho návrhu ostali zachované. Bratislavský projekt Luxorky patrí k vrcholom jeho predvojnovej tvorby.
Pôdorys 1. NP
prof. Štefan Šlachta
Foto: Dano Veselský
Článok bol uverejnený v časopise ASB.








