Konverzie XXL
Premena funkcie je napínavou aj náročnou úlohou. Architekt sa musí vyrovnať s odlišnou dispozíciou či mierkou a správne prepojiť nové s pôvodným.
Na nasledujúcich riadkoch sa predstavia tri veľké hospodárske stavby zobytnené na tri spôsoby.
Church Hill Barn
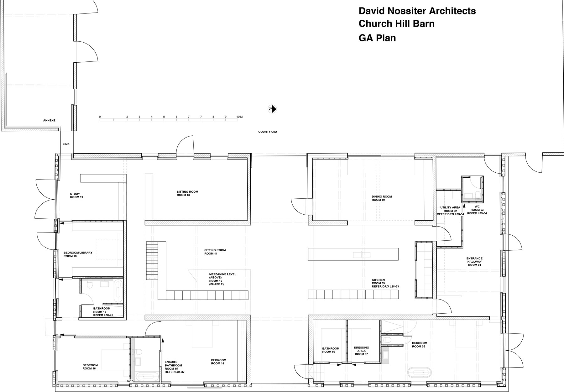
Rozsiahlu konverziu objektu s veľkosťou 550 m2 zrealizoval v anglickom Suffolku architekt David Nossiter. Unikátna stodola s krížovým pôdorysným rozvrhom vytvorená priekopníkom v experimentálnych farmárskych metódach dlhodobo pustla po zničujúcom požiari. Jej potenciál si všimol solventný investor, ktorý zariskoval, predal svoj neďaleký pozemok a z karavanu dozoroval prestavbu svojho nového veľkosídla.
V oboch prípadoch prerobenej stodoly Church Hill Barn aj bývalej stajne Stable Acre bol výber architektov prirodzenou voľbou, keďže s nimi klienti v minulosti úspešne spolupracovali. Táto skutočnosť je dobrým predpokladom na jedinečný a vyvážený výsledok s obojstrannou spokojnosťou.
Už na začiatku sa klient s architektom zhodli na koncepte otvoreného presvetleného priestoru s exponovanou konštrukciou krovu a jasným odlíšením nových vkladaných prvkov. Najnáročnejšou výzvou bola oprava strechy. Pre obytný komfort si vyžadovala nové celoplošné zateplenie z vonkajšej strany a tiež náhradu materiálu zo zdrojov na pozemku. Celá prestavba sa konala pod prísnym dohľadom pamiatkovej ochrany.
Veľká strecha zastrešujúca skupinu rôznych farmárskych aktivít dnes združuje skupinu rôznych priestorov. Dominantný centrálny kríž s výškou až 8 metrov ostáva pre svoju impozantnú, priam sakrálnu mierku otvorenou štruktúrou, ktorú možno absolútne flexibilne využívať. Novým vkladom je samostatne stojaci blok kuchyne z brezovej preglejky, čo podporuje jeho želateľný charakter nábytku. Dostatok svetla zabezpečuje priečne presvetlenie veľkorysým zasklením vyrobeným na mieru, ktoré masu domu priaznivo odľahčuje a umožňuje previdieť dom naskrz. Veľkolepá scénografia krovu doňho prepúšťa horné svetlo cez dva svetlíky o veľkosti 3 m2. Jedáleň s obývačkou a pracovňa sú čiastočne oddelenými priestormi a nočná zóna viacerých spální a kúpeľní je vyriešená formou samostatných uzavretých jednotiek.
Novú funkciu bývalej stodoly naznačuje všadeprítomný jednotný povrch lešteného betónu na podlahe s integrovaným vykurovaním, napojeným na kotol na biomasu. Zmysluplnému vykurovaniu veľkého objemu pomáha systém rekuperácie a dodatočné zateplenie stien pomocou ovčej vlny a nového smrekového obloženia.
Dva roky trvajúca prestavba je vo výsledku novým luxusným príbytkom, ktorý si s rešpektom zachováva mnoho z pôvodného farmárskeho charakteru a zároveň ponúka veľkorysé atypické bývanie v obklopení vidieckej krajiny.
Vo výkresoch Davida Nossitera sa naproti kuchyni pôvodne nachádzala galéria v úrovni poschodia, no nikdy nebola zrealizovaná. Aj nočná zóna sa oproti projektu zjednodušuje a v medziach intimity čo možno najviac otvára. (David Nossiter Architects, www.davidnossiter.com)
Stable acre
Neďaleko Londýna a tiež predchádzajúcej konverzie, v riedko osídlenej časti Norfolku stojí od roku 2010 na prvý pohľad nenápadný, no pôsobivý víkendový dom. Majetný galerista hľadal útočisko v tichom prostredí, kde by mohol obklopený prírodou osamote relaxovať. Spolu s britským architektom Davidom Kohnom natrafili na niekdajšiu farmu s oslovujúcou atmosférou.
Víkendové útočisko Stable Acre je jednoznačne rozčlenené na dennú a nočnú zónu. Pri troch spálňach (aj s rezervou pre hostí) sa však uskromňuje na jedinú kúpeľňu, ktorej dominuje betónová vaňa.
V 37-metrov dlhej stope pôvodnej stajne z 19. storočia malo vyrásť nové sídlo, ktoré integruje tri zostatkové originálne múry, zachováva poľnohospodársky vzhľad a sedlové zastrešenie. Klientove požiadavky na jednoduchú pokojnú architektúru s dôrazom na výhľady do krajiny boli inšpirované prácou Johna Pawsona. Kohnov návrh charakterizuje prostý obdĺžnikový pôdorys na ploche 250 m2 s lineárnym radením miestností. Každá jedna izba je pedantne orientovaná na hlavnú južnú fasádu, za ktorou sa rozprestiera pastvina, ktorá tiež dostala patričnú opateru s novou výsadbou.
Keď investor objavil odľahlú farmu, stál na okraji pastviny novší rodinný dom. Miestne úrady súhlasili s jeho odstránením a novou výstavbou za dodržania prísnych podmienok. Cieľom bolo zvýšiť architektonickú kvalitu s patričným rešpektom k lokálnemu dedičstvu. Kohnova realizácia nakoniec získala v roku 2012 ocenenie RIBA Regional Award. (David Kohn Architects, www.davidkohn.co.uk)
K trom existujúcim tehelným múrom Kohn pridal vstupný blok a konštrukciu s kozubom. Práve tie vymedzili v dome najpodstatnejšiu časť, 12-metrovú obývaciu izbu s celostenovým zasklením. Vložený nadokenný nosník umožnil kontinuálny výhľad do prírody. Jeho masívna oceľová konštrukcia je skrytá do stropu a tak je dojem z centrálneho priestoru na celú výšku domu ešte podmanivejší. V teplých mesiacoch sa všetky veľkoplošné zasklenia pootvárajú do exteriéru, čo ešte viac podčiarkuje pavilónový charakter domu. Hlavný vstup v strede dispozície je charakteristický drevenými vrátami na celý rozmer foyer, čo je výraznou ponáškou na pôvodnú funkciu objektu.
Južná orientácia a rozsiahle zasklenie zabezpečujú v chladnom období veľké solárne zisky, ako aj nižšiu potrebu umelého osvetlenia priestoru. V lete vďaka neveľkej hĺbke dobre funguje prirodzené chladenie domu pomocou priečneho prevetrávania.
Minimalistický až asketický interiér s drevenými povrchmi a bielenou tehlou dopĺňa betónová podlaha plynulo prechádzajúca až do exteriéru. Paradoxne a možno práve vedome kontrastne sa v obydlí galeristu nenachádza žiaden obraz či socha. V takejto situácii vyniká jeho unikátna zbierka mobiliáru z polovice 20. storočia s kúskami, ktoré Le Corbusier navrhoval pre Chandigarh. Kombinované sú s integrovanými pozostatkami z pôvodnej stajne.
Osobitosť miesta, vzťah domu a prírody, práca so svetlom a zdržanlivá architektúra s delikátnym detailom sa prepojili do kvalitného harmonického výsledku. Pokušeniu vytvárať extravagantnosti v rámci voľného rozpočtu sa podarilo úspešne odolať.
House of Rolf
Odlišnou a najmenšou zo spomínaných konverzií je minuloročná realizácia v centre holandského Utrechtu. Architekt a dizajnér Rolf Bruggink (Studio Rolf.fr) si na vlastné bývanie spojené s ateliérom vyhliadol viac ako storočnú budovu kočiarne na okraji panského pozemku. V jej tesnej blízkosti stál dočasný kancelársky prístavok pripravený na demoláciu. Z tohto susedstva sa nečakane vykľul originálny nápad – vstavať ho do kočiarne formou zrecyklovania všetkých jeho použiteľných materiálov a povrchov.
Vo vzdušnom interiéri Rolfovho nového príbytku sa vynímajú viaceré umelecké diela, no najmä nábytok s recyklovaným dizajnom. Koberec vytvorený z množstva prikrývok, stoličku z CD obalov či skrinku z okenných rámov dopĺňa vlastnými dizajnérskymi kúskami podobného razenia.
Bruggink navrhol priestorovú koncepciu a na samotnú výstavbu si prizval Nieka Wagemansa (Fabriek van Niek), ktorého špecializáciou je tvorenie nového s využitím kvalít pôvodných substancií. Namiesto technických výkresov sa riadili pracovným modelom a postupy alebo detaily vymýšľali in situ.
V úvode realizácie bolo dôležitou logistickou úlohou uskladnenie rozobratých prvkov z veľkého kancelárskeho prístreška. Tomuto účelu musela okrem záhrady nakoniec poslúžiť aj samotná kočiareň. (Studio Rolf.fr, www.rolf.fr, Fabriek van Niek, www.fabriekvanniek.nl)
Kočiareň ako obalová škrupina zostáva nedotknutá s jedinou výnimkou. Jestvujúcim vysokým oknám a strešným svetlíkom pomáha preslniť interiér nové rozmerné zasklenie v štíte domu. 15 m dlhý, 7 m široký a 5,5 m vysoký priestor je rozdelený do troch objemovo totožných sekcií. V jeho vstupnej časti sa za pôvodnými veľkými vrátami nachádza nezastavaný priestor s veľkolepými proporciami, ktorý slúži ako platforma na rôznorodé využitie.
Do strednej tretiny je vstavaná nezávislá dvojpodlažná štruktúra zo zrecyklovaných materiálov, deliaca zobytnenú kočiareň na funkčné zóny. Na prízemí obsahuje netradičnú kuchyňu a zo zadnej strany prístupnú toaletu a technické priestory.
Vložený novotvar skonštruovaný z pôvodných nosníkov, väzníc či dokonca radiátorov vedie dvoma schodiskami na poschodie. Malý koridor sprístupňuje intímnu spálňu, sprchový box aj otvorenú pracovňu, kde so stolom priamo susedí zapustená vaňa s výhľadom do celého príbytku.
Koncovú sekciu domu tvorí obývačka s veľkoplošným zasklením a pokračovanie novej štruktúry na poschodí v podobe šatníka a ďalšej pracovnej plochy.
Snahu znovu využiť všetky použiteľné materiály z pôvodného prístavku sa podarilo dôsledne naplniť. Možnosti transformácie takýchto pozostatkov boli pre architekta kreatívnou výzvou. Rolfov dizajn jedálenského stola, ktorý je po vrstvách vyskladaný z použitých materiálov, najlepšie vystihuje výslednú kvalitu celého domu. Tá spočíva v bohatom spektre a rôznorodosti využitia prvkov, zvyčajne označovaných za odpad.
Z celej novej štruktúry je to práve charakter kuchyne, čo najviac pripomína bývalý susedný objekt. Napriek svojej uzavretosti zostáva svetlou miestnosťou, čo zabezpečilo použitie niekdajších okien z prístavku. Je príjemným prekvapením s nádychom starobylosti – odchýlkou od tradičnej otvorenej kuchyne typickej pre loftové bývanie.
TEXT: Beáta Paňáková
Foto: Ioana Marinescu, Will Pryce, Steve Lancefield, Christel Derksen/Rolf Bruggink
Článok bol uverejnený v časopise ASB 1-2/2017.



































