Záhradný dom vo Viedni je rehabilitáciou sociálnych domov
Chladná oceľ a záhradný dom? Sociálny byt s vyšším štandardom? Dnes to už nie je nič mimoriadne, hoci výskyt je predsa len častejší na západ od našich hraníc. Zdanlivo nespojiteľné sa hravo spája v rôznych interpretáciách na tému bytový dom. Aj stiesnená parcela na nároží dvoch ulíc vie ponúknuť vhodné miesto na rozohratie dispozície, ktorá v maximálnej miere využíva daný priestor. Tieto momenty sa stretávajú aj v bytovom dome na rohu Alxingerstrasse a Hardtmuthgasse vo viedenskej mestskej časti Favoriten. „Napriek obmedzeniam pozemku a vedomiu, že staviame pre sociálne slabšie vrstvy obyvateľstva, sme nezabúdali ani na estetický výraz,“ hovorí o dome jeho spoluautor Markus Geiswinkler.
Nová interpretácia činžiakov

„To však neznamená, že sme znížili nároky na architektonickú realizáciu,“ presviedča Markus Geiswinkler, ktorý takmer pred dvadsiatimi rokmi založil vo Viedni spolu s manželkou Kinayeh Geiswinkler-Aziz (pochádzajúcou z Iraku) dnes už renomované štúdio Geiswinkler & Geiswinkler Architekten.
„Máme radi výzvy a záhradný dom na Alxingergasse medzi ne rozhodne patril,“ pokračuje M. Geiswinkler. „Pri jeho koncipovaní sme sa inšpirovali hranolovými budovami mestských oblastí z 19. storočia a snažili sme sa to skombinovať v novej interpretácii klasických činžiakov.“
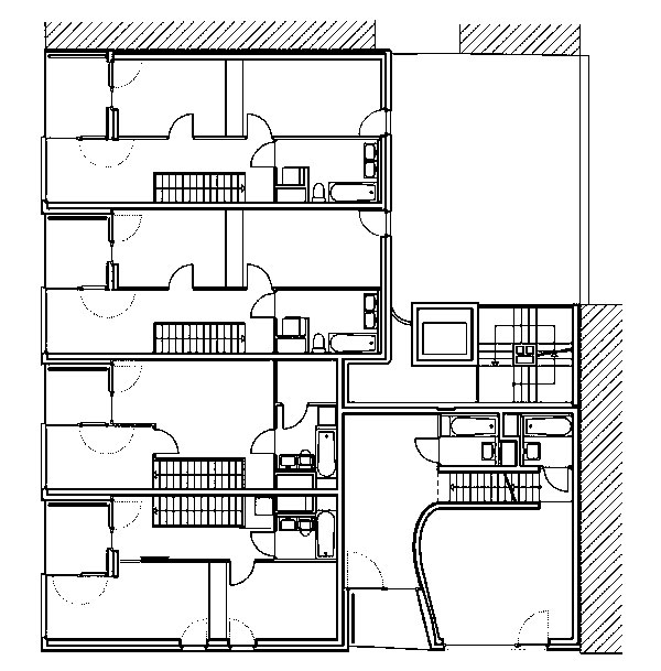
Výsledkom je dom so 17 bytmi, pričom každý z nich má vlastnú záhradu, tesne spojenú s obývačkou. Voľná dispozícia pôdorysu zase poskytovala veľkú rozmanitosť usporiadania bytov podľa potrieb a prianí užívateľov. Flexibilita bytov sa tak stala pridanou hodnotou, ktorá sa zhodnocuje v ich prevádzke. Všetky byty prechádzajú cez celú budovu, čiže siahajú od dvora až po ulicu. Dôsledná hĺbka krídiel bytov vytvára množstvo dlhých a úzkych priestorov, ktoré majú jasnú prevádzku.
Na dlhej strane dispozície uvádzajú dvoje dverí do centrálnej miestnosti, ktorá sa môže deliť ľahkými priečkami. Tento model umožňuje, aby sa z jednej veľkej obývačky vytvorili dve či tri malé izby. Ide pritom o veľmi jednoduchý, ale efektný zásah, ktorý vniesol do usporiadania nový moment. Vnútorné schodiská sa väčšinou skladajú z oceľovej konštrukcie upevnenej do dosiek stropu, sú to tzv. samonosné schodiská.
![]() |
![]() |
| Pôdorys 1. NP | Pôdorys 2. NP |
Vertikálne puzzle
Najvýraznejším motívom domu je však dvojpodlažný charakter bytov so zelenými lodžiami. „Zelený záves“ na fasáde domu, oddeľujúci byt od rušnej ulice, je nielen prvkom poskytujúcim oddychovú zónu či prirodzené tienidlo počas horúcich dní, ale aj zreteľným výrazovým prostriedkom na dosiahnutie estetického účinku budovy. Zelená záhrada na lodžii je od obývačky oddelená luxusnejšie poňatými posuvnými dverami. „Pri vstupe do tohto malého súkromného zeleného priestoru si však človek uvedomuje, že to nie je luxus, ale nevyhnutná súčasť našej efektívnej práce s dispozíciou bytu, ktorého pôvodná cena sa znásobuje hodnotou dlhodobého používania,“ upozorňuje Markus Geiswinkler.
Rozdelenie obytných priestorov na dvoch úrovniach vytvára puzzle, ktoré do seba zapadá vo vertikálne poskladaných celkoch. Niektoré byty majú viac priestoru na nižšej úrovni, iné zase na hornom poschodí. Dôvtipné skladanie tvarov na vyššom poschodí znamená, že jednu strana lodžie tvorí arkierové okno, zatiaľ čo druhá strana je nad priestorom zelenej záhrady.
![]() |
![]() |
Aj rakúsky teoretik architektúry Matthias Boeckl si vo svojej recenzii v magazíne Architektur aktuell všimol, že ľuďom, ktorí radi bývajú na dvoch úrovniach, to prináša nasýtenú koncentráciu pôvabných efektov. „Niečo podobné bolo v oblasti sociálneho bývania takmer nemysliteľné,“ píše Matthias Boeckl, ktorý zaradil tento záhradný dom medzi to najlepšie, čo v Rakúsku v danej oblasti za posledné obdobie vzniklo.
Zrkadlom miestnej reality je aj rozhodnutie, že na prízemí nie sú obchody, ale priestory v prospech ďalších nájomcov. Jednoducho, z parcely je vytiahnuté maximum možných bonusov – investorských aj stavebných. Je to súčasne architektonická rehabilitácia sociálnych domov, ktoré ani zďaleka nemusia byť odrazom pejoratívneho nádychu. Nuž, a v neposlednom rade je to aj vzor pre produkciu na Slovensku, ktorý ukazuje, že aj za relatívne málo peňazí je veľa kvalitnej architektonickej muziky slúžiacej ľuďom.
Vertikálny záhradný dom
Architekti: Geiswinkler & Geiswinkler Architekten, dipl. Ing. arch. Kinayeh Geiswinkler-Aziz, dipl. Ing. arch. Markus Geiswinkler
Spolupráca: Wolfgang Kralovics, Christoph Stabel, Robert Sturm, Thomas Wirsing
Generálny dodávateľ: Universale Hochbau Vienna
Obytná plocha: 1 400 m2
Cena: 1 230 eur/m2
Ukončenie stavby: 2005
Ľudo Petránsky
Foto: © Geiswinkler & Geiswinkler Architekten, Foto: Manfred Seidl















