Záhradné vily: Nadčasový mix bytov kúsok od rezervácie
Napriek tomu, že v prípade projektu Záhradných víl investor zdôrazňuje ľahkú dostupnosť lokality smerom do centra a na hlavné komunikačné dopravné ťahy, hlavným esom tohto projektu je jeho bezprostredné okolie.
Správne vybraná cieľová skupina je základom úspešného projektu. Investor, ktorý má s bytovou výstavbou skúsenosti, sa zameral na rodiny s malými deťmi a klientelu, ktorá vyhľadáva tichú lokalitu s množstvom príležitostí na relax. V tomto prípade ide o bývanie na hranici prírodnej rezervácie Devínska Kobyla. Je to vyhľadávané miesto na víkendové prechádzky. V jadrových častiach rezervácie platí dokonca najvyšší stupeň ochrany prírody.
Suchou nohou do bytu
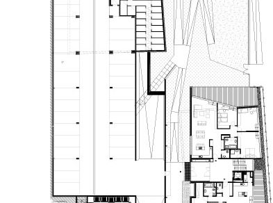
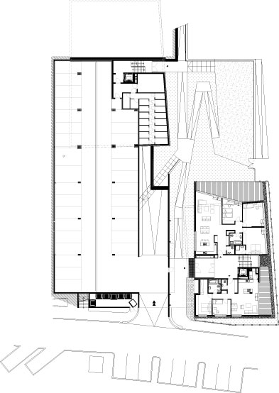
Záhradné vily sa nachádzajú v severovýchodnej časti územia Brižite sever v susedstve novo vznikajúcich obytných súborov Villa Rustica a Tarjanne. V súčasnosti je územie prístupné z juhovýchodnej strany z poľnej cesty v predĺžení ulice Pri kríži a z priľahlej obslužnej komunikácie na ulici Martina Granca vybudovanej v predošlej fáze projektu. Podzemná garáž pod objektmi bude kaskádovito osadená v teréne a objekty navzájom prepojí. Bude vybudovaná tak, aby sa dopravná obsluha nekrížila s pešími a obyvatelia sa dostali tzv. suchou nohou až do svojho bytu. Na streche garáže investor pripravuje príjemnú parkovú úpravu s detským ihriskom, ktorá by mohla prispieť k vytvoreniu príjemnej uzavretej susedskej komunity. V parteri investor nevytvára žiadne priestory pre občiansku vybavenosť. Na jednej strane tým obyvatelia prichádzajú o možnosť mať prípadné služby ako obchod, či reštauráciu v bezprostrednej blízkosti, na druhej strane nebudú rušení žiadnou dopravnou obsluhou a jednotná funkcia v objektoch im zabezpečí pokojné bývanie.
Nadčasový mix bytov
Záhradné vily tvoria celok troch šesťpodlažných bytových domov, pričom najvyššie podlažie je ustúpené. Sú tam situované veľkoplošné strešné byty s niekoľkými terasami. Aktuálne investor pripravuje na výstavbu objekty 01 a 02, tretí bude nasledovať v ďalšej fáze. Jednotlivé objekty majú lichobežníkový pôdorys a sú osadené kolmo na jestvujúcu poľnú cestu. Medzi objektmi sa tak otvárajú cez spoločnú zeleň priehľady do okolitej krajiny. Ako uviedol investor, hmota navrhovaných domov logicky vychádza zo susediacej bytovej zástavby a jej radenie bolo overené predchádzajúcou územnoplánovacou dokumentáciou a stavebným povolením. Základný pôdorysný tvar vychádzal z rozmerov pre garážové parkovanie. Jednotlivé obytné bloky majú vždy jedno obslužné vertikálne jadro, ktoré obsluhuje v objekte 01 30 bytov a v 02 19 bytov. V skladbe bytov je pripravený nadčasový mix od najmenších po nadštandardne veľké byty, avšak väčšina z nich sú 3-alebo 4-izbové byty s dobre vyriešenými dispozíciami.
Plusom týchto bytov je ich orientácia minimálne na dve svetové strany, priestranné balkóny, prípadne záhradné terasy na prízemí. Použitý konštrukčný systém umožňuje prípadné flexibilné zmeny v dispozícii bytov, obmedzené sú len navrhnutým okenným rastrom. Objekty budú založené na monolitickej železobetónovej základovej doske s hrúbkou 600 mm, v mieste pod stĺpmi bude prehĺbená na 900 mm. Zvislé nosné konštrukcie sú navrhnuté zo železobetónových obvodových a vnútorných stien hrúbky 200 mm a železobetónových vnútorných stĺpov. Vodorovné nosné konštrukcie stavby pozostávajú zo železobetónových monolitických obojsmerne vystužených stropných dosiek hrúbky 240 mm. Objekty budú zateplené kontaktným zatepľovacím systémom s tepelnou izoláciou na báze minerálnej vlny hrúbky 150 mm s povrchovou úpravou silikónovou omietkou. V častiach obvodových stien, kde je navrhnutý obklad z fasádnych dosiek, sa uvažuje s tepelnou izoláciou na báze minerálnej vlny hrúbky 120 mm opatrenej zo strany vzduchovej medzery paropriepustnou fóliou s UV.
Raster ako príjemná zmena
Architektúra víl je pomerne jednoduchá, presne v súlade s investorovým zámerom, kde dominantným prvkom je práve okolité prírodné prostredie. Architekti sa preto nepotrebovali voči nemu výrazne vymedzovať a zdôrazňovať dôležitosť svojho tvorivého vstupu. Pri pohľade na tento rezidenčný projekt zaujme najmä striedavý raster okien. Tým, že je striedanie pravidelné, nepôsobí rušivo, je skôr príjemným vybočením zo zaužívanej rutiny. Architekti si potom vystačili len s bielymi omietkami. Tvarovú kompozíciu už len ako detail dopĺňa fasádny obklad na vrchnom ustúpenom podlaží. V tomto prípade naozaj platí, že menej je viac. Konkurenčných projektov v Bratislave pribúda, záujemcovia si môžu vyberať a neváhajú investovať ani do projektov, ktoré sú ešte len na papieri. Záhradné vily s cenou okolo dvetisíc eur aj s DPH za meter štvorcový sú jedným z projektov, ktorý pri mapovaní trhu istotne neobíde žiadna rodina.
text: Mária Nováková
Dokumentácia: ARCHIKÓD | Vavrica architekti
Článok bol zverejnený v časopise ASB.















