Výrazná žltá je dobrý ťah – Emporia City Residence
Výstavba bytových domov je jedným z mála odvetví v stavebníctve, ktoré v istom útlme, ale predsa pokračuje. Teší nás každá vydarená realizácia a radi kvôli nej vycestujeme na obhliadku. Emporia City Residence vo Zvolene je svojím nevtieravým, ale predsa originálnym a kultivovaným riešením nadčasovým príkladom a návodom, ako sa zhostiť zdanlivo prozaického zadania.
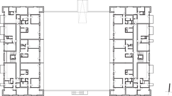
Farebný akcentTo, čo pozorovateľa zaujme na bytovom komplexe Emporia City Residence vo Zvolene na prvý pohľad, je jeho farebnosť. Celá škála neutrálnych odtieňov od tmavosivej až po lomenú bielu presne zodpovedá súčasnému minimalistickému trendu. Autorský tím architektov však urobil správny krok vpred, keď farebnú schému narušili celkom neopozeranou žltou na fasádach otočených do vnútrobloku. Toto gesto akoby prezrádzalo aj objemový koncept. „Parcela má obdĺžnikový pôdorys. Jeden z prvých nápadov bol, že sme doprostred postavili kocku s developerom požadovanou kubaturou bytov. Potom sme ju rozdelili na polovicu a vzniknuté kvádre sme od seba oddelili. Ponechali sme len podnož polozapustenej garáže, na streche ktorej vznikol vnútroblok,“ hovorí architekt Martin Rezník. Práve výrazná charakteristická farba, ako napríklad pri ovocí, akcentuje od seba oddelené plochy kubusov s výraznými bielymi rizalitmi na bokoch. Doplňujúcim a rovnako nečakaným vtipným detailom je žltá omietka na spodnej časti balkónov otočených do Jilemnického a Moyzesovej ulice.
Zeleň nová aj pôvodná
Vnútroblokové fasády sú maximálne otvorené jednak vďaka veľkým lodžiám pozdĺž celej dispozície bytov a jednak použitím veľkých zasklených plôch. Vytvoril sa tým dostatočný priestor na presvetlenie bytov a navyše umožňuje obyvateľom pohodlný vizuálny kontakt s pokojovou zónou medzi blokmi. Zámer zasypať strechu garáže štrkom ako úsporné opatrenie našťastie nahradil trávnik v kombinácii s nízkou zeleňou a časť plochy sa využíva ako detské ihrisko, prístupné len obyvateľom rezidencie. Aj k ostatnej zeleni mali autori rešpekt a ponechali na parcele čo najviac pôvodných urastených stromov, čo výrazne prispelo k začleneniu nového komplexu do existujúceho prostredia. 
| Emporia City Residence Miesto: Zvolen, Ulica Štefana Moyzesa Investor: Arkon, a. s. Autori projektu: Ing. arch. Martin Rezník, Ing. arch. Silvia Kračúnová, Ing. arch. Matúš Polák, Ing. arch. Gabriela Rezníková – Kossúthová Plocha pozemku: 3 175,87 m2 Úžitková plocha: 6 816,62 m2 Investičný náklad: cca 5,5 mil. eur Počet bytových jednotiek: 50 Počet nebytových priestorov: 3 Generálny dodávateľ stavby: Váhostav, a. s. Okná: INCON, spol. s r. o. Požiarne uzávery: Pyrobatys, a. s. Vykurovanie: REMONTA, spol. s r. o. Zdravotná technika a kanalizácia: REMONTA, spol. s r. o. Antikorové zábradlia: Ing. Andrej Meško Sadovnícke úpravy: ZASAS, s. r. o. Strecha: SIBAZ, spol. s r. o. Vzduchotechnika: GreMi KLIMA, s. r. o. Protipožiarne dvere: FORBE, s. r. o. Elektroinštalacia: MONT ELEKTRO, a. s. Výťah: Schindler výťahy a eskalátory, a. s. Detske ihrisko: KUPAS, s. r. o.  | 
–>–>

Dva obytné bloky vo výške piatich podlaží prirodzene ukončujú nárožie a vytvárajú rovnocenný protipól k blízkej budove školy. Objemovo novostavba rešpektuje aj okolitú rôznorodú zástavbu rodinných domov. Práve vhodné tvarové aj farebné riešenie celkom prirodzene začleňuje hmotu nových objektov do staršej štruktúry neďaleko centra mesta. K lokalite sa vyjadrila architektka Silvia Kračúnová: „Pôvodný investor kúpil pozemok aj so starou telocvičňou základnej školy, ktorá stojí cez ulicu oproti. Objekt telocvične bol asanovaný a majiteľ investoval hneď vedľa budovy školy do novej telocvične, čím sa eliminovalo aj nie celkom bezpečné prechádzanie detí cez ulicu na hodiny telesnej výchovy.“ Napriek tomu, že už rozbehnutý projekt zmenil majiteľa, pôvodný veľmi kultivovaný koncept ostal zachovaný, čo kladne hodnotia aj sami autori. „Spoluprácu s investorom musíme pochváliť. Všetky zásadnejšie zmeny, ktoré sa navrhovali, s nami najprv prekonzultoval a nechal si poradiť. Navyše nešiel do úsporných riešení len pre nízku cenu. Investor mal na zreteli aj nevyhnutnú údržbu. Napríklad pôvodne sme navrhli antikorové zábradlia so sklenenou výplňou. Dohodli sme sa na finančne menej náročnom riešení, ale pri antikore sme ostali, pretože je to materiál prakticky bezúdržbový a realizáciu to posúva o úroveň vyššie,“ zhodli sa autori projektu a aj zástupca investora Ing. Marek Marcinek, ktorý nás pri obhliadke sprevádzal.

Nosnú konštrukciu objektov tvorí železobetónový skelet s výplňovým murivom. Dispozícia je jednoduchá, na jednom podlaží je 6 alebo 7 bytov. Väčšie nárožné byty sú orientované na dve svetové strany, menšie buď do ulice, alebo do vnútrobloku. Najväčšie byty s rozlohou až 154 m2 sú situované na ustúpenom 5. NP. Okrem veľkorysej terasy majú k dispozícii aj výhľad na mesto a okolie. V spoločnej garáži je 63 parkovacích miest a pivničné komôrky pre všetky byty.
„Pozitívom tohto projektu bolo aj to, že sme od začiatku pracovali s pevným rozpočtom. Ak sme teda niekde rozumne ušetrili, napríklad použitím jedného komunikačného jadra namiesto dvoch, tak inde sme si mohli dovoliť nadštandardné materiály. Typickým príkladom sú koberce na komunikačných chodbách. Pre jednoduchú údržbu sme navrhli tmavosivú farbu, ktorú sme vyvážili žltými stropmi v rovnakom odtieni, aký sa použil v exteriéri,“ doplnila Silvia Kračúnová.
Emporia City Residence vo Zvolene je vo svojom segmente príjemným osviežením nielen pokiaľ ide o architektonický dizajn, ale aj o celkovú kvalitu stavebného vyhotovenia.
Mária Nováková
Foto: Boleslav Boška
Dokumentácia: Ing. arch. Martin Rezník a Ing. arch. Silvia Kračúnová
 EMPORIA City Residence, Zvolen
Z exteriéru pôsobí dom príjemným dojmom. Na fasáde z kontaktného zatepľovacieho systému sa farebne kombinuje biela, tmavá sivá a svetlá žltá farba. Línie jednotlivých prechodov farieb sú rovné, čo svedčí o precíznosti zhotovovateľov, ale aj dôraze investora. Dobrý dojem z exteriéru umocňuje aj antikorové vyhotovenie zámočníckych výrobkov. Všetky zábradlia balkónov, francúzskych okien, ale aj chrliče na odvodnenie malých balkónikov sú z tohto ušľachtilého materiálu. Z hľadiska prevádzky domu a nárokov na údržbu je to pre majiteľov bytov bonus. V interiéri domu na chodbách pred bytmi sa ako nášľapná vrstva použil koberec. Pre bytový dom je to nezvyčajné riešenie, ktoré síce pomáha tlmiť hluk zo spoločných priestorov, ale údržba je iste náročnejšia ako pri dlažbách, a pre opotrebovanie ho bude treba obmieňať. Byty v dome sú dokončené a ponúkajú sa ako holobyty. Na vápenno-cementových omietkach stien vidno, že stavba sa budovala ako železobetónový skelet s výplňovým murivom. Svedčia o tom vlásočnicové praskliny na spoji muriva a monolitickej konštrukcie. Prakticky je vyriešený systém prípravy a odovzdávania tepla, ktoré sa vyrába centrálne v plynovej kotolni v suteréne domu a do bytu sa odovzdáva prostredníctvom bytovej odovzdávacej stanice. Tá zároveň slúži na prípravu teplej vody. Byt je preto vybavený len meračom tepla a meračom spotreby studenej vody. Menej prakticky pôsobí osadenie domáceho dorozumievacieho zariadenia do úrovne vypínačov (obr. 1). Obrazovka videotelefónu je v tomto prípade pre užívateľov bytu azda s výnimkou detských obyvateľov príliš nízko. Vo vnútrobloku sa na streche polozapustenej garáže vytvorila oddychová zóna s detským ihriskom a trávnikom. Komunikácie na tejto ploche sú vyložené dlažbou z vymývaného betónu ukladanou do štrku. Na lemovanie chodníka neboli použité obrubníky, čo miestami spôsobuje, že jednotlivé dlaždice sa rozchádzajú (obr. 2). Na druhej strane si investor dal záležať na funkčnosti odvodnenia celej tejto plochy aj tým, že odpadové potrubie je elektricky vyhrievané.                          Ing. Marián Kaššák Autor pracuje ako stavebný a technický dozor najmä na veľkých projektoch bytových domov.  | 
Článok bol uverejnený v časopise ASB.
													










EMPORIA City Residence, Zvolen

						
						
						
						
						
						


