Viladomy v Senci s príchuťou Stredomoria
Príťažlivú polohu Senca zdôraznil ďalší zahraničný projekt, ktorý rozvíja málopodlažnú výstavbu v tomto rekreačnom meste. Ide o projekt mestských víl od izraelského developera Davidson Holding, s. r. o. „Hľadali sme lokalitu, do ktorej by sme mohli priniesť koncept bývania zameraný na vyššiu kvalitu života – takpovediac lepší priestor na život,“ hovorí Michael Michaely, konateľ developujúcej spoločnosti. „Senec so svojou uvoľnenou atmosférou a krásnym prostredím presne spĺňal naše kritériá.“
Funkcia aj pocit
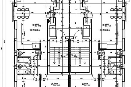
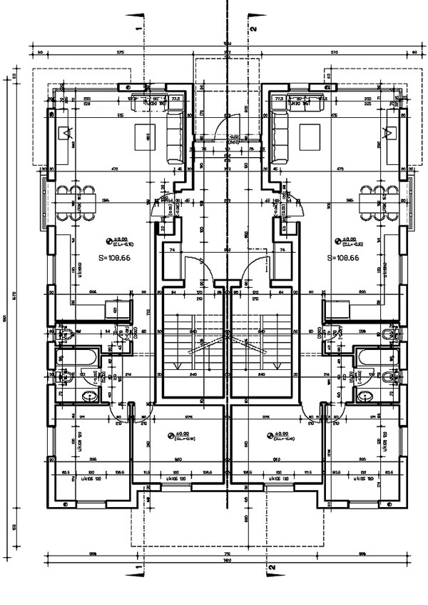
Málopodlažná výstavba viladomov v Senci sa bude realizovať v dvoch fázach: prvá zahŕňa výstavbu 24 apartmánov v štyroch samostatne stojacich trojpodlažných objektoch; druhá fáza je rozsiahlejšia a obsahuje výstavbu 144 apartmánov v šiestich samostatne stojacich trojpodlažných objektoch. Projekt stavia na kvalite lokality, ktorej podriaďuje aj architektonické riešenie. Miesto sa nachádza v tichej oblasti Senca, pričom v blízkosti sú iba málopodlažné rodinné domy. „Do architektúry sme sa snažili priniesť niečo z našich skúseností z Izraela, ako aj z ostatných krajín Strednej Európy,“ vysvetľuje Michael Michaely. „Chceli sme poskytnúť väčší priestor na bývanie s užším kontaktom s okolím.“
V záujme zachovania tohto rodinného rázu je projekt koncipovaný ako mestské vily – dvojdomy s tromi nadzemnými podlažiami, tromi apartmánmi v každom dome a vlastným vchodom pre každý dom. Súkromný charakter zdôrazňuje aj vlastná príjazdová cesta, spoločná zeleň s ihriskom a vlastné parkovacie miesta pre každý apartmán.
Keďže projekt sa nachádza asi 500 metrov od Seneckých jazier a neďaleko centra mesta, veľký dôraz sa kladie nielen na praktickú, ale aj pocitovú stránku budúceho bývania. V zmysle stredomorských tradícií – odvíjajúcich sa od pôvodu developera – sú všetky apartmány presvetlené množstvom okien. Každý apartmán má aj priestrannú terasu, ktorú s obývacím priestorom spája veľká zasklená stena. Apartmány na prízemí majú namiesto terasy vlastnú záhradu umocňujúcu dojem bývania v rodinnom dome.

Alternatíva k Bratislave
Názov projektu: Viladomy Senec
Miesto: Boldocká ulica, Senec
Investor: Davidson Holding, s. r. o.
Autor: Barak Gilboa
Realizátor: Balek Albin
Stavebný dozor: Heim Eshel
Začiatok výstavby: 11/2006
Predpokladané ukončenie: 03/2008
Obytné plochy bytov: 78,3 – 96,3 m2
Plocha terás: 15,8 a 17,7 m2
Plocha záhrad: 65,5 – 137,6 m2
(pet)
Vizualizácie: Davidson Holding, s. r. o.














