Vila Montanus pri Horskom parku v Bratislave
Architekt Ivan Matušík nedávno dokončil štúdiu ďalšieho zaujímavého rodinného domu. Nachádza sa v Horskom parku v Bratislave a jeho riešenie aj členenie naznačujú, že ide o dom väčšieho rozsahu – nielen rozlohou, ale tiež suverénnosťou autorovho rukopisu a voľného, čistého, zľahka sa rozliehajúceho priestoru, ktorý je pre dom charakteristický. Napriek tomu, že samotná parcela pripomína zo strany ulice stavebnú prieluku, zvolená koncepcia vytvorila ideálne vzťahy medzi novostavbou a vzácnymi prírodnými danosťami okolia.
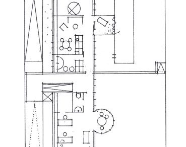
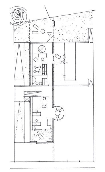
Svahovitý pozemok pri Horskom parku sa nachádza v kultivovanom prostredí vilovej štvrte, založenej v 30. rokoch minulého storočia. Navrhnutý koncept domu vytvára tri terénne terasy s ideálnou nadväznosťou na technické, reprezentačné a súkromné priestory.
Všetky obytné priestory, ako aj vyhliadková strecha sú navrhnuté na princípe dispozičného a konštrukčného jednotraktu a plne využívajú ideálnu juhovýchodnú orientáciu. Ďalšie členenie priestorov sa navrhuje pomocou moderných montovaných priečok a skríň. Vyšší štandard bývania potvrdzuje i rekreačný bazén, vínna pivnička a adekvátne technické vybavenie s využitím daností prostredia.
Vila Montanus
Miesto: Bratislava, Gorazdova ul.
Autor: Ivan Matušík
Architektonický návrh: 8/2008
Plocha parcely: 856,0 m2
Zastavaná plocha: 195,0 m2
Úžitková plocha: 680,0 m2
![]() |
![]() |
![]() |
![]() |
| Prízemie | 1. poschodie |
![]() |
![]() |
| 2. poschodie |
Terasa |
![]() |
![]() |
| Juhozápadný pohľad |
Juhovýchodný pohľad |
(mj)
Fotografie: Ivan Karlík
Grafické prílohy a model: Ivan Matušík



















