Triangolo – vlna v panoráme Nitry
„Poslaním architekta je ísť s dobou. Každý však máme svoju filozofiu a tieto veci treba skĺbiť,“ hovorí Ing. arch. Ivan Matušík a jeho najnovšie architektonické výsledky mu dávajú za pravdu. Patrí k nim aj bytový dom Triangolo v Nitre, ktorý veľmi odvážne, ale aj rozvážne vstúpil do prostredia zástavby starších bytových a rodinných domov. Spolu s mladším kolegom Ing. arch. Sebastianom Nagyom vytvorili dom na pôdoryse rovnoramenného trojuholníka. Táto stavba vznikla na základe dialógu medzi prírodnými danosťami stavebnej lokality a mestom. Strecha domu v tvare morskej vlny udrela ako príboj na skaly súčasnej slovenskej architektúry a výsledkom je Cena Dušana Jurkoviča 2008. „Ocenenie je príjemným, ale predsa len vedľajším produktom nášho snaženia,“ vysvetľuje Ivan Matušík. „Rozhodujúca je spokojnosť – investora, naša a, samozrejme, samotných užívateľov.“
Skúsenosť aj experiment
Spolupráca Ivana Matušíka (1930) a Sebastiana Nagya (1980) vznikla pred šiestimi rokmi, ešte počas vysokoškolských štúdií mladšieho z architektov, keď sa vypísala súťaž na bratislavské Podhradie. Ivan Matušík sa vtedy rozhodol, že na klasiku v podobe hlavy a ceruzky treba napojiť aj počítačový softvér. „A týmto veciam sa predsa len lepšie rozumejú mladí,“ približuje architekt Matušík, ktorý na víťaznom súťažnom návrhu Podhradia spolupracoval s piatimi študentmi. „Sebastian bol akýsi ich vedúci a koncepciu, ktorá vznikla z nášho tímu, som potom doťahoval spôsobom, na ktorý som bol zvyknutý.“
A potom prišla výzva z Nitry, ktorú Ivan Matušík prijal opäť v tandeme so Sebastianom Nagyom. Naladenie na spoločnú tvorivú frekvenciu zotrelo generačný rozdiel. Autorský dialóg využíval synergiu obidvoch prístupov, skúseností i vôľu experimentovať.
Investorské zadanie bytového domu však bolo neobvyklé – na trojuholníkovej parcele. „Keď je trojuholníkový pozemok, tak bude trojuholníkový pôdorys,“ spomína Sebastian Nagy na jednoznačné rozhodnutie svojho staršieho kolegu. „Nechceli sme, aby sa to za každú cenu odlišovalo, ale nezvyčajný pozemok si naozaj vyžadoval osobité riešenie. Jeho kryštalizácia vznikala vo vzájomnom dialógu. Viem, ako pán architekt pracuje, nerobilo mi problém dopĺňať jeho myšlienky a udržať tvorbu v kontinuálnom procese.“
Nasledovali úvahy nad základnou štúdiou, prvé skice, varianty, formovala sa charakteristická „vlna“ na streche budúceho Triangola. Po ustálení jej tvaru mu priniesla príznačnú siluetu, ale i organickú linku, ktorá prepojila originálny koncept s prostredím a nitrianskou panorámou. Inšpiratívnymi dominantami sa stala Nitrianska pahorkatina, vrch Zobor a meander rieky Nitra – akási triáda pre Triangolo. Dôležitá bola aj skutočnosť, že investor prijal nekonvenčnú architektonickú „konfekciu“, a tak sa rozvíjala autorská štúdia, ktorá však nezneužívala jeho dôveru a zámer.

Matušíkova architektúra nikdy nehýrila farbami, či rôznorodými materiálmi. Aj tu sa prejavila ich striedmosť, no jednoduché prostriedky o to výraznejšie artikulujú architektonickú reč.
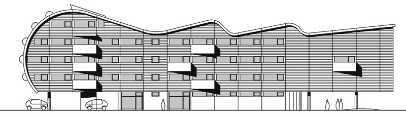
Členenie pôdorysu má základ v modulovej osnove 3 600 mm. Na obvodových stenách sú priebežné okná, pri ktorých sa striedajú otváravé krídla rozmerov 900 × 1200 mm s oknami s pevným zasklením. Sú z dreva (ruská borovica), pričom so svojím zlatistým odtieňom decentne kontrastujú so striebornou farbou metalického vlnitého plášťa fasády, čo prispieva k vonkajšej identifikácii tohto bytového domu.
Nosnú časť budovy tvoria oceľobetónové steny, ktoré sú z vonkajšej strany obložené tepelnou izoláciou. Severná fasáda, ako pokračovanie zvlneného strešného plášťa, je z plastovej krytiny Fatrafol. Jej súčasťou sú kruhové svetlíky pripomínajúce futuristické kajuty zaoceánskej lode. Morská vlna zo strechy tak má svoju ďalšiu významovú paralelu, hoci asociácie sa môžu rozbiehať aj inými smermi.
Typológiu obytného domu Triangolo možno charakterizovať ako trojtrakt chodbového typu. Konce chodieb vyúsťujú do strešného svetlíka, prinášajúceho dovnútra slnečný jas na celú výšku domu. Sú zároveň prirodzeným svetlom pre maľbu s „miróovskými“ motívmi, ktorú v podaní Ivana Matušíka výtvarne kultivujú vnútorné chodbové priestory.

„Opäť som sa po čase začítal do veľkého Adolfa Loosa, ktorý hovorí, že architektúra nie je fasáda, ale priestor,“ hovorí architekt Matušík, pre ktorého rozvíjanie konceptu bolo aj rozmýšľanie o priestore.
„Architekt robí niektoré veci predvídavosťou a ja sa tiež osobne zasadzujem za voľnú dispozíciu. Tak, ako som to zrealizoval vo viacerých rodinných domoch. Aj v Triangole je náznak týchto možností, ktoré ľuďom prinášajú nové alternatívy.“
Pôdorys
Pohľad

„Každá úloha je výzvou a každé zadanie si treba vážiť,“ tvrdí Ivan Matušík. „Aj preto treba ísť do všetkého s maximálnym nasadením, ale aj s vedomím prispôsobenia sa realite. Architekt predsa nerobí sám, ale má dvoch zásadných partnerov – toho, ktorý platí a toho, ktorý to bude užívať. Súčasne sme sa vyhýbali kompromisom a presviedčali aj realizačnú firmu, že sa dajú zhotoviť za rozumné peniaze aj náročnejšie koncepcie.“
Ocenenie odbornou verejnosťou sme už spomínali, medzi široké spoločenstvo projekt zase priniesol závan sviežeho vzduchu, ktorý sa nenásilne dostáva aj medzi Nitranov. Ani autori nechcú hovoriť o dome ako o „prevratnom“ objekte, ale príchuť inakosti mu zostane ešte veľmi dlho. Je prirodzené, že svojich obyvateľov bude mať aspoň spočiatku z radov mladšej generácie, ale svojím pôsobením chce Triangolo osloviť aj skôr narodených. Nie každá architektúra môže a chce posunúť vývoj dopredu, ale prečo sa o to nepokúsiť?
Triangolo

Autori: Ing. arch. Ivan Matušík, Ing. arch. Sebastian Nagy
Investor: Stavomex, s. r. o, Nitra
Spolupráca:
Statika: Ing. Milan Vaňuš
Stavebná časť: Ing. Richard Vojtáš
Plocha pozemku: 1 000 m2
Obostavaný priestor: 5 645 m3
Zastavaná plocha: 525 m2
Parkovacie miesta: 18
Počet bytov: 15
Plošná výmera bytov: 1 231 m2
Začiatok realizácie: august 2006
Koniec realizácie: marec 2008
Celkové náklady: 38 mil. Sk (1,261 mil. €)
Generálny dodávateľ: Stavomex, s. r. o, Nitra
Subdodávatelia:
Strešná konštrukcia:
BeVeBe, s. r. o., Nitra
Thermospol, a. s. , Košice
Oceľové konštrukcie: Erich Korčok – E. L. K. auto, Nitra
Okenné výplne: Vladimír Kašša – Delta, Bratislava
Fasáda: T. C. T. comp. spol s. r. o. Bratislava
Zdravotechnika: V. I. Trade, s. r. o., Nitra
Sanita: KNORR – vybavenie kúpeľní, s. r. o., Nitra
Vykurovanie: V. I. Trade, s. r. o., Nitra
Elektroinštalácia: Ján Vereš Revizmont, Nitra
Ľudo Petránsky
Foto: Dano Veselský













