Tatra Grand Residence
Začiatok Dunajskej ulice sa nachádza v priamom kontakte s Kamenným námestím. Jeho nejasná, nekoncepčná a najmä neukončená urbanistická štruktúra má zásadný vplyv na celkové vnímanie priestoru vrátane priľahlých ulíc. Na jeseň 2011 bola na Dunajskej 6 a 8 skolaudovaná nová polyfunkčná budova. Architekt Peter Jančo so svojím tvorivým tímom navrhli objekt, ktorý vyjadruje ich zásadný názor na charakter moderného mestského prostredia v centre Bratislavy.
Svetelnotechnická norma nepustilaŠtyri parcely vedľa objektu Omnie boli dlhé roky nezastavané. Ich využitie na parkovanie bolo viac-menej cnostným východiskom z núdze, ale v kontexte prepojenia na Kamenné námestie to bola úplná degradácia centrálneho mestského priestoru. Dôvod, prečo investor postavil nový objekt v prieluke až po veľmi dlhej projekčnej príprave, bol v svetelnotechnických podmienkach, ktoré bolo treba dodržať najmä vzhľadom na susedné objekty z Grosslingovej ulice. Treba si položiť otázku, či je pre rozvoj centra mesta skutočne nevyhnutné stanoviť rovnaké podmienky a normy ako vo voľnejšej, napríklad vidieckej zástavbe.
Výsledný návrh rešpektuje všetky obmedzenia lokality a treba zdôrazniť, že problematické zadanie vyriešil tvorivý tím so cťou. Víťazom užšej súťaže, ktorú vypísal investor, sa stal architektonický ateliér Petra Janča. Úpravou projektu a najmä nevyhnutným skosením južnej fasády pod 42° uhlom síce investor stratil 12 až 15 % podlahovej plochy, ale na druhej strane autori otvorili južnú stranu maximálnymi sklenenými plochami a terasami do vnútrobloku. Zadná dvorová fasáda je ťažko vizuálne obsiahnuteľná. Jej materiálovému riešeniu však architekti venovali veľkú pozornosť. Farebnosť sa nesie v tlmených tónoch fasádnej omietky a šikmá „strecho-fasáda“ na najvyšších podlažiach je obložená kompozitnými Trespa doskami.
![]()  | 
![]()  | 

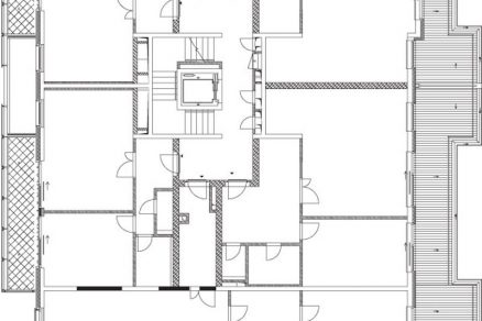
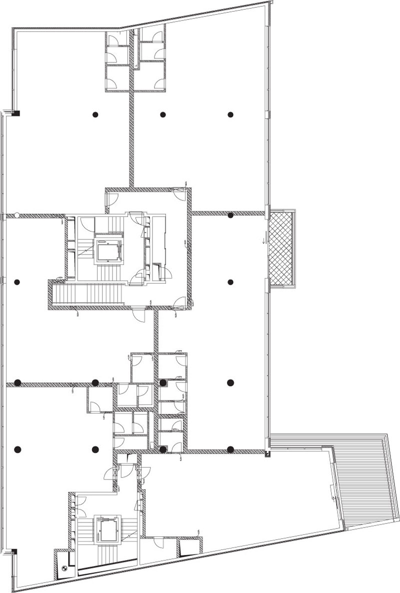
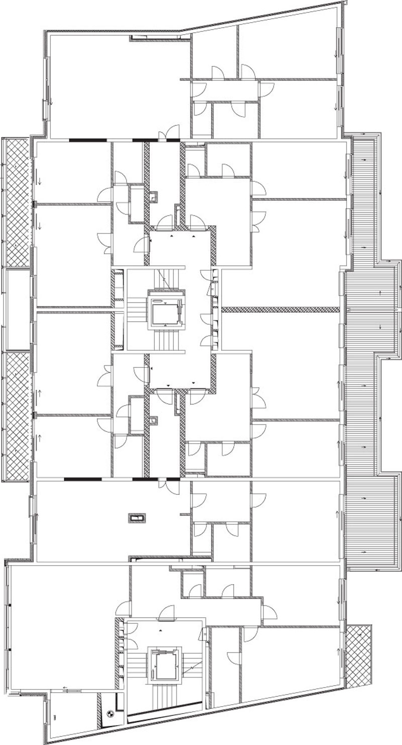
Od štvrtého nadzemného podlažia až po ôsme navrhli autori byty s rôznorodou metrážou a dispozičným usporiadaním. To, čo sa na začiatku javilo ako veľké negatívum celého projektu, vyústilo do veľkých pobytových exteriérových plôch s drevenou podlahou, osvetlením a prívodom vody. Časť bytov je orientovaná na obe fasády, severnú aj južnú. Na najvyšších podlažiach sú situované veľkometrážne mezonetové byty s prvotriednym výhľadom, jeden z nich má na streche objektu aj veľkorysú terasu. Byty na nižších podlažiach mali podľa pôvodného konceptu tiež nadštandardné rozlohy, ale vzhľadom na vývoj finančnej a hospodárskej situácie na Slovensku investor návrh prehodnotil a časť bytov sa teraz pohybuje na hornej hranici štandardu, kde napríklad dvojizbový byt má rozlohu 60 až 75 m2. 
Funkcie a konštrukcie
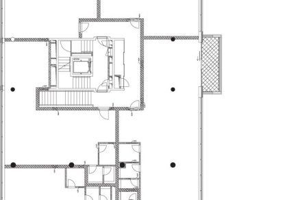
Parter objektu je plánovaný na rôzne typy služieb od budúcej reštaurácie, ktorá má možnosť využívať aj átrium so sadovými úpravami, cez cestovnú kanceláriu až po banku. Druhé a tretie podlažie poskytuje kancelárske priestory od 30 až po takmer 130 m2. V dvoch podzemných podlažiach objektu je situované technické zázemie objektu a 59 parkovacích miest na polrampovom systéme. Budova je založená na monolitickej železobetónovej doske hrubej 600 mm s lokálnym zhrubnutím pod stĺpmi na 1 100 mm. Aj v podzemí bol projekt obmedzený maximálnou hĺbkou 12 m pod terénom z dôvodu plánovanej trasy budúceho bratislavského metra. Konštrukciu objektu tvorí do 2. NP monolitická železobetónová konštrukcia so stužujúcimi stenami v dvoch vertikálnych komunikačných jadrách, od 3. NP je nosný systém priečny stenový.
Materiálovým riešením a kompozíciou fasád vychádzali architekti z princípu harmónie a kontrastu. Severná fasáda je obložená prírodným kameňom, na južnej sa použila omietka. Najmä uličná fasáda s vertikálnym aj horizontálnym členením na tri segmenty poskytuje ľahkú orientáciu v architektúre objektu. Predsadený raster terčových skiel s jemným farebným tieňovaním ju nevtieravo graduje a ponúka chránený polootvorený priestor netradičných lodžií s výhľadom na Dunajskú ulicu.
 
Najvyšší čas
Budova Tatra Grand Residence kultivovane zapadá do existujúcej uličnej zástavby, ktorú tvoria objekty z rôznych období. Autori použili súčasné výrazové prostriedky s vedomím, že niekdajšia podoba Kamenného námestia je dávnou minulosťou. Jednoznačne však treba pripomenúť, že súčasný stav tohto exponovaného mestského priestoru je neudržateľný a priam volá po konečnom riešení. Nová budova Tatra Grand Residence sa môže v tejto súvislosti považovať za vydarený začiatok.
![]()  | 
![]()  | 
![]()  | 
![]()  | 
| Tatra Grand Residence Miesto: Dunajská ulica 6, 8, Bratislava Investor: CENTRUM BÝVANIA, s. r. o. Autori projektu: Ing. arch. P. Jančo, Ing. arch. E. Jančová, PhD., Ing. M. Árendás, Ing. arch. L. Beňušová, Ing. arch. Z. Bžochová, Ing. arch. M. Lörinczová, Ing. E. Takácsová, Ing. D. Vadkerti Začiatok výstavby: 4. kvartál 2009 Ukončenie výstavby: 3. kvartál 2011 Hlavný dodávateľ: ZIPP Bratislava, s. r. o. Omietky a maľby: FOKS spol. s r. o. Obklady, dlažby: T Design, s. r. o. Hliníkové okná a dvere: FENESTRA Sk, spol. s r. o. Sadové úpravy: GAUDIUM záhradnícky podnik spol. s r. o. Zateplená fasáda: JUBIZOL, spol. s r. o. Kamenný obklad fasády: FRONTECH s. r. o. Hliníkový obklad fasády: ALUSTEEL, spol. s r. o. Drevená podlaha terasy: KANAPY interier kontrakt, s. r. o.  | 
 Polyfunkčný dom Tatra Grand Residence – odborným okom
            V čase našej obhliadky bol dom dokončený, pričom interiér bol v stave holopriestorov. Ide v súčasnosti o častú formu realizácie stavieb, ktorá umožňuje klientom uplatniť vlastnú predstavu o štandarde vybavenia a použití materiálov pri dokončovaní interiéru. Nevýhodou však je dlhodobá stavebná činnosť v útrobách domu spojená s hlukom, špinou a transportom materiálu v spoločných priestoroch.  Technické vybavenie bytov je riešené na vysokej úrovni – elektroinštalácia zbernicovým systémom, bytové odovzdávacie stanice tepla, funkčné chladenie prostredníctvom kanálovej jednotky typu Fan-coil napojenej na rozvod chladiacej vody z centrálneho zdroja bez potreby umiestňovať individuálne vonkajšie jednotky. Len umiestnenie ovládača chladenia priamo pod výustku môže byť problematické z pohľadu jeho správnej funkčnosti. 
 Snaha o vyšší štandard sa uplatnila aj v administratívnych priestoroch použitím zdvojenej podlahy, pripravenou štruktúrovanou kabelážou, chladením a kúrením parapetnými jednotkami typu Fan-coil so štvorrúrkovým napojením umožňujúcim v prechodnom období na južnej fasáde chladiť a na severnej kúriť. Tu nám však udrel do oka nezvládnutý detail spojenia parapetnej jednotky a zníženého okenného parapetu (obr. 2). Polyfunkčný dom zaplnil prieluku medzi domami v centre mesta. Z pohľadu realizácie stavby v takomto prostredí je náročné poradiť si s obmedzenými priestorovými možnosťami na zariadenie staveniska a s logistikou pri zásobovaní stavby. Podľa slov investora to zhotovovateľ zvládol na výbornú.             Ing. Marián Kaššák Autor pracuje ako stavebný a technický dozor najmä na veľkých projektoch bytových domov.  | 
Mária Nováková
Foto: Dano Veselský
Projektová dokumentácia: CENTRUM BÝVANIA
Článok bol uverejnený v časopise ASB.
–>–>
													
















Polyfunkčný dom Tatra Grand Residence – odborným okom


						
						
						
						
						
						


