Spomienka na Gaudího
Aký silný zážitok môže zanechať stretnutie s architektúrou veľkého formátu? Odpoveď ponúka novostavba polyfunkčného domu na Bazovej ulici v Bratislave. Autor stavby v nej zhmotnil svoju reminiscenciu na Gaudího nedokončený barcelonský dom Casa Milà, známy aj ako La Pedrera. Čerstvý prírastok v bratislavskej zástavbe však napriek tomu nepôsobí ako bezduchá kópia diela slávneho katalánskeho architekta. Objekt s príznačným podtitulkom Conmemoración Gaudí vzdáva svetoznámemu menu hold prostredníctvom hry tvarov, ktorá vdýchla bratislavskému mestskému bloku nový život.
Rozvlnený mestský blok
„Na jednej strane je tu badateľná inšpirácia Gaudím, v širšom zmysle som však čerpal z obrazotvornosti secesie a výtvarného umenia, ktoré je mi veľmi blízke. Hoci dom La Pedrera nebol dotiahnutý do detailu podľa predstáv Antoniho Gaudího, práve jeho neokresanosť a plasticita ma oslovila viac než dekorativizmus Gaudího dokončených stavieb.

Stavbe vdýchla živosť najmä horizontálna vibrujúca línia terasovitých zábradlí, ktorá na križovaní troch komunikačných trás rozihrala masív celého mestského bloku. Oblúkovité zábradlie pokrýva len jednoduchá svetlosivá omietka s drobnozrnnou štruktúrou, ktorá kontrastuje so základným žltohnedým tehlovým obkladom fasády.
„Niekto by mohol vo výbere tohto materiálu vidieť akýsi návrat k anglickej romantickej architektúre. Z historického hľadiska ide o archetypálnu štruktúru, ktorá pochádza ešte z čias starovekých mezopotámskych stavieb. Tehlová aplikácia je alternatívou chladnej architektúry kovu a skla,“ vysvetľuje architekt. Masívny trojcentimetrový obklad preniká aj do interiéru – vo vstupnej hale ho nájdeme ako obloženie výťahových šácht aj nosných pilierov. Všetky doplnkové konštrukcie z kovu sa prispôsobili základnému farebnému ladeniu, a preto ich na stavbe možno nájsť len v neutrálnom tmavosivom odtieni. Abstrakcia a určitá hravosť sa nakoniec dotkla aj samotného obkladu, ktorý na mieste schodiskových veží vystupuje z fasády vo forme štvorcových plastických vlysov s horizontálnymi tehlovými prúžkami.

Jednou z predností polyfunkčného domu Gaudí je jeho umiestnenie v pokojnej bratislavskej lokalite na rozhraní troch komunikácií, kde jediným rušnejším prúdom je iba Svätoplukova ulica s pravidelnou premávkou trolejbusov. V tejto časti sa nachádza spolu päť bytov, v ktorých problematiku akustiky rieši mikroventilácia zabudovaná v oknách so stabilným núteným vetraním. Objekt ťaží najmä z prítomnosti masívu zelene priľahlého parku, rozkladajúceho sa na severnej strane. Výstavbou komplexu sa súčasne dokomponoval pôvodne otvorený mestský blok.
Novostavba ho uzatvára v tvare písmena U. Vo vnútrobloku sa vytvoril dvor, ktorý bude slúžiť ako súkromný oddychový priestor pre obyvateľov domu. Architekt uvažuje, že v jeho centrálnej časti osadí plastiku svojho otca Alexandra Trizuljaka, ktorý ju vytvoril ešte v 60. rokoch minulého storočia v rámci cyklu Variácie na nekonečno a v ktorej sa uplatňuje podobný motív vlnenia.
„Nejde o žiadny vopred kalkulovaný zámer. Táto myšlienka sa vykryštalizovala postupne počas prípravy a realizácie projektu. Kdesi v podvedomí cítim istú vnútornú kontinuitu medzi otcovým dielom a svojou prácou. Problém je v tom, že v súčasnosti sa výtvarnému umeniu venuje málo priestoru, často najmä pre nedostatok financií. Takže je stále otázne, či sa nakoniec všetci zúčastnení zhodnú a plastiku sa podarí osadiť. Chcel by som ju tam aspoň načas umiestniť, aby som si overil jej celkové pôsobenie v priestore,“ uvažuje architekt.
Veľkorysé terasy

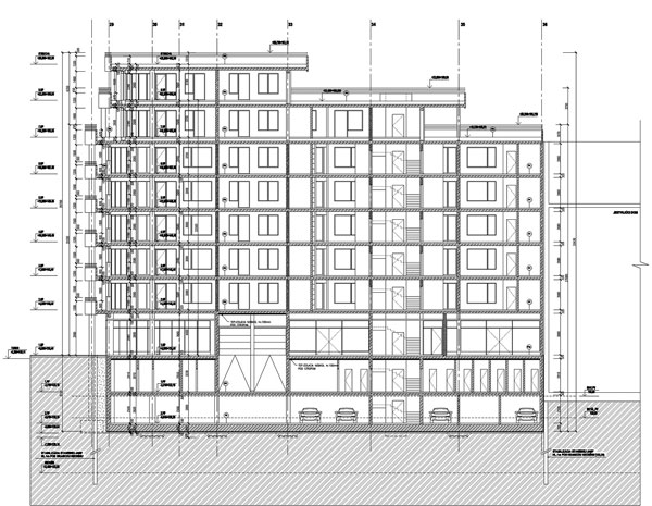
Aj na ôsmom nadzemnom podlaží sa dodatočnou zmenou podarilo využiť plochu strechy ako veľkorysú terasu s výhľadom na všetky svetové strany. Prístup do tejto časti domu prostredníctvom vnútorného schodiska a do nadstavby budú mať aj užívatelia bytov na siedmom podlaží. Vznikol tak zaujímavý previazaný exteriérový komplex terás a bytov v rovine strešnej architektúry. V jednotkách orientovaných k parku sa parapety znížili na 60 cm a prostredníctvom veľkých zasklených plôch pomohli vizuálnemu prerastaniu vonkajšieho prostredia do interiéru. Integrovanou súčasťou bytov je terasa, ktorá vznikla uskočením fasády a prepojila priestor kuchyne, jedálne a obývacej izby s exteriérom parku.
„Niektorí klienti spočiatku nerozumeli tomu, prečo sa im uberá z obytného priestoru, terasa však vnáša do bývania novú kvalitu. Možno na ňu pohodlne postaviť stôl so štyrmi stoličkami, vďaka čomu si budúci majitelia budú môcť vychutnať príjemné posedenie vonku, napríklad počas letných večerov. Pre praktické potreby bývania má väčšina bytov aj ďalší balkón situovaný na opačnej strane domu – do dvora,“ dodáva Klement Trizuljak.

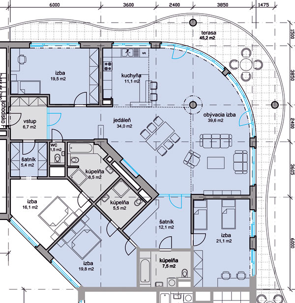
V dome sa nachádza 70 prevažne malých a stredných bytových jednotiek. Dispozície menších bytov majú jednoduché riešenie, v rámci ktorého tvorí malá chodba filter medzi spoločenskou a oddychovou zónou.
Nadštandardné byty s výmerou asi 200 m2 sa sústreďujú na nároží Bazovej a Kvačalovej ulice. V týchto jednotkách sa jedna izba nachádza hneď pri vstupe. Môže slúžiť potrebám hostí alebo ako ďalšia miestnosť dvojgeneračného bytu. Cez spoločenskú zónu sa prechádza do spálňovej časti, ktorú tvoria izby so samostatnými kúpeľňami a šatníkmi a jednou spoločnou kúpeľňou. Na druhom nároží možno nájsť trojizbové byty. Keďže sa vyznačujú pomerne veľkou hĺbkou, okná jednej zo spální spolu s obývacou časťou a kuchyňou smerujú do ulice, zatiaľ čo druhá miestnosť je orientovaná do slnečného vnútorného dvora.
Počas výstavby došlo čiastočne k zmene funkcií a v krídle pozdĺž Svätoplukovej ulice nahradila pôvodnú obytnú časť administratíva. Priestory sústredené okolo schodiska A ponúkajú 1 800 m2 kancelárskych plôch. Prízemie domu bude patriť obchodným jednotkám so samostatnými vchodmi z ulice a vlastným zázemím. Dve podzemné podlažia ukrývajú 140 voľných parkovacích miest alebo uzatvorených garáží. Objekt má vlastnú kotolňu a kombinované podlahové aj radiátorové vykurovanie a vo väčšine bytov sa podľa projektovej dokumentácie počíta s klimatizáciou. V nárožných bytoch sa zabudovala batéria komínov, vďaka čomu môžu ich budúci obyvatelia umiestniť v centrálnej časti spoločenského priestoru kozub.
Zážitok

„Realizáciu tejto stavby veľmi prežívam. Zostane jedinečným zážitkom, ktorý nemožno s ničím iným porovnať. Oceňujem otvorenosť investora k tejto netradičnej koncepcii a takisto prístup dodávateľa, ktorého náročné riešenie neodradilo, ale práve naopak – podnietilo hľadať optimálne technické postupy realizácie,“ vyznáva sa na záver Klement Trizuljak.
Gaudí

Funkcia: bývanie, administratíva
Architekti a autori urbanistickej štúdie: Ing. arch Klement Trizuljak, Ing. arch. Ľubomír Mezovský
Generálny projektant: Ateliér Trizuljak
Developer: CZB Real, s. r. o. Bratislava
Generálny dodávateľ: HBH, a. s., Považská Bystrica
Celkové náklady stavby: 13,3 mil. eur (400 mil. Sk)
Statika: ST-PROJEKT, s. r. o.
Dlažby a obklady: Cersa, spol. s r. o.
Fasády: BAUMIT, spol. s r. o., RUSTIQUE, a. s.
Exteriérové omietky: BAUMIT, spol. s r. o.
Murivo: Wienerberger Slovenské tehelne, spol. s r. o.
Elektroinštalácie, meranie a regulácia: DATALAN, a. s.
Geologický prieskum a zakladanie: SOLHYDRO, spol. s r. o.
Okná: OKINEX, s. r. o.
Výťahy: Schindler výťahy a eskalátory, a. s.
Podlahové kúrenie (asi 10 bytov): Universa
Protipožiarna ochrana: PYROBATYS, a. s.
Sanita: Technologyr
Spevnené plochy a tehlový obklad: RUSTIQUE, a. s.
Podlahy: VETEX Int., s. r. o.
Vykurovanie, zdravotná technika a plynoinštalácie: TECHNOLOGYR, a. s.
Strešná konštrukcia: HBH, Styrodur
Vzduchotechnika: ATECHBAU, s. r. o.
Čas výstavby: 2007 – 2009
Zastavaná plocha: 1 600 m2
Úžitková plocha: 10 000 m2
Zeleň a ostatné plochy: 3 000 m2
Anna Salvová
Foto: Dano Veselský
Pôdorysy a rezy: Ateliér Trizuljak
Článok bol uverejnený v časopise ASB.











