Sociální bydlení v rakouském Judenburgu
Judenburg je malé středorakouské město ze 13. století, v jehož severní části vznikla nízkonákladová bytová výstavba. Jde o první čtyřpodlažní dřevostavbu v Rakousku využívající inovativní technologii včetně panelové výstavby a prefabrikovaných laminovaných balkónů.
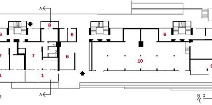
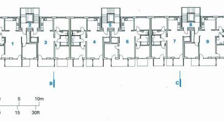
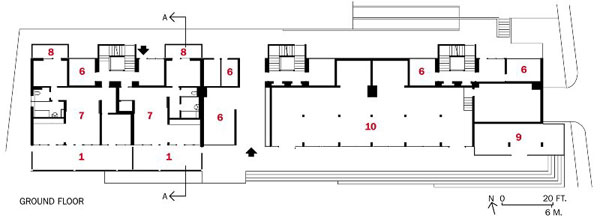
Město Judenburg a spolková krajina Štajersko sponzorovaly mezinárodní soutěž, jejímž vítězem se stal kalifornský architekt Mark Mack se svou urbanistickou studií výstavby 600 bytových jednotek a příslušné infrastruktury. Poskytuje otevřenou a flexibilní infrastrukturu, kombinuje veřejné, poloveřejné a soukromé prostory. Klientovi navrhl i čtyřpodlažní 22bytový nájemní dům s 2 až 4pokojovými byty, maloobchodními prostory v přízemí a podzemní garáží, na který se podíváme blíže. (Rakouské sociální bydlení funguje na principu státem dotovaného pronájmu, který umožňuje nájemníkům odkoupit si své byty po 10 letech.)Střecha domu je z lehkého hliníku, podepřená útlými ocelovými sloupy opřenými o budovu. Balkóny upevněné k fasádě jsou prefabrikované. Zářivé barvy, charakteristické pro Marka Macka, lze vidět na fasádních dřevěných panelech pod okny. Konstrukci podlah a stěn tvoří prefabrikované speciálně laminované panely z pevného stálezeleného dřeva – materiál nazývaný KLH vyprodukoval místní závod. Samotné stěny jsou vrstvené a provětrávané: panely KLH zevnitř, neopracovaný modřínový obklad zvenčí, tepelná izolace a vzduchová mezera mezi nimi. Schodiště jsou betonová s prefabrikovanými prvky.
Projekt: Mark Mack, Jeff Alsbrook, Roland Hagmueller, Ariel Asken; Johann Riebenbauer
Ateliér MACK Architect(s), činný od roku 1985, je uznávaný díky nápadité a elegantní architektuře, čistotě formy a barevné jednoduchosti, jasné konstrukci i úctě k tradici a prostředí. Zaměřuje se na obytné projekty v různých měřítcích, navrhuje také muzea, interiéry, restaurace, obchody a showroomy. Mark Mack studoval ve Vídni a od roku 1993 je profesorem na Fakultě architektury a urbanismu A.UD UCLA v Los Angeles, přednáší v Americe, Evropě i Asii a všude má i několik architektonických realizací. Je také publikačně činný.
Použitá literatura
1. McLeod, Virginia: Detail in Contemporary Timber Architecture. London: Laurence King, 2009, s. 100 – 103, ISBN 978-1-85669-641-8.
2. Online: http://www.advantageaustria.org/ca/events/KLH.pdf.
3. Online: http://www.markmack.com/.
TEXT: Ing. arch. Lucia Benkovičová
FOTO: Manfred Seidl
-big-image-438x292.jpg)
-big-image-438x243.jpg)
-big-image-438x292.jpg)
-big-image-438x292.jpg)
-big-image-438x292.jpg)
-big-image-438x218.jpg)
-big-image-438x240.jpg)
-big-image-438x292.jpg)
-big-image.jpg)
-big-image.jpg)
-big-image.jpg)
-big-image.jpg)
-big-image.jpg)
-big-image.jpg)
-big-image.jpg)
-big-image.jpg)
-big-image.jpg)
-big-image.jpg)
-big-image.jpg)
-big-image.jpg)
-big-image.jpg)




