Slnko aj výhľad: Bytové domy na Čermáni v Nitre
V Nitre onedlho vznikne komplex deviatich polyfunkčných bytových domov, ktoré majú obsahovať spolu 138 bytov. Investor, ktorým je bratislavská spoločnosť Doprastav Alfa, s. r. o., sa v spolupráci s architektonickým štúdiom rozhodol staviť na nekompaktnú nízkopodlažnú zástavbu deviatich bytových domov členitého tvaru, ktorá optimálne využíva danosti parcely a jej orientácie, ale tvorí aj zaujímavé a užívateľsky príjemné diferencované mestské prostredie.
Sever – juh
Územie má pozdĺžny tvar v orientácii juhovýchod – severozápad, pričom reliéf klesá severovýchodným smerom. „Najväčšou výzvou, z riešenia ktorej sa aj odvíjal základný architektonický koncept, bolo vyriešiť rozpor, že najkrajší výhľad z parcely je na severnú stranu a na južnej sa nachádza nevábivá bariéra osempodlažnej panelovej bytovej výstavby. V bytoch však bolo treba dosiahnuť dostatok denného osvetlenia, a tak sme chceli využívať aj južné slnečné svetlo,“ hovorí o koncepte bytových domov architekt Milan Csanda, autor architektonického riešenia.

Domy aj urbánny priestor
Architekt nechcel novou zástavbou vytvoriť ďalšiu vizuálnu bariéru, a preto pred kompaktnou zástavbou uprednostnil solitérne stojace domy. Obytný komplex tvorí deväť samostatných bytových domov, vďaka čomu vznikli medzi hmotami priehľady, zaujímavé nádvoria so zeleňou a terasami, vytvárajúce príjemné poloprivátne priestory. Možnosť vizuálneho kontaktu v priestore so svojím okolím je podľa architekta dôležitá vo všeobecnosti, táto parcela má však výnimočne zaujímavý výhľad na Šibeničný vrch a na Zobor, pričom veľká časť mesta je z tohto uhla pohľadu schovaná v kotline medzi nimi, a tento výhľad bolo treba zachovať a umocniť. Na úrovni partera architekt vytvoril jednoduchými architektonickými prvkami ulicu, ktorá nie je len samotnou cestou, ale má aj svoj urbánny rozmer.

Na prízemí, vo vizuálne odlišne stvárnenom parteri sú vstupy do menších obchodných a kancelárskych prevádzok. Obytné domy majú z novonavrhovanej komunikácie prístup do suterénnej garáže, kde ku každému bytu prináleží minimálne jedno parkovacie miesto. Projekt má územné rozhodnutie a v súčasnosti sa pripravuje projekt na stavebné povolenie. Komplex by sa mal začať stavať v máji 2008 a výstavba by mala byť ukončená v máji 2010. Predaj bytov začne prebiehať v marci budúceho roka.
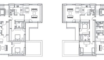
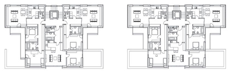
Pôdorys 2. NP dvoch vedľa seba stojacich domov
Názov projektu: Bytové domy
Miesto: Nedbalova ulica Nitra-Čermáň
Druh a účel stavby: polyfunkčné objekty najmä pre bývanie a doplnkovo pre administratívu a základnú vybavenosť
Charakter stavby: novostavba, trvalá stavba
Autor architektonického návrhu: Ing. arch. Milan Csanda, autorizovaný architekt, Nitra
Spolupráca: Ing. Oldřich Skyba, Ing. Marián Piterka
Stavebník: Doprastav Alfa, s. r. o., Bratislava
Generálny projektant: INFOS projekt, s. r. o., Bratislava a Architektonická kancelária Csanda-Piterka, v. o. s., Nitra
Celková plocha pozemku: 1,25 ha
Celková zastavaná plocha: 3 629 m2
Celkový obstavaný objem: 71 657 m3
Počet bytov v území: 140
Počet parkovacích miest v objektoch: 156
Počet parkovacích miest na teréne: 94
Začiatok výstavby: máj 2008
Ukončenie výstavby: máj 2010
Predpokladané celkové investičné náklady: 350 mil. Sk
Martina Jakušová
Vizualizácie: Quadris








