River Park približuje Bratislavu k Dunaju
Očakávaný bratislavský projekt River Park na ľavom brehu Dunaja sfinalizoval svoju podobu. Jeho výstavba sa začala v roku 2006, no v priebehu realizácie sa menil najmä v súvislosti so zmenami situácie na trhu, od čoho sa odvíjali aj požiadavky investora na celkový výsledok projektu. Pôvodný urbanisticko-architektonický koncept holandského architekta Ericka van Egeraata tak prešiel viacerými zmenami, no pôvodná myšlienka – aby projekt bol vo svojej skladbe pokračovaním mesta – zostala zachovaná. Rovnako sa dodržal aj princíp účasti viacerých architektonických ateliérov, ktorých koordináciu zastrešil ateliér BOUDA MASÁR architekti.
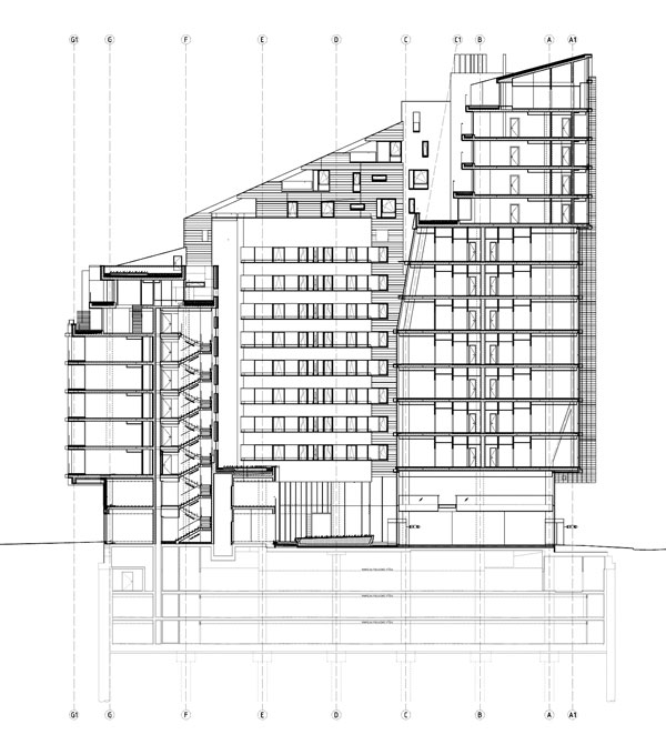
Pokračovanie mestaLeitmotívom projektu bolo vytvorenie živého a atraktívneho priestoru pri rieke, ktoré poskytne funkčnú aj tvarovú rozmanitosť, výškovú aj materiálovú primeranosť. Zámerom investora bolo vtiahnuť Dunaj do organizmu mesta a vytvoriť tak atraktívnu nábrežnú urbanisticko-architektonickú mestskú štruktúru na rieke. Výsledok ho napĺňa, pričom pokojné obytné zóny orientované na Dunaj sa striedajú s rušnými administratívnymi, obchodnými a zónami poskytujúcimi služby. Zástavba výškovo graduje smerom od západu na východ (od Lafranconi smerom k trojici vežových domov a k centru mesta) a od juhu na sever (od Dunaja k ceste a kopcu). Erick van Egeraat dal River Parku tvár, určil počty budov, rozdelenie na bloky, položil J&T River House nad rieku. Na základe tohto návrhu sa následne pripravila dokumentácia pre územné rozhodnutie.

Výslednú podobu River Parku vymedzuje z južnej strany nábrežná promenáda, zo západnej strany existujúce objekty bývalého Parku kultúry a oddychu, zo severnej strany štvorpruhová komunikácia s električkovou traťou a z východnej strany parčík, nachádzajúci sa oproti vyústeniu tunela.
„Vonkajšie priestory sú funkčne diferencované, čomu sa prispôsobuje aj architektonické riešenie jednotlivých objektov a ich vnútorné funkčno-dispozičné usporiadanie,“ približuje koncepciu Peter Bouda. „Prvú líniu tvorí promenáda na dunajskom nábreží s prevažujúcou rekreačnou funkciou mestského významu. Tomu je prispôsobené architektonické riešenie parteru s premenlivou šírkou exteriérových priestorov, bohaté využitie prvkov zelene a orientácia funkcií s prevahou bývania a voľnočasových aktivít. Pre druhú líniu sú charakteristické vnútorné dvory blokov 1 a 4, ktoré tvoria pokojnejšiu zónu, orientovanú hlavne na obyvateľov komplexu. Tieto priestory sú priečne a diagonálne prepojené na promenádu, ale aj na tretiu líniu parteru, ktorú tvorí rušná ulica.“

„Celý tvorivý tím sa usiloval o to, aby jednotlivé architektúry boli dobrými susedmi nielen navzájom, ale aj voči okolitým budovám,“ tvrdí Peter Bouda a túto sentenciu možno brať ako určujúcu pri koordinácii jednotlivých architektonických výstupov. Každý blok má svoj štýl i jazyk, ale v celku vytvárajú kompaktný obraz spoločných ambícií.
Z logiky projektu vyplýval aj zvolený konštrukčný systém so základným modulom 2,7 m, ktorý vyhovuje administratíve, ale aj hotelu, bytom i podzemným garážam. Konštrukcia je železobetónová, monolitická, pričom rozmanitosť vytvárajú vnútorné konštrukcie, farebnosť a tvaroslovie vonkajších fasád. Farebnosť zjednocuje jednotlivé bloky, neupozorňuje na seba výrazným akcentovaním, snaží sa o transparentné vnímanie celého projektu.
Naopak, významové odstupňovanie blokov sa uskutočňuje cez použité materiály na fasáde, ktoré kulminuje v ústrednom objekte – J&T River House. Fasáda jeho organického tvaru je obložená titánzinkom, ktorý efektne zdôrazňuje siluetu budovy. Súčasťou objektu sú aj veľkorozmerné zaoblené sklá, ktoré vyžadovali atypickú výrobu. K zaujímavostiam technického zabezpečenia budov patrí chladenie, pri ktorom sa v celom komplexe využíva voda z Dunaja.

Projekt reagoval na dobu v krízovom režime, a preto neostal len v pôvodne zamýšľanom návrhu. „Kríza mala dosah predovšetkým na kupujúcich a ich spôsob zmýšľania,“ uvádza Ing. Peter Remenár, finančný riaditeľ J&T REAL ESTATE. „Dopyt na rezidenčnú časť sme na jeseň 2008 podporili celoplošným znížením cien až o 40 %, čím sa predaj podarilo veľmi úspešne naštartovať, a v tom čase, keď v Bratislave nikto žiadny byt nepredával, sme v River Parku predali desiatky bytov. Dnes nám situácia vzhľadom k úspešnosti predaja bytov dovoľuje dokonca znovu zvyšovať ceny. Administratívne a obchodné priestory v parteri sa nám vzhľadom na kvalitu vyhotovenia a polohu projektu podarilo aj v čase krízy prenajať veľmi dobre.“
K dnešnému dňu je v River Parku prenajatých viac ako 85 % administratívnych a obchodných priestorov a predaných viac ako 78 % rezidencií.
Obdobie krízy ovplyvnilo v priebehu realizácie aj spôsob dokončenia rezidencií a nastavili sa nové štandardy, ktoré reagovali na zmenený postoj kupujúcich. „Klienti si teraz môžu rezidencie dotvárať podľa vlastných predstáv z holobytov alebo si od nás objednávajú plný štandard, to znamená, že im dokončujeme úplne všetko,“ hovorí Ing. Radoslav Christov, projektový manažér zo spoločnosti J&T REAL ESTATE zodpovedný za River Park. „Súčasne sa upravovali aj návrhy exteriérov – doplnili sa sochami, oddychovými schodmi k Dunaju, väčším rozsahom mestského mobiliáru a doplnila sa fontána na námestí.“
![]()  | 
![]()  | 
Zmenám sa podrobili aj nároky na obchodné priestory. Určujúcim faktorom bola obsadenosť a funkčnosť priestoru vzhľadom na vývoj na trhu. Menilo sa aj dispozičné riešenia interiéru. „Všetky zmeny sa diali na báze zlučiteľnosti dvoch zdanlivo nesúvisiacich elementov – ekonomizácie prevádzky a zároveň jej jedinečnosti. Jedinečnosť nielen z pohľadu jej estetickej vyváženosti a prepojenosti s okolím, ale najmä dôrazu na výber ponúkaného tovaru a služby vo vzťahu k zákazníkovi (návštevníkovi),“ hovorí Ing. Andrej Lang, generálny manažér spoločnosti Diversified Retail Company, a. s., ktorá spravuje obchodné priestory v River Parku.


To, čo Eurovea naznačila, River Park rozvíja. Je to ďalšie sklíčko v mozaike riešenia nábrežia na ľavom brehu Dunaja. Po dobudovaní Vydrice a Zuckermandlu sa v hlavnom meste vytvorí príjemná nábrežná promenáda.
Neprehliadnuteľnou je ambícia investora River Parku pri exteriérovom dotvorení celého komplexu. V parteri nechýba priestor na aktívny relax – so zeleňou a lavičkami, pričom zachovaná je aj cyklistická trasa a prístup k rieke. Do areálu River Parku sa v uplynulých dňoch podarilo nainštalovať aj prvé dve zo súboru plánovaných sôch. Prvou je stvárnenie mýtickej lode od významného českého výtvarníka Jaroslava Rónu. Druhou inštaláciou je artefakt od talianskeho umelca Marcella Lo Guidiceho s názvom Dalla primavera del Botticelli. Aj to je cesta k zlepšovaniu kvality kultúrneho a spoločenského života, ako aj architektúry a urbanizmu v našom hlavnom meste.
Situácia
| River Park Kempinski Hotel River Park Zastavaná plocha: 2 067 m2 Hrubá podlažná plocha: 23 326,6 m2 Úžitková podlažná plocha: 20 544 m2 Počet hotelových iziebs: 231 Podlažnosť (nadzemné podlažia): 11 Polyfunkčný objekt Blok 4 Zastavaná plocha: 2 888 m2 Zelené terasy: 176 m2 Podlažná plocha: 38 797 m2 Úžitková plocha celkom: 34 127 m2 z toho bývanie: 15 973 m2 prechodné bývaniel: 3 216 m2 administratíva: 11 916 m2 obchod a služby : 3 022 m2 Podlažnosť (nadzemné podlažia): 9–14 Generálny projektant: BOUDA MASÁR architekti, s. r. o. Spracovatelia realizačných projektov jednotlivých blokov: Polyfunkčný objekt – blok 1: A.PRO, s. r. o. Polyfunkčný objekt J&T River House : BOUDA MASÁR architekti, s. r. o. Kempinski Hotel River Park: Igor Palčo, s. r. o. Polyfunkčný objekt – blok 4: BOUDA MASÁR architekti, s. r. o. Promenáda a exteriéry: BOUDA MASÁR architekti, s. r. o. Spracovatelia realizačných projektov hlavných profesií: Statika: PRODIS plus, s. r. o. Geotechnika: SPAI spoločnosť pre projektovanie a inžiniering, s. r. o. Zdravotechnika, plyn: PROREAL-Ka, s. r. o. Vykurovanie, chladenie: KLIMA KONZULT, spol. s r. o. Elektroinštalácia: PIK FONDRK, s. r. o. Doprava: CESTPROJEKT, s. r. o. Sadové úpravy: Dendra Slovakia, s. r. o. Generálny dodávateľ: Metrostav SK, a. s. Dodávatelia – výber: Fasádae: Fenestra Sk, spol. s r. o. Vykurovanie, chladenie, VZT: Klimak, s. r. o. Meranie a regulácia, elektrická požiarna signalizácia, kamerový systém, evakuačný rozhlas, Štruktúrovaná kabeláž: Siemens, s. r. o. – Building Technologies Trafostanice: Enermont, s. r. o. Elektroinštalácia: PPA INŽINIERING, s. r. o. Rozvádzače: ABB, s. r. o. Výťahy: KONE Stabilné hasiace zariadenie: Pyronova, s. r. o. Kúpeľne Hotel Kempinski: Gerloff & Söhne GmbH & Co. KG Kúpeľne byty: Eurokera, spol. s r. o. Technológia kuchyne: Electrolux Slovakia, s. r. o.  | 
Ľudo Petránsky
Foto: Dano Veselský
Článok bol uverejnený v časopise ASB.
													









						
						
						
						
						


