Rezidencia Hron vo Zvolene
Minulý rok sme už predstavili jednu celkom vydarenú realizáciu z dielne zvolenského investora. Aj do ďalšieho projektu sa púšťa s rozumom. Ľudia chcú bývať v objektoch s neprehnanou výškou, umiernenou architektúrou, kvalitnou dispozíciou, dobrou dostupnosťou do školských zariadení či obchodov, blízko dopravných ťahov a za rozumnú cenu. Treba len vhodne vybrať lokalitu na výstavbu.
Stavebná parcela na Rezidenciu Hron je situovaná medzi Kováčskym potokom, Strážskou cestou a areálom závodu DRU Zvolen v severnej časti mesta. Veľkosť obytného súboru je pomerne ambiciózna, investor však rozplánoval výstavbu s chladnou hlavou na 4 etapy.Stavebná čiara je zadefinovaná 38 m od rušnej Strážskej cesty. Vytvorený priestor je dostatočnou rezervou na prípadné rozšírenie hlavnej cesty a zároveň na obslužnú komunikáciu s parkoviskom.
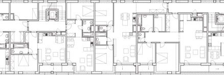
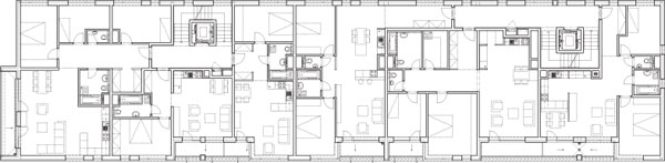
Hlavné stavebné objekty budú situované kolmo na stavebnú čiaru, spájať ich bude jednopodlažná podnož s ustúpenou fasádou oproti rímse. Vytvorí sa tak predpolie pre peších s komerčnými prevádzkami. Päťpodlažné domy (pôvodne ich bolo v projekte na stavebné povolenie sedem, ale aj tu platí, že menej je niekedy viac) sú optimálne priestorovo a rytmicky rozložené, vzniknuté komforné vnútrobloky vytvoria poloverejný priestor so zeleňou. Bonusom takéhoto usporiadania je východo-západná orientácia bytov. V prvej etape ich bude 90. Jedno- a dvojizbové budú orientované na jednu alebo dve svetové strany, troj- a štvorizbové na dve až tri svetové strany.
| Obytný súbor Rezidencia Hron – I. etapa Miesto: Strážska cesta, Zvolen Investor: Arkon, a. s. Stavebník: Rezidencia Hron, s. r. o. Hlavný architekt: PMArchitekti, s. r. o. Hlavný projektant: Staving Projekt, s. r. o. Začiatok realizácie: 2013 Počet bytových jednotiek I. etapy: 90 |
Každý z troch obytných objektov sa skladá z dvoch vertikálnych jadier so schodiskom a výťahom, ku ktorým sú jednostranne alebo obojstranne napojené pavlačové chodby so zasklením. K bytom na druhom až piatom nadzemnom podlaží patria lodžie so šírkou minimálne jednej miestnosti a hĺbkou 1,25 m. Vytvoria tak štvorpodlažný štít, ktorý tvorí charakteristický prvok celého súboru. Objekt je ukončený hlavnou rímsou opticky zníženou ustúpením piateho nadzemného podlažia na jednej strane fasády. Spoločné garáže sú prevádzkovo a aj stavebne rozdelené do dvoch samostatných celkov s celkovou kapacitou 118 parkovacích státí.
Dominantná biela farba necháva vyniknúť kompozíciu fasád so zapustenými lodžiami a voľným rastrom okenných otvorov. Plastickosť je zjemnená použitím farebných omietaných plôch na stenách a strope lodžií v troch zvolených farbách – žltej, pistáciovej zelenej a antracitovej. Nosné stĺpy a steny budú založené na železobetónových základových doskách s hrúbkou 400 a 600 mm a základových pásoch. Nosný konštrukčný systém je navrhnutý ako monolitická železobetónová konštrukcia pozostávajúca zo stĺpov a stien. Nenosné obvodové steny s hrúbkou 300 mm sa vymurujú z keramických tehál a deliace medzibytové steny sú navrhnuté ako monolitické železobetónové s hrúbkou 200 mm, oddelené od nosných konštrukcií. Vodorovné nosné konštrukcie tvoria monolitické železobetónové stropné, resp. strešné dosky.
Umiernený prístup investora je jeho esom v rukáve. Ak zrealizuje aj uvažovanú výsadbu vysokej zelene, ktorá tak vytvorí príjemnú bariéru od hlavnej cesty, získa ďalšie dobré body. Otáznikom ostávajú len plánované plochy na komerčné využitie v parteri. Ich plná alebo aspoň čiastočná dlhodobá obsadenosť obvykle ostáva len investorovým zbožným prianím. Uvidíme, ako sa s týmto realitným orieškom vysporiadajú vo Zvolene. Ako vždy, tešíme sa na realizáciu.
TEXT: Mária Nováková
Dokumentácia Arkon, a. s.
Článok bol uverejnený v časopise ASB.










