image 83631 25 v1
Galéria(7)

Revitalizácia starej Mlynice

Opustenú a chátrajúcu budovu Mlynice a Sila už čoskoro pretvoria na multifunkčné centrum. Na opustenom brownfielde zo 60. rokov minulého storočia, nachádzajúcom sa medzi Rožňavskou a Vajnorskou ulicou, chce spoločnosť ise, s. r. o., vybudovať multifunkčné centrum Mlynica, ktoré bude dýchať atmosférou veľkomesta. Výsledkom by mala byť budova s originálnym charakterom, ktorá rešpektuje a využíva maximum pôvodných konštrukcií. V hornej časti objektu by sa mali vystavať loftové byty.

01 loft
03 hala
2016 05 27 3 NP R4
2015 06 16 architektonicka studia rez
06 kancelarie
07 exterier

Inšpirácia z New Yorku

Developer chcel od začiatku čo najefektívnejšie využiť pôvodné chátrajúce objekty v bývalom areáli ľahkých stavebných hmôt, pričom návrh architektov z ateliéru gutgut reflektoval tieto predstavy. Dnes má projekt revitalizácie opustených budov Mlynice a Sila právoplatné stavebné povolenie a postupne prechádzajú rozsiahlou revitalizáciou. Na jeseň by sa mali začať práce na vonkajších plochách, a to výsadbou a úpravou existujúcej zelene a parkovacích plôch. Ambíciou developera je dokončiť projekt ešte tento rok.

Centrálny priestor Mlynice bude mať multifunkčné využitie so zameraním na spoločenské podujatia.

Centrálny priestor Mlynice bude mať multifunkčné využitie so zameraním na spoločenské podujatia.

„Dúfame, že náš projekt priláka klientov, ktorí hľadajú niečo iné ako klasické administratívne budovy alebo biznis centrá. Niektorých iste osloví aj možnosť bývať v skutočnom lofte,“ hovorí Oto Bortlík, konateľ spoločnosti ise, s. r. o. Developer zašiel za inšpiráciou až do New Yorku, kde majú so zušľachťovaním opustených budov bohaté skúsenosti. „Nepreberné množstvo budov, ktoré sme navštívili v New Yorku, nám ukázalo, ako možno efektívne prevádzkovať budovy podľa súčasných štandardov, a pritom zachovať originálny pôvab starých priemyselných stavieb,“ dopĺňa Oto Bortlík.

Práce na zveľaďovaní exteriéru by sa mali začať už na jeseň.

Práce na zveľaďovaní exteriéru by sa mali začať už na jeseň.

Multifunkčný priestor

Srdcom Mlynice bude centrálny viacúčelový priestor určený na spoločenské podujatia, výstavy, workshopy, semináre, konferencie, firemné eventy, módne prehliadky a pod. Výška tohto priestoru je členitá, od 4,5 do 11 metrov, a jej súčasťou sú pôvodné masívne železobetónové stĺpy a stropy. Najzaujímavejšou konštrukciou sú tu výustky bývalých zásobníkov, ktoré pokračujú do horných úrovní objektu. Rozloha tohto priestoru je 710 m2 vrátane prevádzkových priestorov a hygienického zázemia. Vyššie podlažia budú patriť biznis potrebám spoločností i jednotlivcov.

Administratívna časť budovy Mlynice ponúkne viacero typov kancelárskych priestorov.

Administratívna časť budovy Mlynice ponúkne viacero typov kancelárskych priestorov.

Táto administratívna časť ponúkne na horných podlažiach viacero typov kancelárskych priestorov. Rozloha jednotlivých samostatných kancelárskych blokov sa pohybuje od 42 m2 až do 277m2 a tieto priestory sú prístupné zo vzdušného átria. Súčasťou átriového priestoru sú otvorené veľkoplošné kancelárie, ktoré sa budú prevádzkovať coworkingovým systémom aj s hot desk zónou.

Šesť loftov s rozhľahlou terasou ponúkne originálne bývanie.

Šesť loftov s rozhľahlou terasou ponúkne originálne bývanie.

Atraktívne bývanie v lofte

Mlynica ponúkne zaujímavé bývanie v podobe šiestich loftov s veľkorysou svetlou výškou a viacúrovňovým vertikálnym členením. Rozloha loftov je od 69 m2 až do 103 m2. Ku každému loftu bude patriť aj veľká terasa s výhľadom na mesto a široké okolie. Majitelia bytov si budú môcť užívať svoje súkromie a zároveň budú súčasťou komunity. Projekt Mlynica chce byť platformou komunitného života, krea­tívnej práce, ale aj miestom na priateľské stretnutia. Charakter budovy umožňuje nevšedné, ale flexibilné usporiadanie priestoru. Sám developer prizýva budúcich užívateľov Mlynice, aby sa zapojili do procesu návrhu budúceho využitia projektu.

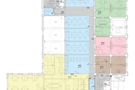
Pôdorys 3. nadzemného podlažia

Pôdorys 3. nadzemného podlažia

Vertikálny rez budovou Mlynice

Vertikálny rez budovou Mlynice

REVITALIZÁCIA STAREJ MLYNICE A SILA
Miesto Bratislava, časť Nové Mesto
Stav projektu v realizácii
Investor ise, s. r. o.
Architekti GutGut, s. r. o.
Realitný konzultant IURIS, s. r. o.
Začiatok a koniec revitalizácie 4/2016 – 12/2016
Úžitková plocha 3 800 m2

PODKLADY: ISE
REDAKČNÁ ÚPRAVA: ĽUDOVÍT PETRÁNSKY
VIZUALIZÁCIE, DOKUMENTÁCIA: ise

Článok bol uverejnený v časopise ASB.