Projektovanie s BIM
Architekti Marek Rudohradský a Peter Chaban navrhli bytový dom v Devínskej Novej Vsi so zreteľom na pomerne komplikované vstupné limity v podobe zložitého terénu či blízkej komunikácie. Pozornosť si zaslúži nielen výsledný projekt, ale aj proces spracovania projektovej dokumentácie.
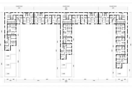
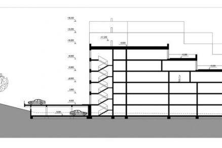
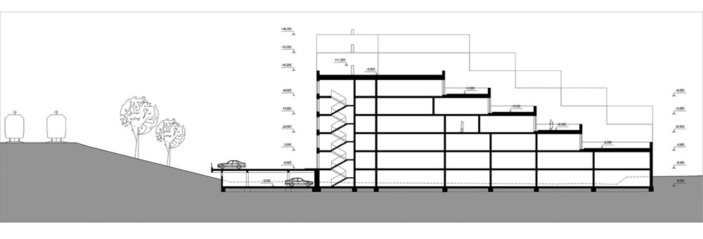
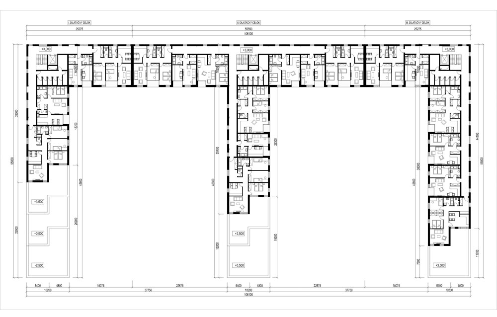
Morfológia terénu, výhľady a prítomnosť železnice mali hlavný vplyv na formovanie hmoty aj na samotné dispozičné riešenie bytového domu. Zámerom architektonického návrhu je kultivovať jestvujúce prostredie a vytvárať plnohodnotné bývanie prostriedkami súčasnej architektúry vhodne zapadajúcej do daného prostredia. Bytový dom má terasovitý charakter v tvare písmena E a terasy sú orientované na južnú stranu, smerom do chránenej prírodnej rezervácie, čo umožnilo bohaté preslnenie bytov aj na najnižších podlažiach. Členitý tvar spolu s uskakovaním terás poskytuje rôznorodé množstvo typov a veľkostí bytových jednotiek. Štartovacie byty pre mladé rodiny aj byty s vyšším štandardom s terasami budú mať z južnej strany prekrásny výhľad na národnú prírodnú rezerváciu a zo severnej strany je hranica pozemku tvorená železničnou traťou Bratislava – Brno.Túto výzvu sa architekti rozhodli riešiť pavlačou obopínajúcou budovu po celom vonkajšom obvode smerom k železničnej trati, čím vytvorili protihlukovú bariéru. Vznikli prevažne byty orientované do dvoch chránených vnútorných nádvorí slúžiacich obyvateľom bytového domu. Výškové usporiadanie terénu sa na bytovom dome odrazilo tromi dilatačnými celkami stúpajúcimi vždy o výšku jedného podlažia. Jednotlivé celky majú vlastné vstupy a technické zázemie, čo im umožňuje samostatné fungovanie. Stosedemnásť jedno- až štvorizbových bytov je usporiadaných do piatich nadzemných a jedného čiastočne zapusteného podlažia tvoreného bytmi s predzáhradkami orientovanými do vnútorných nádvorí.
Využitie BIM v projekte
Na projekt Bytový dom BD2 bol použitý softvér od spoločnosti Autodesk a z ich širokého portfólia sa využil softvér AutoCAD, Autodesk Revit Architecture a Autodesk 3ds Max Design. Technológia Building Information Modeling (BIM) od spoločnosti Autodesk umožnila skrátiť čas projektovania stavby a následného získania výsledkov. Revit umožňuje jednoducho a rýchlo vytvárať návrh rovno ako 3D model, i keď sa tento 3D model dá robiť aj klasicky v 2D pohľade (keďže Revit je poprepájaný a vytvárať 3D model sa dá aj v 2D pohľadoch). Z 3D BIM modelu sú následne odvodené stále aktuálne pôdorysy, rezy, pohľady a aj detaily, čím sa znižuje aj chybovosť dokumentácie a urýchľuje sa projekcia. V prípade zmeny stĺpov, nosníkov, stien, okien či iných prvkov sa automaticky upravia aj špecifikácie, tabuľky výkazov (okien, dverí, debnenia, materiálov, zariaďovacích predmetov, TZB prvkov, výstuže…) a aj legendy a výkresy. Revit týmto umožnil aj rýchlejšie reagovať na zmeny požiadaviek investora.
Následne sa vytvorený 3D BIM model dá využiť na kontrolu kolízií ďalšími profesiami a ako vstup na analýzu statika. Výhodou je aj to, že statik nemusí znovu robiť 3D model budovy, ale môže použiť už vytvorený model z Revitu, pričom si ho v prípade potreby môže upraviť. Zmeny, ktoré urobí pomocou BIM softvéru, sa zobrazia architektom a aj TZB profesiám v Revite. V prípade potreby je pomocou ďalšieho programu Autodesk Navisworks možné urobiť aj 5D vizualizáciu, čiže nárast stavby v čase spolu s nárastom jej ceny. Keďže nie je vhodné vytvárať všetko v 3D, tak sa potrebné 2D detaily vytvorili pomocou Autodesk AutoCAD, i keď sa pritom už strácajú výhody paramatrickosti a 3D BIM modelu.
Online render
Architekti sa zhodli aj na ďalšej časovej úspore. Keďže Autodesk Revit umožňuje renderovanie online, výsledok je z pravidla hotový do niekoľkých minút a tým sa eliminuje blokovanie počítača. Keďže 3D BIM model bol vytvorený priamo v Revite, nebolo treba pre detailný foto realistický render modelovať 3D model v 3ds Max Design (ktorý umožňuje napr. aj analýzy osvetlenia), ale stačilo domodelovať iba detaily.“ Hotový 3D model sa dá využiť aj na simulácie prúdenia dymu v prípade požiaru v budove či na energetickú komparatívnu analýzu, čo je v dnešnej dobe ďalšia výhoda a v budúcnosti sa stane pravdepodobne nutnosťou. Kompletný 3D BIM model stavby, alebo aj zariadeného bytu si zákazník môže pozrieť s bezplatnou softvérovou aplikáciou vo svojom počítači, na internete alebo v tablete a smartfóne.
Tandem Rudohradský-Chaban vedú svoj ateliér od roku 2007. Veľkú pozornosť venujú kvalitnej príprave projektu. Je to podľa nich cesta k úspešnej realizácii a v neposlednom rade aj k spokojnosti klienta. Navyše, ich minuloročné ocenenie CE.ZA.AR za interiér klubu Kilowatt v Trnave hovorí za všetko. K aktuálnemu projektu v Devínskej Novej Vsi dodali: „BIM softvér od spoločnosti Autodesk nám umožnil rýchlejšie sa dopracovať k výsledkom a dopomohol aj k inému pohľadu na bytový dom v Devínskej Novej Vsi.“
| BYTOVÝ DOM BD2 Miesto: Bratislava, Devínska Nová Ves, Pri Glavici Autori projektu: a:rch rudohradsky chaban, s.r.o. Vizualizácie: a:rch rudohradsky chaban, M & P, spol. s r.o. Použitý softvér: Autodesk Revit Architecture, Autodesk AutoCAD, Autodesk 3ds Max Design Zastavaná plocha: 4 438 m2 Počet bytov: 117 |
TEXT: Ing. arch. Martin Svoboda, (a:rch rudohradsky chaban), Ing. Alfréd Takáč, Mgr. art. Miroslav Garaj (M&P spol. s r.o.),
Dokumentácia: a:rch rudohradsky chaban
Článok bol uverejnený v časopise ASB.














