Polyfunkčný komplex TRIANGEL
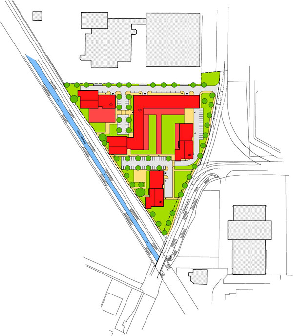
Názov Triangel sa odvíja od parcely v tvare trojuholníka. Je to sympatické miesto pod masívom Malých Karpát.
V návrhu sú štyri samostatne stojace objekty vo dvoch výškových úrovniach: 6-podlažné lineárne a 9-podlažné bodové hmoty. Výsledkom je optimálne namiešaná kombinácia občianskej vybavenosti a bytov rôznych veľkostí. Striedma biela architektúra kladie dôraz na kontakt s prírodnými prvkami okolia – lodžie, terasy a predzáhradky.Koncepcia funkčnej skladby súboru je postavená na princípe vertikálneho členenia štruktúry s tromi horizontálnymi funkčnými vrstvami. Suterénna vrstva plní technicko-skladovú a garážovú funkciu. Úroveň parteru plní funkciu občianskej vybavenosti (obchody, služby). Horné podlažia plnia funkciu bývania, resp. prechodného ubytovania. Z hľadiska objektovej skladby v objektoch A, B a D sú situované byty, objekt C obsahuje prechodné ubytovanie a ubytovanie personálu. Koncepcia hmotno-priestorovej skladby je postavená na vzájomnej väzbe horizontálnej jednopodlažnej podnože (západná časť súboru), horizontálnej blokovej skladby 4- až 6-podlažných objektov a vertikálnej sústavy štyroch 8- až 9-podlažných bodových objektov, ktoré uplatňujú trsový a rytmický kompozičný princíp. Rozloženie hmotnej skladby sleduje vytvorenie úmernej vnútornej priestorovej sústavy, opticky dotvorenej vysokou zeleňou. Špecifikom priestorovej sústavy sú dva verejné spoločenské priestory – námestia, v ktorých vyvrchoľuje vnútorná sústava peších plôch a chodníkov a ktoré súčasne tvoria nástupy do vnútorných obchodných uličiek (pasáží).
| Miesto: Pri Šajbách, Bratislava-Rača Autori: Andrej Alexy, Tibor Alexy, Marek Kopp / ALEXY&ALEXY, s.r.o. Spolupráca: Štefan Rafanides, Zuzana Švikruhová, Ivan Senko Investor: PK TRIANGEL, s. r. o. Projekt: 2007 – 2008 Realizácia: vo výstavbe Celková úžitková plocha: 28 023 m2 Celkový počet osôb v komplexe: 600 Celkový počet parkovacích miest: 340 Celkový bytov: 286 |
Pôdorys – typické podlažie
Situácia

















