Polyfunkčný dom Augustus
Na križovatke bratislavskej Ulice 29. augusta a Mickiewiczovej ulice vyrástol na mieste bývalej prieluky sedempodlažný polyfunkčný dom s bytmi a s komerčnými priestormi, ktorého názov odkazuje na starorímskeho imperátora Augusta. Nedávno bol polyfunkčný dom uvedený na trh, aby plnohodnotne vstúpil do organizmu mesta.
Kedysi tam bol voľný pozemok využívaný najmä ako parkovisko v susedstve so staršou administratívnou budovou, ktorá už nespĺňala požiadavky súčasnosti. Nebol to jednoduchý pozemok, ale nachádzal sa na hranici pešej zóny v centre mesta, čo zvyšovalo jeho atraktívnosť. „Prišli sme za investorom s myšlienkou jeho využitia na projekt, v ktorom by prevažovali bytové priestory,“ hovorí pre ASB projektový manažér Ing. Peter Pisko. „Čiastočne to v podstate aj „nahralo“ všetkým zúčastneným na strane investora a partnerov, pretože bol záujem riešiť bytovú otázku.
Po oslovení architekta a inžinieringu prišiel na rad územný plán, kde sme vnímali dve také zásadné požiadavky: z uličnej čiary a zastavanosti v celej dĺžke ulice pri danom koeficiente zastavanosti vzišiel obrys budúceho domu, obmedzenie výškovej zastavanosti na 21 m zas prinieslo členenie na podlažia a podzemie. Začal sa štandardný, hoci trochu zdĺhavý, ale nakoniec úspešný proces s vydarenou realizáciou. Všetci zúčastnení boli maximálne ústretoví, ochotní a vložili sa do projektu na tisíc percent.“ Aký je teda výsledok?
Pohľad na objekt z južnej strany, v popredí je vchod do podzemnej garáže.
Na trojuholníkovej parcele
„Výstavba mala svoje špecifiká, či už išlo o realizáciu dvoch podzemných podlaží určených hlavne na parkovanie, alebo o komplikované pomery v rámci staveniska, zásobovanie tejto stavby v centre mesta, okolitú zástavbu, trolejové vedenia, prekládky podzemných sietí,“ približuje pre ASB Oto Bortlík, konateľ firmy ise, s. r. o., ktorá bola generálnym dodávateľom. „Náročná bola aj demontáž vežového žeriava a vjazd ťažkého autožeriava do dvora práve na tento účel, čo si vyžadovalo statické úpravy a podchytenie betónových stropov. Stavba bola odovzdaná v predstihu oproti pôvodne plánovanému termínu, čo je výsledok dobrej práce našich pracovníkov a spolupracujúcich firiem. Na stavbe bytového domu Augustus oceňujeme aj výbornú spoluprácu s investorom a projektantom tohto objektu.“
Situácia.
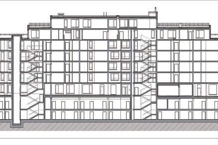
Polyfunkčný dom vyrástol na trojuholníkovej parcele, pričom má pôdorysný tvar nepravidelného lichobežníka, ktorý vypĺňa časť trojuholníkovej parcely ležiacej pri ulici tak, aby vyhovel urbanisticko-priestorovým danostiam parcely a svetlotechnickým požiadavkám. Augustus je radový sekciový dom, vypĺňajúci prieluku na ulici. V každej sekcii je vertikálne komunikačné jadro so schodiskom a s výťahom. Dom má sedem nadzemných podlaží a dve podzemné podlažia. Lineárny uličný fasádny front domu Augustus je delený dvoma mierne vystúpenými rizalitmi, čím nadväzuje na priľahlé prostredie pamiatkovej zóny, tvorené tradičnou zástavbou s charakteristickou parceláciou. Použitím rôznych veľkostí okenných otvorov na fasádach sa autori architektúry snažili o individuálny výraz tohto objektu.
Rôzne veľkosti okien na fasáde určujú individuálny výraz objektu.
Podlažia s rozmanitými dispozíciami
V podzemných podlažiach sa nachádzajú parkovacie miesta, technické zázemie a pivničné kobky. Na prvom nadzemnom podlaží sú vstupné priestory, priestory občianskej vybavenosti s plochou takmer 280 m2 a priestor na domový odpad. Na ďalších nadzemných podlažiach sú byty s výmerou od 49 do 115 m2. Je tam 25 dvojizbových, 10 trojizových a dva štvorizbové byty. Z toho sú tri mezonety na najvyšších podlažiach. Každý byt má balkón, lodžiu alebo terasu. Najväčšie byty na šiestom a siedmom podlaží boli odovzdané ako holobyty.
Pohľad na dispozíciu bytu, výmera bytov sa pohybuje od 49 do 115 štvorcových metrov.
Objekt je založený na železobetónovej doske. Podzemné podlažia sú zrealizované z vodostavebného betónu systémom tzv. bielej vane. Zvislý nosný systém objektu je tvorený železobetónovými monolitickými obvodovými a stredovými stenami a piliermi. Obvodové konštrukcie sú navrhnuté ako monolitické železobetónové steny. Nosné železobetónové steny oddeľujúce jednotlivé byty zároveň plnia funkciu akustickej konštrukcie. Vodorovné nosné konštrukcie objektu sú tvorené železobetónovými monolitickými obojsmerne nosnými doskami.
Každý byt má balkón, lodžiu alebo terasu.
Fasáda objektu je riešená kontaktným zatepľovacím systémom s povrchovou úpravou z tenkovrstvovej silikátovej omietky a z tenkostenného veľkoformátového gresového obkladu, ktorý je použitý v časti prvého nadzemného podlažia. Parkovanie áut je zabezpečené na teréne a v dvoch podzemných podlažiach. Počet parkovacích miest v garážach je 49 a počet parkovacích miest na teréne je sedem. Súčasťou pozemku je aj parkovo upravená zeleň, ktorá vo dvore tvorí pokojnú zónu pre obyvateľov domu.
Pohľad do vnútrobloku.
POLYFUNKČNÝ DOM AUGUSTUS
Miesto: Ulica 29. augusta, Bratislava
Investor: 29A, s. r. o.
Generálny zhotoviteľ: ise, s. r. o.
Architekti: Ing. arch. Vladimír Zigo, Ing. arch. Marusia Zigová, AZ ateliér, s. r. o.
Celková podlahová plocha: 6 460 m2 (vrátane suterénu)
Úžitková plocha nadzemnej časti: 3 100 m2
Počet bytov: 37 (+ 3 komerčné priestory)
Počet parkovacích miest: 56
Predaj a marketing: AF REALITY II, a. s., MP RENTAL, s. r. o.
Realizácia výstavby: 03/2016 – 01/2018
Projektový manažment: Ing. Peter Pisko MP RENTAL, s.r. o.
Pozdĺžny rez.
FOTO: MARTIN MATULA
DOKUMENTÁCIA: AZ ATELIÉR
Článok bol uverejnený v časopise ASB 4/2018.


















