Polyfunkčné centrum Nová Mýtna
Rezidenčný projekt Nová Mýtna je v podstate dieťa predkrízového stavebného boomu. Prvé impulzy na výstavbu na pozemku medzi ulicami Mýtnou a Radlinského v Bratislave vyšli od rakúskeho investora už v roku 2004, zmena územného plánu však pôvodný zámer ovplyvnila tak, že projekt je dnes na nerozoznanie odlišný – v pozitívnom slova zmysle. Do lokality chce Nová Mýtna priniesť kvalitné bývanie a vrátiť do nej život, ktorý sa pred časom vytratil.
Beh na dlhú trať s prekážkami„Investorovým zámerom v roku 2004 bola podobná bytová výstavba, akú realizoval v Rakúsku,“ spomína si na začiatky projektu Karolina Bittererová, konateľka investičnej spoločnosti Team Nový Dom, s. r. o. Pôvodný projekt podľa jej slov obsahoval 23-podlažný internát a 15-podlažný bytový dom na dvojpodlažnej podnoži s funkciou veľkej nákupnej pasáže a zázemia pre byty aj internát. „Mal tu byť bazén, športoviská, reštaurácie, kaviarne a podobne,“ hovorí konateľka.
Dnes je však všetko inak a projekt za sedem rokov prekonal dlhú a pomerne zložitú cestu plnú zmien.
Odznova a nanovo
„Po nadobudnutí účinnosti Územného plánu Bratislavy v septembri 2007 sme z pôvodných 23 a 15 podlaží skočili na 7, s indexom zastavanosti 0,34. V roku 2008, po štyroch rokoch, sme tu mali úplne nový projekt, s ktorým sme, samozrejme, museli absolvovať nové územné konanie,“ hovorí konateľka spoločnosti Team Nový Dom. Autorom tohto nového projektu boli opäť architekti z ateliéru Machanec & Partner, rakúskej architektonickej kancelárie, ktorí si k projektu prizvali mladých slovenských architektov Jaroslava Tkáča a Rudolfa Benčeka.
V roku 2009 projekt získal územné rozhodnutie a v roku 2010 aj stavebné povolenie pre podzemnú aj nadzemnú časť a v októbri 2010 sa konečne začala výstavba.
V jednoduchosti je krása
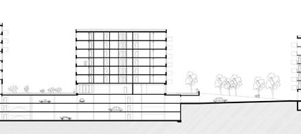
Dalo by sa povedať, že práve týmto heslom sa riadili architekti pri navrhovaní fasád troch častí, ktoré nakoniec vytvoria projekt. „Ide o tri biele časti, dve budovy sú uličné, jedna sa nachádza vo vnútrobloku,“ opisuje architekt Rudolf Benček rezidenčný projekt Nová Mýtna. Fasády sú omietnuté na bielo a do ulíc takmer sparťanské – balkóny prerušujúce jednoduchosť sú orientované len do dvora. Je to logické, keďže obe ulice lemujúce pozemok sú rušné. Do ulice sú preto orientované len terasy na najvyšších poschodiach, kam ruch nedosiahne. Všetky tri objekty sú podobné, no nie totožné – líšia sa najmä rastrom okien, ktoré na fasádach vytvárajú „textúru“ typickú pre bytový dom.
„Stavbu tvorí monolitický železobetónový skelet, ktorý je doplnený keramickým murivom,“ upresňuje konštrukčný detail architekt Jaroslav Tkáč.
| Nová Mýtna Mieston: Bratislava I. Využitie: Polyfunkčné centrum Autor/Autori: Machanec&Partner Architekt/Architekti: Ing. arch. Zdeněk Machanec, Ing. arch. Jaroslav Tkáč, Ing. arch. Rudolf Benček Investor: Team Nový Dom, s. r. o. Developer: Team Nový Dom, s. r. o. Stavebné povolenie: 2010 Začiatok výstavby: 10/2010 Ukončenie výstavby: 5/2012 Celkové náklady stavby: 20 mil. € Plocha parcely: 4 632 m2 Zastavaná plocha: 1 415 m2 Zeleň a ostatné plochy: 3 217 m2 Počet nadzemných podlaží: 7 Počet podzemných podlaží: 3 Počet podzemných parkovacích miest: 188 Generálny dodávateľ: ZIPP Bratislava, spol. s r. o. |
Byty aj bytíky
Všetky tri objekty majú sedem nadzemných podlaží, pričom posledné, siedme podlažie z Mýtnej a Radlinského ulice je uskočené a nachádzajú sa na ňom aj spomínané terasy. „Spolu sa v komplexe nachádza 78 bytov, pričom ide o 28 jednoizbových, 9 dvojizbových, 27 trojizbových, 11 štvorizbových, jeden ateliér a o 2 päťizbové mezonety,“ upresňuje Karolina Bittererová a dodáva, že mezonetové byty majú výmeru približne 190 a 206 m2.
„V objekte na Mýtnej ulici sa nachádzajú tri poschodia administratívnych priestorov, je tu preto aj umiestnená recepcia, ktorá však má za úlohu chrániť celý objekt,“ opisuje architekt Tkáč. Dodáva, že vo vnútornom objekte sa nachádza 36 bytov a v objekte z Radlinského ich je 30. V parteroch sú obchodné priestory. „S predajom bytov začneme v lete a ceny ešte prezrádzať nebudeme. Záujemcov o prenájom obchodných priestorov však už evidujeme. Samozrejme sa budeme snažiť usporiadať mozaiku budúcich užívateľov obchodných priestorov tak, aby z toho mali prospech obyvatelia komplexu aj okolia,“ hovorí konateľka investičnej spoločnosti. Objekt bude 24 hodín monitorovaný kamerovým systémom sledovaným z recepcie. Garáže na troch podzemných podlažiach by mali poskytnúť 188 parkovacích miest, z ktorých by niekoľko malo slúžiť aj ľuďom z okolia, ich počet sa však ešte neustálil.
Nenápadné sympatie
Pozemok bude po ukončení výstavby priechodný. „Vnútorná zastavanosť je približne 30 percent plochy, takže vo vnútrobloku nám vznikne park, ktorý bude tiež prístupný verejnosti,“ konštatuje architekt Benček a jeho kolega Tkáč dodáva, že sprístupnením parku a detského ihriska verejnosti sa vnútroblok vyhne izolácii, ktorá má v niektorých prípadoch za následok jeho spustnutie. „Bytový dom je určený pre ľudí, ktorí by sa radi vrátili do centra a hľadajú menší byt – s vedomím, že jeho cenu určí aj lokalita. Nájsť slušný jednoizbový, ale aj štvorizbový byt v centre mesta je problém, práve preto sme sa do veľkej miery zamerali na tento typ bytov,“ dodáva na záver Karolina Bittererová.
Situácia
Tamara Leontievová
Vizualizácie a nákresy: Team Nový Dom
Článok bol uverejnený v časopise ASB.
View Nová Mýtna in a larger map











