Polyfunčný dom PROXIMA 2
Južná časť banskobystrickej centrálnej mestskej zóny sa v posledných rokoch výrazne zmenila. V priebehu krátkeho obdobia tu vyrástli viaceré objekty. Jedným z nich je aj polyfunkčný dom Proxima 2, ktorý rozšíril výmeru komerčných priestorov centra mesta o takmer 1 200 m2. Stavba sa nachádza v tesnom kontakte s mestskou pamiatkovou rezerváciou – výhľad na historické jadro môžu oceniť najmä majitelia bytov na vyšších podlažiach.
Na pozemku kedysi stála zástavba nižších obytných domov. „V dotyku s bývalou stavebnou prielukou bez špecifického využitia preteká regulovaný potok Bystrica, ktorý sme sa snažili zapojiť do mestského prostredia,“ hovorí spoluautor návrhu, Marián Šovčík. Budova spolu s viacerými novostavbami ohraničuje a vytvára malé námestie, ústiace do pešej zóny. Tvar zástavby striktne vymedzuje uličná čiara a úzky pozemok medzi ulicou J. Kráľa a vodným tokom.
Architektonická koncepcia
Architektúra objektu vychádza z princípu kontrastu. „Zasklený komerčný parter vizuálne prepája dva rôzne urbánne priestory – ulicu a námestie,“ vysvetľuje architekt. V protiklade k transparentnému obchodnému parteru stojí intímna obytná časť, vyjadrená plnou štruktúrou, a to najmä zo strany ulice. Konzervatívny tvar fasády strieda smerom k námestiu dynamickejší koncept. Jeho tektoniku určuje hĺbka loggií, balkónov ako aj terasy na ustupujúcich podlažiach.
Napriek pôvodnému návrhu sa nie všetko realizovalo podľa predstáv autorov. Podľa Mariána Šovčíka najväčším problémom je umiestnenie reklamných plôch mimo miesta ich pôvodného návrhu. „Intenzívna farba, veľkosť a osadenie reklám na zasklených plochách nerešpektuje pôvodný zámer vytvoriť usporiadaný – transparentný ráz spodnej časti budovy,“ dodáva architekt.

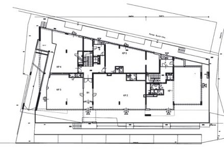
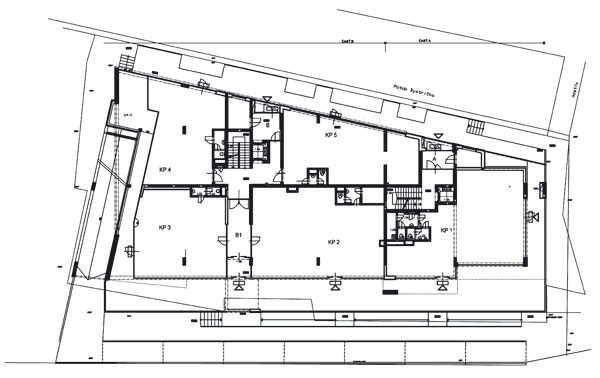
Pozdĺžna os polyfunkčného domu je orientovaná v smere sever – juh. Do budovy vedú dva vstupy. Podlažia vrátane suterénu prepájajú schodiská a výťahy. Objekt má 5 nadzemných podlaží, šieste je ustupujúce. V suteréne je garáž s 26 parkovacími miestami, pivnice a CO kryt pre 140 ľudí. Do garáže sa vchádza zo západnej strany vonkajšou šikmou krytou rampou, napojenou na ulicu. Okrem vnútorného parkovania má budova k dispozícii 6 vonkajších parkovacích miest. Prvé dve podlažia slúžia ako prenajímateľná obchodná plocha. Východná časť prízemia dotvára promenádu okolo potoka terasou, ktorú možno využiť na posedenie – priestor je vizuálne prepojený s vonkajším okolím. Prechod od budovy k námestiu umožňujú pešie mosty ponad potok. Od tretieho nadzemného podlažia má dom obytný charakter.
Celkovo sa v tomto polyfunkčnom objekte nachádza 25 bytových jednotiek s východo-západnou orientáciou, v rôznej veľkostnej štruktúre – od 1-izbových až po 4-izbové. Svetová orientácia a funkčné riešenie stavby umožňuje vizuálne prepojenie viacerých bytov s historickým jadrom Banskej Bystrice. Súčasťou každého bytu je terasa, balkón alebo lodžia. Na najvyššom podlaží sa okrem bytov s priestrannými terasami nachádza aj kotolňa.
Konštrukčné riešenie
Pre vysokú hladinu spodnej vody a blízkosť vodného toku je stavba mierne zdvihnutá nad pôvodný terén. Objekt je založený na železobetónovej doske osadenej v betónovom podklade v štrkovom lôžku. Výškové rozdiely medzi ulicou a vstupmi do budovy riešia rampy a schody. Nosný systém objektu tvoria monolitické železobetónové steny s osovými vzdialenosťami 7,2 a 7,5 m. Objekt má plochú strechu. Fasády sú zateplené, upravené klasickou omietkou.
Situácia polyfunkčného domu
Polyfunkčný dom PROXIMA 2
Miesto: Banská Bystrica

Investor: PROXIMA REAL, s. r. o.
Zhotoviteľ projektovej dokumentácie: AMŠ Partners, spol s r. o.
Autori projektu: Ing. arch. Marian Šovčík, CSc. Ing. arch. Pavel Záriš, Ing. arch. Juraj Kalus
Vedúci projektant: Ing. arch. Marian Šovčík, CSc.
Zodpovedný projektant: Ing. Ida Gregorová
Zastavaná plocha: 1 036,59 m2
Obostavaný prostor: 16 680,20 m3
Úžitková plocha: 4 240,91 m2
Celková podlažná plocha: 4884,28 m2
Úžitková plocha komerčných priestorov: 1 152,75 m2
Úžitková plocha bytovej časti: 2 344,11 m2
Úžitková plocha garáží: 744,05 m2
Počet podzemných podlaží: 1
Počet nadzemných podlaží: 5
Počet bytov: 25
Počet 1-izbových bytov: 5
Počet 2-izbových bytov: 8
Počet 3-izbových bytov: 10
Počet 4-izbových bytov: 2
Počet komerčných priestorov: 11
Počet garážových státí: 26
Počet vonkajších garážových státí: 6
Začatie stavebných prác: 2006
Ukončenie stavebných prác: 2008
Generálny zhotoviteľ: TRISTAV STAVBY, s. r. o., Banská Bystrica
Subdodávatelia:
Zemné práce: BIELOSTAV
Železobetónové konštrukcie: SLOVBAU BANSKÁ BYSTRICA, spol. s r. o.
Vzduchotechnika: KLIMA KOMPLET, s. r. o.
Strechy: AQUAIZOL, s. r. o.
Výťahy: Thyssen Krupp
Dvere: STP COMEX, s. r. o., Veľký Krtíš
Osvetlenie: MONT ELEKTRO, a. s.
Miriam Turancová
Foto: Dano Veselský
Grafická časť: AMŠ Partners
Článok bol uverejnený v časopise ASB.











