Ohľaduplný solitér
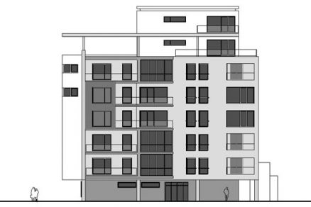
Niektorí investori aj architekti sa pri svojich stavbách snažia postaviť si nielen budovu, ale aj pomník. Naše mestá sa často aj preto stávajú nesúrodým zoskupením solitérov, kde sa jednotlivé investorské počiny prekrikujú v podivuhodnej kakofónii svojimi dočasne modernými architektonickými bonmotmi. Sú však miesta, ktoré akcent jednoducho potrebujú. Takým bola aj parcela na nároží ulíc Komenského a Fándlyho v širšom centre Žiliny. Nedávno tu vznikol polyfunkčný bytový dom, ktorý je decentný a ohľaduplný k okolitej zástavbe, ale zároveň tvorí akcent celého priestoru mestskej križovatky. Dom určil charakter nárožia v blízkosti obľúbenej pešej zóny „Bulvár“ a obohacuje priehľady z oboch ulíc. Jeho reč nie je výkrikom, ale sviežim doplnením súvislého príbehu dvoch ulíc.
Ďalšia vec, ktorá je na tomto dome zaujímavá, je to, že sa investor s architektom rozhodli nezastavať svoj pozemok na maximum. Pohrali sa s hmotou tak, aby vznikla kompozícia hodná exponovanej nárožnej parcely, ale zároveň aj zachovávajúca kompaktnosť existujúcej mestskej zástavby. Pri prechádzaní okolo domu diváka prekvapí, že za plnou hmotou jednej časti sa mu otvorí voľnejší priestor zo strany vnútrobloku, alebo že sa horizontalita jednej fasády za rohom zmení na stenu s vertikálnym rastrom, plná stena na štruktúrovanú a podobne. Nábojom tejto architektúry, okolo ktorej vnímavý človek neprejde bez záujmu, je pravdepodobne práve hľadanie rovnováhy medzi stvárnením budovy ako takmer sochársky poňatého solitéru a ohľaduplnosti k zástavbe okolo neho.
Hmotovo-architektonické riešenie

Za touto nižšou časťou, ktorá je zo strany križovatky najviac vnímaná, sa nachádza vyššia, 8-podlažná hmota. Jej fasáda teda nie je zo strany križovatky dominantná. Má takmer štvorcový pôdorys tvaru a obvodové steny ohraničujú na každom podlaží jednu bytovú jednotku. Dve najvyššie podlažia prevyšujú nižšiu časť objektu, vďaka čomu vznikla rozľahlá juhozápadná terasa prístupná z bytu na 7. NP.
Nad nižšou hmotou je navrhnutá horizontálna línia kovovej pergoly, ktorá výškovo prepája obe časti a odľahčuje celkovú kompozíciu. Všetky strechy sú ploché.
Funkčno-dispozičné riešenie
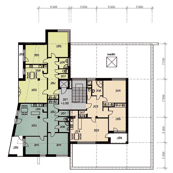
Komunikačné jadro domu je v centre dispozície tak, že zasahuje do oboch spomínaných kompozičných hmôt a je priamo prístupné aj z garáží. Hlavný vstup do bytovej časti je od Komenského ulice. Zo vstupnej haly je priamy vstup do kobiek s úložným priestorom a do miestnosti pre bicykle a kočíky. Na 1. NP je z Fándlyho ulice prístupný aj priestor obchodnej jednotky s rozlohou 21 m² s vlastným sociálnym a skladovým zázemím. Z južnej strany 1. NP sa nachádzajú priestory technického zázemia objektu s výmenníkovou stanicou.
Od 2. NP sú bytové jednotky. Časť bytov tvoria kompletne zariadené, luxusné nájomné byty. Prvých päť podlaží je takmer identických, na každom sú tri byty (dva z nich sú v nižšej časti lemujúcej Komenského ulicu). Všetky byty sú trojizbové a ich plocha je približne 100 m². Každý byt má veľkú obývaciu miestnosť prepojenú s kuchyňou a jedálňou, k tomu má po dve izby, vstupnú halu, šatník, sklad, sociálne zariadenie a lodžiu. Dva byty v nižšej časti majú v mieste lodžie zimné záhrady. Na 7. a 8. NP sa nachádzajú byty s úžitkovou plochou 118 m². Byt na 7. NP má terasu nad plochou strechou nižšej časti s rozlohou až 85 m². Všetky byty sú vykurované individuálne, v každom z nich sa nachádza samostatný plynový kotol.
Technické riešenie
Objekt je navrhnutý ako monolitický železobetónový skelet s nepravidelným modulom, ktorý sleduje dispozičné požiadavky garáží (7,5m, 6m, 5m) a vychádza z pôdorysného tvaru lichobežníkovej hmoty objektu. Objekt je založený na železobetónových pätkách so základovými pilótami. Výplňové murivo tvorí pálená tehla. Drevené eurookná použité na celej budove sú morené do odtieňu svetlý dub. Presklené steny vstupov do bytovej časti a obchodnej jednotky tvorí hliníková konštrukcia. Objekt je napojený na jestvujúce inžinierske siete.
Výstavba začala v júli roku 2004 a ukončila sa v máji tohto roku. Všetky bytové jednotky aj obchodná jednotka sú v súčasnosti obsadené. Investor, ktorým je spoločnosť SSIM, s. r. o. zároveň byty a obchodný priestor sám prenajíma a vykonáva aj správu bytov.
Objekt je svojou hmotovou súrodosťou k okoliu a invenčným technickým a estetickým poňatím prínosom k celkovému dotvoreniu tejto žilinskej lokality a prispieva ku skvalitneniu architektúry mesta.
![]() |
| Pôdorys 2., 3. a 6. nadzemného podlažia |
Názov stavby: Polyfunkčný dom na Fándlyho ulici v Žiline
Typ stavby: novostavba
Investor: SSIM, s. r. o., Žilina
Architekt: Ing. arch. Michal Diviš, A. D. – architektúra a design
Generálny dodávateľ: SSIM, s. r. o., Žilina
Subdodávatelia:
Hrubá stavba: Váhostav-SK-Prefa, s. r. o., Horný Hričov
Výplňové murivo: Wienerberger
Vonkajšie omietky, zatepľovací systém: Relius – Degussa
Okná: Eurodesign, s. r. o., Žilina
Keramické obklady a dlažby: Soukup SR, s. r. o., Žilina
Exteriérové dlažby: PREMAC
Kuchynské linky: LIVE INTERIÉR, s. r. o.
Garážové dvere: Jolly Joker
Výťah: OTIS
Architektonická štúdia: október 2003
Začiatok výstavby: júl 2004
Kolaudácia: máj 2006
Počet bytov: 17
Počet parkovacích miest v garáži: 17
Zastavaná plocha: 620 m²
Celkové náklady stavby: 50 mil. Sk
(mc)
Foto: Ing. arch. Michal Diviš












