Obytný súbor Zipava chce byť bývaním pre život
Domy nielen na bývanie, ale aj pre život. Leitmotív sprevádzajúci obytný súbor Zipava v Stupave naznačuje, že bytovka má vyššie ambície, ako byť len základnou schránkou na bývanie. Aká je teda realita? Primátor Stupavy Pavel Slezák ocenil prístup investora, ktorého stavebné úsilie sa neskončilo iba dokončením stavby samotného bytového objektu. Potvrdili to aj ľudia – takmer 90-percentná obsadenosť bytov z prvej etapy naznačuje aj počas krízy úspech Zipavy ako bývania pre život.
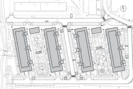
Pridaná hodnotaObytný súbor sa nachádza v juhozápadnej časti Stupavy Mást na pozemkoch bývalej panelárne a betonárne, ktoré boli dlhodobo nevyužívané. Ohraničenie súboru tvorí z južnej časti nevyužívaná železničná trať, zo západnej časti potok Mláka so súbežnou Vajanského ulicou, severnú hranicu tvoria voľná zelená plocha a sčasti bytové domy prístupné z Budovateľskej ulice. Na východe hraničí s pozemkami, na ktorých stoja málopodlažné bytové domy.
Za ašpiráciou bývania pre život nezaostáva ani architektonický a urbanistický koncept, ba ani solídna stavebná kvalita obytného súboru, čo nie je v našich zemepisných šírkach bežný jav. Päťpodlažné budovy a ich priestorové rozmiestnenie vytvárajú predpoklad na ľudský rozmer vnímania celého súboru, pri ktorom nechýba základná občianska vybavenosť a zelené prostredie pre život. Jeho dôležitými súčasťami sú detské ihrisko, asfaltové chodníky vhodné na šport aj kreslenie, petangové ihrisko či terasy určené na spoločenské posedenia. V exteriéri Zipavy je aj dostatok lavičiek, malých oddychových zón a parkovej zelene. Pri potoku sa zase vytvorila zóna pre psičkárov, čím sa eliminovalo špinenie detských ihrísk.
„Výstavbu obytného súboru Zipava sme rozdelili do dvoch etáp,“ hovorí Pavol Andráško, konateľ spoločnosti Zipp Bratislava, spol. s. r. o., ktorá je súčasťou koncernu Strabag. „Prvá bola právoplatne skolaudovaná v marci 2009, druhá etapa mala právoplatnú kolaudáciu o dva roky neskôr, teda vo februári 2011, pričom byty sme odovzdali do užívania v máji.“
V súčasnosti pozostáva bytový komplex Zipava zo štyroch samostatne stojacich bytových domov so štyrmi nadzemnými podlažiami a jedným ustúpeným podlažím so strešnými terasami a z dvoch jednopodlažných objektov určených na občiansku vybavenosť. Celkovo má teda Zipava 224 bytových jednotiek, medzi nimi sa nachádzajú malometrážne byty s výmerou od 26 štvorcových metrov až po byty s rozlohou nad 130 štvorcových metrov. Každý z bytov má balkón alebo terasu. Bonusom, a to najmä pre mladých ľudí, sú tzv. párty terasy s priestorom patriacim domu a malým vybavením (kuchynka, malý sklad, toaleta), ktoré sa objednávajú systémom prenájmu.
Súčasťou obytného súboru Zipava sú aj parkovacie kapacity. Interiérové sú sústredené v podzemných priestoroch domov a exteriérové sa nachádzajú v okolí bytových domov.
| Obytný súbor ZIPAVA Miesto: Stupava – časť Mást Investor: Zipp Bratislava, spol. s. r. o. (Zipp je súčasťou koncernu Strabag) Predajca: Strabag Zipp Development, s. r. o. Autori: Ing. arch. Matej Galanda, Ing. arch. Peter Hažer, Ing. arch. Juraj Radošovský Spoluautor: Ing. arch. Vladimír Galanda Generálny projektant: ELEMENT – ateliér architektúry, s. r. o. Zodpovední projektanti: Ing. arch. Matej Galanda, Ing. arch. Juraj Radošovský Začiatok výstavby: 7/2007 Ukončenie výstavby: 2/2011 (úradná kolaudácia 2. etapy) Hlavný statik projektu: Ing. Jozef Pavlásek, Ing. Jozef Meliš Úžitková plocha bytov : Bytový dom typu A (spolu 4 domy) Type A: 5 981 m2 (4× = 23 924 m2) Balkóny a terasy spolu: 492 m2 (4× =1 968 m2) Obytná plocha (bytový dom typu A): 2 153 m2 Počet bytov: 224 Celková plocha pozemku: 23 370 m2 Zastavaná plocha pozemku: 5 354 m2 (zrealizované objekty A1 až A4 a občianska vybavenosť D1, D2) Obostavaný priestor: 92 948 m3 (zrealizované objekty A1 až A4 a občianska vybavenosť D1, D2) Celkové investičné náklady: asi 20,2 mil. €  | 

„Dominantnú kostru súboru tvoria štyri rovnobežné objekty bytových domov, ktoré sú hrebeňovo napojené na hlavnú komunikáciu s občianskou vybavenosťou v parteri,“ približuje autor architektonického konceptu Ing. arch. Juraj Radošovský. „Súbežnými chodníkmi sú pre peších prístupné zreteľne vysunuté hmoty hlavných vstupov do jednotlivých sekcií. Všetky sú riešené bezbariérovo a s dôrazom na tzv. sociálnu kontrolu. Vylúčili sme slepé a tmavé miesta, pričom všetky chodníky sú zokruhované a nadväzujú na jestvujúcu okolitú komunikačnú sieť. Vo vnútroblokoch sú priamo z objektov prístupné relaxačné dvory s ihriskami bez prístupu automobilovej dopravy. Hlavnú komunikáciu okrem severných cípov bytových domov súbežne lemujú z juhu ešte dva malé prízemné objekty občianskej vybavenosti, pričom oba majú prístupy z ulice.“
Výraznou črtou architektonického výrazu Zipavy je farebnosť, ktorá kultivovaným spôsobom akcentuje hmotu, výtvarne oživuje fasádu a zároveň orientuje svojich obyvateľov. Základom sú okná zvonku s antracitovou farbou so zvýraznením balkónových dverí a farebnosť samotných balkónov.
Ďalšou výrazovou špecifikáciou sú veľké okná, ktoré pomáhajú dodržať predpísanú svetlotechniku. „Práve pre svetlotechniku sme museli objekty natočiť,“ hovorí Juraj Radošovský. „Aj preto nie sú byty orientované kolmo na cestu, ale sú mierne natočené, aby sa viac presvetlili.“
Premyslený architektonický koncept naplno využíva pôdorys a snaží sa v ideálnom pomere zabezpečiť pomer komunikačného jadra na využitie zastavanej plochy. Obytný súbor má ľudskú proporciu so zreteľnou komunikáciou, ktorej nechýba bezbariérový prístup do hlavných vchodov. Aj preto je Zipava obchodne úspešná a patrí k tomu lepšiemu, čo vzniká v súčasnej stavbárskej produkcii na Slovensku.
Situácia
Pôdorys 1. NP
Ľudo Petránsky
Foto: Dano Veselský, Element
| Odborným okom
 Pridaná hodnota. Aj takto by sa dala nazvať Zipava v Stupave, pričom pridaná hodnota je viditeľná najmä v komplexnosti riešenia. Na druhej strane, nie každý obyvateľ Zipavy vie pridanú hodnotu oceniť… Rozmeňme si to však na drobné. Úvodom treba pochváliť myšlienku revitalizácie brownfieldu. Spustnutý priestor bývalej panelárne sa podarilo rozumne pretvoriť a z parcely vyťažiť takmer maximum. Tým sa myslí dostatok vonkajších parkovacích státí (ktoré zatiaľ nejdú na odbyt), inteligentne riešený priestor pre deti a seniorov medzi budovami, ktorý je zo severnej strany „chránený“ dvoma objektmi občianskej vybavenosti, a treba spomenúť aj vymedzený priestor na výbeh pre psy. Keď k tomu pridáme relaxačné terasy pre obyvateľov s pekným výhľadom na mesto a sociálnym zázemím, podnikateľské priestory v samotných bytových domoch, rozumné spektrum izbovosti bytov, dostatočne veľké skladové kobky (umiestnené na rovnakom podlaží, ako je súvisiaci byt) či bezbariérový prístup, dostávame slušný výsledok, ergo, pridaná hodnota má zreteľné črty. 
 Aj Zipava má však svoje chyby a nedostatky. S architektmi by sa dalo polemizovať o riešení šatníkových priestorov v byte č. 501 v objekte A3 alebo o absencii zádverí v obchodných priestoroch v rámci obytných budov. Odparovací žľab v pozdĺžnej osi garáží vo všeobecnosti nepovažujeme za spoľahlivé riešenie. Už spomenutú nadvládu ponuky nad dopytom pri vonkajších parkovacích miestach (dôsledok cenotvorby) riešia obyvatelia parkovaním pomedzi bariérové stĺpiky. V tomto zlyháva predajca. Samotná realizácia je dielo dvoch tvárí. Tú menej príjemnú vidieť napríklad vo vyhotovení detailu osadenia pergoly na terén (obr. 1) alebo v nezvládnutí odvodnenia chodníkov (obr. 2) či v absencii elektrických zásuviek na varné rúry. Kvalita vyhotovenia fasád je samostatnou témou. A nie veselou.              Zipava vyhráva pridanou hodnotou, komplexnosťou a invenčnosťou. Vyhotovenie niektorých oblastí by si však žiadalo viac úsilia.             Ing. Jozef Ilčík  | 
Článok bol uverejnený v časopise ASB.
													
















Pozitívne príklady možno vidieť v zasekávaných sokloch dlažieb v bytoch, ktoré sú špecialitou stavebníka. Rovnako treba vyzdvihnúť materiálovo-farebné riešenie prvých a posledných stupňov na schodiskových ramenách (obr. 3), ako aj prirodzené vetranie garážových priestorov. Absenciu prípravy na klimatizovanie bytov kompenzuje možnosť exteriérového roletového tienenia. Poukázaním na túto možnosť sa dostávame k neželanému domácemu majstrovaniu obyvateľstva, ktoré je prítomné naprieč celým Slovenskom. V prípade Zipavy si obyvatelia s dodržaním antracitovej farebnosti okenných rámov pri inštalácii sieťok proti hmyzu veľkú hlavu nerobia. Centrálnu stavebnú prípravu na TV satelitný príjem obyvatelia takisto ocenili svojsky, a to súkromnými balkónovými parabolami. Uzamykanie a oplotenie detského ihriska do výšky 2 m plánované nebolo. Ukázalo sa však ako potrebné.
						
						


