Obytný komplex Svornosť
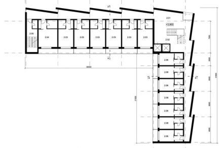
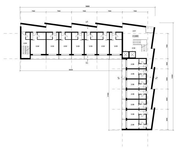
Riešený komplex je navrhnutý ako objektová zostava Domova seniorov a radovej zástavby 25 rodinných domov. Hmotovú skladbu tvorí objekt Domova seniorov vo východnej časti parcely a súbor lineárnej radovej zástavby.
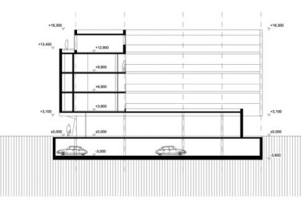
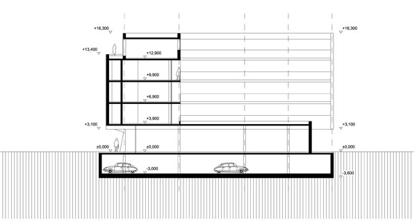
Základné výškové usporiadanie Domova seniorov uplatňuje princíp 4+1. V zásade horizontálny kompozičný princíp je tak vertikálne obohatený ustupujúcim podlažím. V prípade radovej zástavby je výška dvoch nadzemných podlaží doplnená o polozapustený suterén (dvojgaráž).V koncepcii zelene sa uplatňuje súvislý šírkovo variabilný zelený pás pozdĺž južných priečelí obytných domov, ktorý korešponduje s priečnym členením hmotových štruktúr.
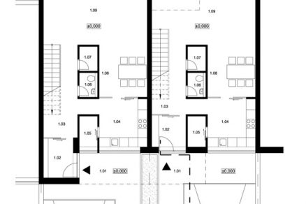
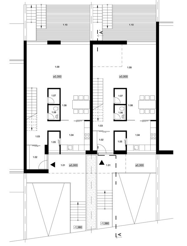
Pootočenie hmôt radovej zástavby zdynamizovalo formu, pričom severná fasáda je koncipovaná kompaktne, tu sú situované vstupy pre obyvateľov a cez rampy vstupy do garáží. Južná fasáda je otvorená a relatívne členitá, uplatňuje kryté lodžie a na úrovni 1. NP terasy prislúchajúce k jednotlivým domom, doplnené sadovými úpravami. Pri všetkej tejto rozmanitosti obytná štruktúra pôsobí v zásade kompaktne.
| Autori: Andrej Alexy, Štefan Rafanides Spolupráca: Lukaš Orihel Generálny projektant: ALEXY&ALEXY, s. r. o. Projekt: 2010 Celková úžitková plocha: 8 557 m2 Celkový počet parkovacích miest: 100 |
Situácia



















