Obytný dom La Barquière: biela dualita
Ak ste občas unavení z pohľadu na marhuľové a pistáciové fasády v okolitých mestách a obciach, pri tomto projekte pookrejete. Tu vám nehrozia trvalé následky na sietnici z pohľadu na protirečivé farby. Všetko je biele.
Ak spomíname, že je všetko v tejto realizácii biele, myslíme ozaj všetko. Od fasád a balkónov cez okná a dvere, dlažby aj interiéry spoločných priestorov. Jedine v označení podlaží a čísiel bytov architekti kvôli orientácii zvolili dva odtiene čiernej. Tomuto bytovému domu vládne biela farba tak dokonale, že ak sa bude niekde točiť nová reklama na bieliaci prací prostriedok, bude to rozhodne tu. Otázka je, samozrejme, prečo je to tak. Podľa architektov z Pietri Architectes je hlavným dôvodom snaha stavbu zodpovedne vložiť do kontextu. To je v tomto prípade celkom zaujímavá výzva.
Mnoho vzťahov, jediná farba
Marseille je známe svojou heterogénnou a kozmopolitnou povahou, ktorá sa premieta aj do funkcií v mestskej štruktúre. Domáci ju nazývajú láskavo „očarujúci chaos“. V deviatom okrsku, kde tento projekt nachádzame, je to tak tiež – napriek tomu, že je to jedna z najbohatších štvrtí mesta.
Kontext obytného domu: moderný skejtpark na severe
V priamom susedstve pozemku nájdete viaceré športové zariadenia (vrátane skejtparku), školu, obchodné centrum a celú škálu funkcií bývania od sociálneho až po individuálne rezidencie s vlastnými bazénmi. A to nespomíname historickú provensalskú vilu z 18. storočia, ktorá stojí priamo na pozemku vedľa našej realizácie. Vojsť do tejto situácie s niečím farebne „výrečnejším“ by nemuselo dopadnúť pozitívne.
Hoci v tesnej blízkosti, bytový dom sa snaží ponechať historickej budove dostatok priestoru.
Druhým dôvodom pre bielu jednotnosť je snaha architektov bytový dom nejako odlíšiť. Ich názorom je, že v súčasnosti je typologický druh bytových domov u developerov obľúbený a potreba stavania vysoká, takže dochádza k ich „trhovej štandardizácii“ a hyperregulácii. Pietri Architectes sa chcú vyhnúť tomu, aby sa architektúra bytových domov vďaka hektickej výstavbe nestala niečím bežným, banálnym a opakujúcim sa. Treba poznamenať, že trvanie architektov na jedinej farbe túto realizáciu takmer vôbec výrazovo neobmedzuje. Stavba je dostatočne pútavá vďaka dynamickým tvarom v pôdoryse a fasádnym prvkom, ktoré sa hrajú s priehľadnosťou a odrazom svetla.
Pôdorysné hry
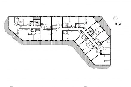
Šesťpodlažný bytový dom La Barquière (pomenovaný podľa priľahlej ulice) je pôdorysne „vytvarovaný“ podľa priestorových vzťahov v situácii. Južnú časť pozemku (2,203 m2) si majiteľ prial ponechať nezastavanú, pretože je na nej krásny, „urbánnu džungľu“ evokujúci park, takže realizácia je umiestnená čo najbližšie k severnej hranici pozemku.
Kontext obytného domu: historická budova v južnej časti pozemku
Od futbalového ihriska za ňou ju delí len šírka príjazdovej cesty. V západnej časti pozemku stojí spomínaná provensalská vila, ktorej sa bytový dom pôdorysne uhýba z prevádzkových (príjazdová cesta) aj vizuálnych dôvodov. Aby byty neboli oknami a balkónmi „nalepené“ na pôvodnej vile, vo svojej západnej časti má nový dom šírku len 16 m a až vo vzdialenejšom východnom krídle sa rozširuje na 20 m. Zároveň tak jeho minimálna zastavaná plocha (991 m2) zaručuje zachovanie čo najväčšieho množstva zelene.
Dvojitá fasáda
Situácia z veľkej časti informuje aj tvar a formu fasády. Architekt Jean-Baptiste Pietri ju nazval „solárna a bipolárna“, čo presne vystihuje neobyčajnú dualitu jej architektonického výrazu. Na severe a východe, blízko pri susednom pozemku, je prísna, ortogonálna, s francúzskymi oknami a balkónmi uzavretými skôr do podoby lodžií. Vizuálne sa prejavuje prostredníctvom obkladu z nevšedných keramických prvkov, ktoré vytvárajú príťažlivé svetelné odrazy. Dopad slnečných lúčov sa mení v závislosti od dennej hodiny aj sezóny.
Tvarovo diametrálne odlišná severná fasáda bytového domu.
Na južnej strane obytného domu, kde majú obyvatelia výhľad na zeleň, sa fasáda rozvoľňuje v horizontálnych „vlnách“ balkónov objímajúcich všetky poschodia vrátane prízemia. „Obalené“ sú v zábradliach z perforovaného kovu a jednotlivé balkóny od seba oddelené takisto perforovaným plechom, no v podobe 50 cm širokej „klietky“ pre dosiahnutie väčšieho súkromia medzi susedmi. Mimochodom, perforácie fasádnych prvkov na rôzny spôsob objavíte vo viacerých realizáciách štúdia Pietri Architectes.
Vlastný „balkón“ majú aj bytové jednotky na prízemí obytného domu.
Zdá sa, že je to momentálne jeden z ich obľúbených detailov a zrejme súvisí aj s ich filozofiou „romantického racionalizmu“. Tento koncept spája konštruktívnu, prísnu a optimalizovanú koncepciu s presnou a zmysluplnou analýzou lokality. Architektúra je pre nich však nielen koncepčná, ale aj poetická. Preto kladú dôraz na ušľachtilosť materiálu a architektúre vo výraze dávajú eleganciu a mäkkosť. Inak veľmi minimálne poňatie ich návrhov dostáva „šmrnc“ použitím niekoľkých zaujímavých materiálov alebo postupov.
Prímorské bývanie
V obytnom dome La Barquière je 62 bytových jednotiek, ku ktorým patrí 77 parkovacích miest v dvojpodlažnej podzemnej garáži. Byty sa opakujú na väčšine podlaží zoskupené okolo dvoch komunikačných jadier korešpondujúcich s dvomi samostatnými vstupmi do domu. Architekti sa snažili minimalizovať chodbové priestory v bytoch v prospech obytných miestností.
Farebné a tvarové riešenie fasády sa premieta aj do interiéru.
Aj keď Marseille je mesto zamerané viac na obchod ako na turistiku či relaxáciu, výhľad na siluetu Stredozemného mora z vyšších podlaží určite poteší. V pešej dostupnosti je divoká prírodná rezervácia, národný park Calanques. Je to prvý prímestský národný park v Európe. Spolu s rozvinutou občianskou vybavenosťou v okolí sú byty v La Barquière pre „prvonákupcov“ rozhodne atraktívne.
Obytný dom La Barquière
Miesto: Marseille, Francúzsko
Klient: Constructa Promotion/Eiffage Promotion
Architekt: Pietri Architectes
Lokalitný program: 62 bytových jednotiek
Parkovacie miesta: 77
Zastavaná plocha: 3 737 m2
Fasády: DSA Méditerranée
Náklady: 6,1 milióna eur
Ukončenie výstavby: november 2016
Južný pohľad – rozvoľnená časť fasády a Severný pohľad – fasáda s ortogonálnym výrazom
TEXT: Korina Krchniaková, Podklady: Pietri Architectes, v2com, foto: Mathieu Ducros
Článok bol uverejnený v časopise ASB 10/2017.



















