Obytná budova trochu inak: Energeticky efektívna sanácia Domova dôchodcov vo Weizi
Medzi obytné budovy patria aj budovy na prechodné ubytovanie a budovy určené na dlhodobý pobyt obyvateľov, ako sú napríklad liečebne, domovy detí, domovy dôchodcov. Stav súčasných budov tohto charakteru na Slovensku je veľmi zlý a je isté, že sa postupne budú musieť obnovovať. Preto by bolo užitočné bližšie sa pozrieť na zaujímavý príklad nedávno ukončenej obnovy Domova dôchodcov v rakúskom Weizi, kde sa uskutočnila energeticky efektívna sanácia s použitím komponentov charakteristických pre energeticky pasívne domy. Napokon budúcnosť technológií energeticky pasívneho domu spočíva hlavne v obnove budov...
Sanácia domu dôchodcov
Na prelome roka 2005 sa v rakúskom meste Weiz (v Štajersku) zrealizoval obsiahly koncept energeticky efektívnej sanácie Domova dôchodcov. Výsledkom obnovy budovy postavenej v roku 1975 bolo výrazné prekročenie požadovaných ukazovateľov energetickej spotreby nielen pri renovovaných, ale dokonca aj pri novopostavených stavbách. Modernizácia objektu predstavuje jednu z prvých vzorových realizácií tohto druhu. Okrem tepelnej ochrany sa prevádzka objektu, požiarna a akustická ochrana, ako aj technický systém uviedli do stavu zodpovedajúceho požiadavkám zajtrajška. Využitím nástrojov energetickej optimalizácie sa v rámci generálnej sanácie tohto objektu dosiahlo zníženie mernej potreby tepla na vykurovanie z pôvodných 156,9 kWh/(m².a) na 24,3 kWh/(m².a) (–84,5 %!).
Čiastočnou adaptáciou nevyužívaného strešného priestoru (156 m2), prístavbou spoločenskej sály (85 m2), zväčšením plochy každej izby o 5,7 m2 (celkovo 362 m2), vytvorením nových zimných záhrad (spolu 40 m2) a rozšírením žehliarne v suteréne (14 m2) sa celková úžitková plocha objektu zvýšila z pôvodných 4 321 m2 na 4 978 m2. Nové priestory sa integrovali do tepelného obalu domu a realizovali sa takmer v štandarde energeticky pasívneho domu.
Koncept energeticky efektívnej sanácie
Z tab. 1 je zrejmé, že efektivita jednotlivých opatrení závisí od špecifík konkrétnej stavby a od veľkosti stavebných prvkov. V tomto prípade napríklad nebolo možné zatepliť celú plochu stropu suterénu nad kotolňou pre jestvujúce technické inštalácie, čo sa týka aj podlahy suterénu (prevádzka kuchyne sa počas sanácie nemohla prerušiť). Naopak, v plnej miere sa podarilo eliminovať vplyvy tepelných mostov (najmä v miestach vyčnievajúcich železobetónových prvkov) a tepelné úniky pri otváraní okien.
![]() |
![]() |
| Konštrukčný uzol okno – obvodová stena – železobetónová konzola, vodorovný rez stavu pred sanáciou (tepelný tok vo W/m2). Vnútorná povrchová teplota v rohu okenný rám – stena predstavuje 6,1 °C, čo znamená riziko tvorby kondenzátu. Vnútorná povrchová teplota okraja zasklenia je 3,1 °C a stredu zasklenia 9,3 °C. |
Konštrukčný uzol železobetónová konzola – predsadená fasáda, vodorovný rez stavu po sanácii (izotermy v °C). Vnútorná povrchová teplota v rohu predsadenej fasády – opláštenia predstavuje 17,9 °C. Montážou predsadenej fasády a zateplením obvodovej steny a železobetónovej konzoly izoláciou v hrúbke 16 cm je riziko kondenzátu celkom vylúčené. Vnútorná povrchová teplota okraja zasklenia je 14,4 °C a stredu zasklenia 17,7 °C. |
![]() |
Diagnostika fasády termovíznou snímkou pred sanáciou dokladuje množstvo tepelných mostov najmä vplyvom vyčnievajúcich železobetónových konštrukcií (červená farba znamená veľké tepelné straty). Rovnako zrejmá je aj nízka povrchová teplota pôvodných okien. |
Záver
Prvotná štúdia sanácie pozostávala zo siedmich variantných riešení, ktoré sa posúdili z hľadiska komplexných kritérií určujúcich faktorov efektivity investícií. Pri dôslednom zohľadnení celkového životného cyklu budovy je kvalitatívna úroveň energeticky pasívneho domu ideálnym riešením stavebného zámeru nielen pri novostavbách, ale aj pri renováciách budov. Vo všetkých scenároch cien energií vystupuje ekonomická rentabilita takýchto budov do popredia, pretože zníženie potreby tepla pomocou stavebných opatrení a technických systémov je zmysluplná. Príklad energeticky efektívnej sanácie Domova dôchodcov vo Weizi je dôkazom reálne uplatniteľného konceptu s konkrétnymi výsledkami.
Tab. 1 Opatrenia na zníženie vykurovacích nákladov
| Opatrenie energeticky efektívnej sanácie | Redukcia v kWh/(m2.a) | Efektivita v % |
| Zateplenie stropu najvyššieho podlažia k povale (22 cm) | 7,8 | 5,2 |
| Zateplenie obvodovej steny k exteriéru (16 cm) | 25,3 | 19,1 |
| Zateplenie obvodovej steny k nevykurovanému priestoru (12 cm | 1,4 | 1,1 |
| Zateplenie obvodovej steny k zemine (12 cm) | 0,1 | 0,1 |
| Zateplenie stropu suterénu k nevykurovanému priestoru (12 cm) | 2,9 | 2,2 |
| Zateplenie podlahy k exteriéru (16 cm) | 1,2 | 0,9 |
| Zateplenie podlahy suterénu (8 cm) | 1,1 | 0,8 |
| Zateplenie tepelných mostov (8 až 16 cm) | 39,8 | 30 |
| Nové zdvojené okná a predsadená fasáda s trojitým zasklením | 32,4 | 24,4 |
| Riadené veranie s účinnosťou rekuperácie 70 % | 21,5 | 16,2 |
| Spolu | 132,6 | 100 |
Tab. 2 Hodnoty súčiniteľa prechodu tepla U obvodových prvkov pred sanáciou a po sanácii
| Pred sanáciou |
Po sanácii | |
| Strop najvyššieho podlažia k povale |
0,49 W/m²K | 0,15 W/m²K |
| Obvodová stena k exteriéru (stredná hodnota) |
0,96 W/m²K | 0,27 W/m²K |
| Obvodová stena k nevykurovanému priestoru | 2,85 W/m²K |
0,44 W/m²K |
| Obvodová stena k zemine | 1,95 W/m²K |
0,43 W/m²K |
| Strop suterénu k nevykurovanému priestoru | 0,56 W/m²K |
0,29 W/m²K |
| Podlaha k exteriéru | 1,07 W/m²K |
0,29 W/m²K |
| Podlaha suterénu | 0,72 W/m²K | 0,29 W/m²K |
| Zasklenia |
3,30 W/m²K |
0,60 W/m²K |
| Okná (hodnota pri zabudovaní – Uw) |
2,80 W/m²K |
0,98 W/m²K |
| Predsadená fasáda – rám, zasklenie + panel (Ucw) |
– | 0,67 W/m²K |
![]() |
![]() |
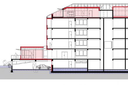
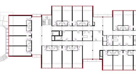
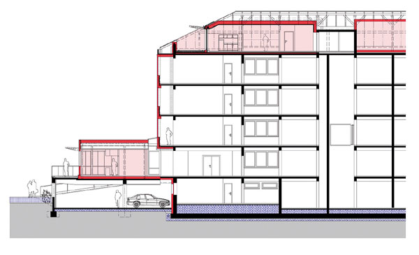
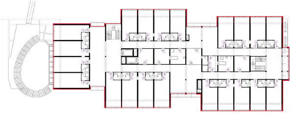
| Pozdĺžny rez | Pôdorys 2. NP |

Charakter stavby: sanácia
Investor: Sozialhilfeverband Weiz
Generálny projektant: FOCUS Engineering Planungs Ges.m.b.H., Weiz
Projektant: Arch°Buero DI Erwin Kaltenegger, Passail
Architekt: Arch. DI Erwin Kaltenegger, Ing. arch. Eugen Nagy
Spolupráca: Brigitte Pfeifer, Sebastian M. Seelig
TZB: TB Bierbauer, Passail
Fasádna technika: Herbert Neuherz, Gleisdorf
Začiatok rekonštrukcie: september 2005
Ukončenie rekonštrukcie: február 2006
Náklady na rekonštrukciu: 1 912 374 EUR
Ing. arch. Eugen Nagy
Foto a grafické prílohy: archív autora
















