Nová polyfunkcia sleduje dva ciele
Stavebná konjunktúra nenecháva na mape Bratislavy bez povšimnutia ani štvorcový meter. Je len prirodzené, že prehodnocuje aj zaujímavý priestor medzi Ministerstvom hospodárstva SR a Miestnym úradom Bratislava-Ružinov na Mierovej ulici. Doteraz tam boli nefunkčné budovy kotolne a skladu paliva. Onedlho by ich mala nahradiť budova s polyfunkčným využitím. „Navrhli sme ju ako prienik dvoch objemov vyjadrujúcich dve funkcie v nich obsiahnuté – bytovú a administratívnu,“ hovorí spoluautor projektu Ing. arch. Pavel Komár.
Dve v jednom

Dispozičné riešenie
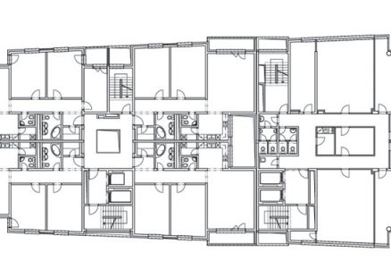
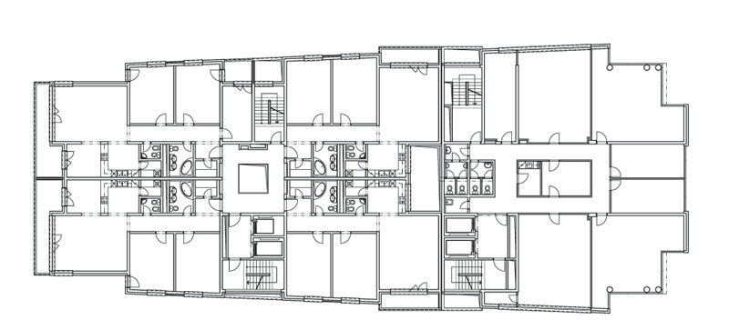
Dopravne je polyfunkčný dom napojený z Mierovej ulice pravostranným odbočením po existujúcich obslužných komunikáciách, ktoré vedú po obvode domu. V troch podzemných podlažiach bude 102 parkovacích státí. Na prvom nadzemnom podlaží bytovej časti budú umiestnené obchodné priestory a vstup do domu. Na druhom až desiatom nadzemnom podlaží je 36 bytov. Prevahu majú trojizbové byty, zastúpené v počte 21 bytových jednotiek. Nasledujú byty dvojizbové, ktorých je deväť, a šesť štvorizbových bytov. V čele je vstup do administratívnej časti. Na prvom nadzemnom podlaží administratívnej časti je plánovaný bufet so studenou kuchyňou a technický blok. Druhé až štrnáste podlažie patrí kancelárskym priestorom.
Sadové a terénne úpravy naplánované v rámci výstavby budú spočívať v zatrávnení všetkých nespevnených plôch a vo výsadbe vysokej zelene, pravdepodobne vzrastlých stromov. Výstavba polyfunkčného domu sa má začať v budúcom roku a objekt by mohol byť dokončený v roku 2010. Celkové investičné náklady sa odhadujú na 300 miliónov Sk.
Pôdorys typického podlažia
Miesto: Mierová ulica, Bratislava
Investor: SUBTERRA, s. r. o., Bratislava
Autori: Architektonický ateliér
Ing. arch. Pavel Komár
Ing. arch. Milan Kiaček
Ing. arch. Jitka Míčová
Generálny dodávateľ: Špeciálne činnosti, s. r. o., Bratislava
Začatie výstavby: 2008
Termín ukončenia výstavby: 2010
Celkové investičné náklady: približne 300 miliónov Sk
Plocha pozemku: 2 092 m2
Úžitková plocha bytov: 3 854 m2
Úžitková plocha kancelárií: 4 219 m2
Úžitková plocha občianskej vybavenosti: 412 m2
Úžitková plocha garáží: 3 276 m2
(pet)
Vizualizácie: Ing. Branislav Groch









