Nadštandardné bývanie v malom meste
Dvanásť radových rodinných domov v novovznikajúcej štvrti Nových Zámkov ponúkne nadštandardné zázemie pre rodinný život. Projekt poskytuje dostatok priestoru na hľadanie hodnôt tradičnej architektúry rodinného domu v meste, ktorého historické korene siahajú ďaleko, ale nie sú ľahko rozpoznateľné.
Na prvých parcelách bude stáť dvanásť radových rodinných domov, zadná časť ich pozemkov bude v priamom kontakte s areálom hypermarketu. V druhej fáze sa počíta s výstavbou ďalších štyridsiatich izolovaných rodinných domov. Prvá fáza tak vytvorí akýsi prechod od doznievajúcej mestskej štruktúry po plánovanú zástavbu vidieckeho typu.
Radový dom a jeho poloha na pozemku sa vyvíjali postupne, pričom sa vyskúšali viaceré riešenia. Šírka parcely sa pohybuje od 10 do 13 metrov. Projekt domu je flexibilný vzhľadom na rozmanitú šírku parciel.
Investor požadoval šikmé strechy a architektúru poňatú skôr tradične. Architekti Juraj Skupil a Peter Szofka z ateliéru F. O. S. S. priznávajú, že hľadanie tradičnej architektúry rodinného domu v Nových Zámkov nebola ľahká úloha.

![]() |
![]() |
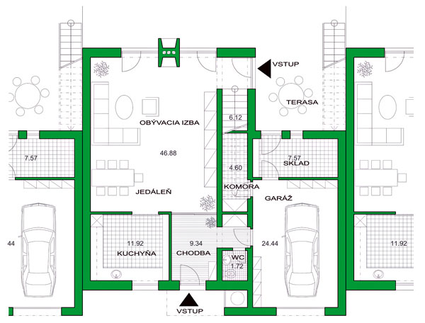
Zaujímavým prvkom architektonického výrazu fasády budú francúzske okná, ktoré sú navrhnuté na uličné, ako aj vnútorné priečelie domu. Dvojica komínov interiérového i exteriérového kozuba dopovie obrys strechy. Jej iba mierny sklon prispeje k využitiu alternatívneho zdroja vykurovania. Plocha terasy nad garážou ponúkne možnosť prístavby ďalšej miestnosti v prípade, že časom sa zvýšia priestorové nároky rodiny. V takom prípade naďalej zostane príležitosť ponechať si do priestoru ulice balkón. Intímna časť záhrady vznikne v mieste za garážou medzi vlastným a susedným domom. V realite architekti nechcú vyvolávať potrebu chrániť sa vysokým múrom. Tu poskytne svoje priestory sklad pre bicykle, prípadne záhradný nábytok.
![]() |
![]() |
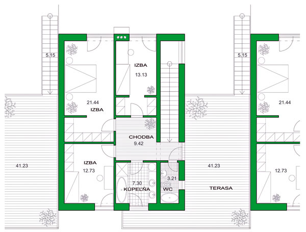
| Pôdorys 1. NP | Pôdorys 2. NP |
Z hľadiska materiálového riešenia sa autori projektu snažili vyhnúť použitiu príliš drahých materiálov: jednoduchá biela omietka fasády, kamenný obklad garáže, komíny z nehrdzavejúcej ocele a povrch oboch terás, ktorý bude obložený drevom, aby bol príjemný pre bosé nohy.
Lucia Hakelová
Vizualizácie: F. O. S. S., architecture atelier













