mlyn humenne novy zivot v novych bytoch
Galéria(13)

Mlyn Humenné: nový život v nových bytoch

Chátrajúci objekt starého nefunkčného mlyna dostane podľa projektu z dielne architektonického štúdia Atrium novú tvár. Ruka v ruke s ňou prichádza aj nová funkcia.

0 iny variant2 big image
1 hotovo big image
img 20121123 00155 zla kv big image
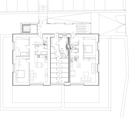
1np big image
sever navrh big image
rez navrh big image
mlyn humenne big image
b3 3b big image
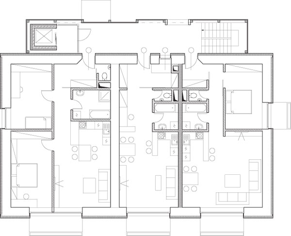
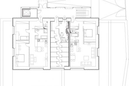
Celkom logicky ide o byty, ktoré doplnia existujúcu štruktúru solitérnych rodinných domov a stredne vysokú osempodlažnú zástavbu bytových domov v okolí neďalekej základnej školy. Uličná čiara, ako aj odstupové vzdialenosti od susedných pozemkov sú dané jestvujúcou zástavbou. K pozemku vedie miestna obslužná komunikácia zo severnej strany. Terén stavebného pozemku sa zvažuje na juh miernym klesaním. Objekt s pôdorysom obdĺžnika je umiestnený v jeho severnej časti. Na prízemí budú dva byty s prístupom do súkromných záhradiek oddelených od okolitej zelene živým plotom. Medzi bytmi sú situované kotolňa a spoločné priestory s pivnicami. Na druhom a treťom podlaží sú po tri byty. Na štvrtom podlaží sú tri mezonetové byty, ktorých horné, 5. nadzemné podlažie má pre dva krajné byty výstup na otvorenú terasu. Strecha je riešená ako stanová z titánzinku s výrezmi na otvorené terasy.

Nezbúrať, resuscitovať
Natíska sa povedať, že čokoľvek namiesto polorozpadnutej budovy by bolo lepšie. Nové byty však majú potenciál objekt skutočne a plnohodnotne oživiť. Ku cti investora slúži aj to, že nepoužil obľúbenú formulu: staré zbúrať a postaviť nanovo a moderne. Architekti sa nezľakli pôvodného objemu a vnútorného usporiadania. Nesnažia sa ho úplne prekryť a prerobiť, ich intervencia síce oblieka bývalý mlyn do novej fasády a predstavuje nové usporiadanie otvorov, ale stále sa v náznakoch dá vytušiť, že nejde celkom o novostavbu. Zásahy možno prirovnať k čistému a nekompromisnému rezu, ktorý umožní rýchlu a účinnú liečbu. Jednoduché okná a stanová strecha v sklone, ktorý odkazuje na pôvodný tvar zastrešenia, sú reminiscenciou na originálnu náplň objektu. Návrh pracuje s titánzinkovým strešným plášťom. Iste, nie je to najlacnejší nápad, ale akýkoľvek iný materiál by vkusnú rekonštrukciu pochoval buď z úžitkovo-funkčného hľadiska (v prípade náhrady titánzinku za lacnejší farbený plech) alebo estetického (akákoľvek iná krytina). Balkóny v podobe vysunutých zásuviek a staronový prvok pavlače dodávajú projektu vtip a šmrnc. Použitie ťahokovu by sa dalo považovať za ďalší odkaz na výrobnú minulosť. Samotné tvarové riešenie pavlačí a vertikálnych komunikácií, ktoré sú bez zábran priznané v exteriéri ako nový pridaný prvok, je však puristicky súčasné, až takmer nadčasové. Hravosť a ľahkosť zadania prezrádza aj nenútené zvýraznenie vstupu vyklopením jedného panela z ťahokovu, pričom jeho funkciu nahrádza priehľadné sklenené zábradlie. Na monochromatickú paletu s bielou omietkou a so sivými kovovými prvkami sa autorom primiešala aj výrazná žltá. Objekt oživila a určite poslúži v lokalite ako orientačný prvok. Ostáva len veriť, že návrh, ktorý ukazuje cestu, ako sa dá zhostiť zdanlivo neatraktívnej investície, dokáže investor preniesť aj do realizačnej fázy a neskĺznuť k zjednodušovaniu so snahou ušetriť. Tešíme sa na podarený výsledok.

–>–>

Mlyn Humenné – Rekonštrukcia, vostavba a stavebné úpravy
Miesto stavby: Ul. osloboditeľov 29, Humenné
Investor: SV Reality, s. r. o.
Projektant: Architektonické štúdio ATRIUM, s. r. o.
Užitková plocha: 1 061,88 m2 + 115,96 m2 terasy
Obostavaný objem: 4 826,25 m3
Zastavaná plocha: 297 m2

TEXT: Mária Nováková
DOKUMENTÁCIA: Architektonické štúdio ATRIUM

Článok bol uverejnený v časopise ASB.